1
物件掲載企業数:
297
社
|賃貸物件:
3,622
件|売買物件:
3,314
件|今週の登録物件:
263
件
閲覧中のブラウザ(インターネットエクスプローラー)は非推奨ブラウザです。
物件が正しく表示されなかったり、正しく検索されない場合があります。最新のブラウザ(Google Chrome・Edgeなど)にてご利用お願いいたします。
Google Chrome
Microsoft Edge
アパート・マンション・一戸建て
駐車場
貸土地
店舗
事務所
倉庫・工場
新築分譲マンション
中古マンション
新築一戸建て
中古一戸建て
売土地・分譲地
その他(投資物件など)
マンション
一戸建て
土地
ホーム
>
検索方法選択
>
ランドマーク指定
> 物件一覧
全エリア
の
貸倉庫・貸工場
一覧
51件
該当しました。
1
2
3
次のページ>
表示切替:
一覧表示
/
間取り表示
/
地図表示
並び替え:
家賃が安い順
家賃が高い順
築年数が新しい順
新着順
画像
物件名
所在地
取扱店
面積
間取り
所在階
築年数
方位
賃料
管理費等
共益費
敷金
保証金
礼金
種別
構造
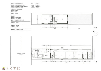
【レンタル物置2】 タクボ 小サイズ
新潟県長岡市大山2丁目9-12
株式会社 第一住宅新潟
1.58㎡
(0.47坪)
-
不詳
-
0.4
万円
なし
なし
2ヶ月
なし
なし
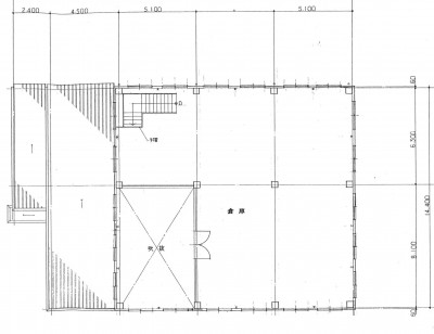
倉庫・工場・その他
スチール物置
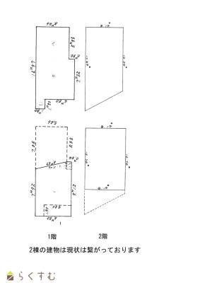
ヒルズ長岡トランクルーム
1号室
新潟県長岡市本町3丁目4-3
有限会社 東部不動産
2.17㎡
(0.65坪)
-
1階
55年
-
0.55
万円
なし
なし
なし
なし
なし
倉庫・工場・その他
鉄骨鉄筋コン
ヒルズ長岡トランクルーム
新潟県長岡市本町3丁目4-3
株式会社 棚橋不動産
2.17㎡
(0.65坪)
-
1階
55年
-
0.55
万円
なし
なし
なし
なし
なし
倉庫・工場・その他
鉄骨鉄筋コン
戸野目倉庫
2(右)号室
上越市大字戸野目川橋交差点付近
有限会社田村家具店
12.96㎡
(3.92坪)
-
1階
44年
-
0.66
万円
なし
なし
なし
なし
なし
倉庫・工場・その他
木造
古正寺倉庫
新潟県長岡市古正寺2丁目
ADI 株式会社
8.23㎡
(2.48坪)
-
不詳
-
0.99
万円
なし
なし
なし
なし
なし
倉庫・工場・その他
プレハブ
北園町貸ガレージ
A号室
新潟県柏崎市北園町
株式会社 ai-will
11.73㎡
(3.54坪)
-
1階
不詳
-
1.5
万円
なし
なし
1ヶ月
なし
なし
倉庫・工場・その他
木造
仲町2丁目倉庫 1.65万円
新潟県上越市仲町2丁目4-13
RE不動産(㈱ディライト)
34.78㎡
(10.52坪)
-
1階
48年
-
1.65
万円
なし
なし
なし
なし
なし
倉庫・工場・その他
鉄骨
ケプト 寺町1丁目倉庫
新潟県上越市寺町1丁目19-10
RE不動産(㈱ディライト)
21.94㎡
(6.63坪)
-
2階
36年
-
1.65
万円
なし
なし
なし
なし
なし
倉庫・工場・その他
木造
稲田貸倉庫
新潟県上越市稲田3丁目5番13号
株式会社 お不動さん
19.83㎡
(5.99坪)
-
1階
47年
-
2
万円
なし
なし
なし
なし
なし
倉庫・工場・その他
木造
学校町倉庫 2.2万円
新潟県妙高市学校町20-25
RE不動産(㈱ディライト)
49.59㎡
(15坪)
-
54年
-
2.2
万円
なし
なし
なし
なし
なし
倉庫・工場・その他
鉄筋コン
増田倉庫
新潟県長岡市下々条2丁目1369-2
越路建設 株式会社
20㎡
(6.05坪)
-
1階
不詳
-
2.2
万円
なし
なし
2ヶ月
なし
なし
倉庫・工場・その他
鉄骨
東本町倉庫 2.5万円
新潟県上越市東本町3丁目3-29
RE不動産(㈱ディライト)
82.63㎡
(24.99坪)
-
1.2階
93年
-
2.5
万円
なし
なし
なし
なし
なし
倉庫・工場・その他
木造
柏崎市中央町 賃貸倉庫 スペース中央町
新潟県柏崎市中央町
田中不動産株式会社
113.83㎡
(34.43坪)
-
49年
-
3.3
万円
なし
なし
2ヶ月
なし
なし
倉庫・工場・その他
木造
スペース中央町
新潟県柏崎市中央町11-12
株式会社 アーク不動産
113.82㎡
(34.43坪)
-
49年
-
3.3
万円
なし
なし
2ヶ月
なし
なし
倉庫・工場・その他
木造
名立区名立 貸倉庫
新潟県上越市名立区名立大町1082
株式会社クレアス
162㎡
(49坪)
-
1階
41年
-
3.85
万円
なし
なし
1ヶ月
なし
1ヶ月
倉庫・工場・その他
軽量鉄骨
ヒルズ長岡貸倉庫2階
新潟県長岡市本町3丁目4-3
株式会社 棚橋不動産
93.22㎡
(28.19坪)
-
2階
55年
-
3.95
万円
なし
あり
7.9万円
なし
なし
倉庫・工場・その他
鉄骨鉄筋コン
ヒルズ長岡貸倉庫 2F
新潟県長岡市本町3丁目4-3
有限会社 東部不動産
93.22㎡
(28.19坪)
-
2階
55年
-
3.95
万円
なし
あり
2ヶ月
なし
なし
倉庫・工場・その他
鉄骨鉄筋コン
乙吉倉庫2F
新潟県長岡市乙吉町533番地8
株式会社 棚橋不動産
92.56㎡
(27.99坪)
-
2階
不詳
-
4
万円
なし
なし
2ヶ月
なし
なし
倉庫・工場・その他
木造
七日市 貸倉庫
新潟県長岡市七日市2193-1
ハウスドゥ 長岡中央店
24.78㎡
(7.49坪)
-
46年
-
4
万円
なし
なし
なし
なし
なし
倉庫・工場・その他
木造
魚沼市下田 事務所・倉庫
新潟県魚沼市下田304-1
フジクリエイト株式会社
68㎡
(20.57坪)
-
不詳
-
4
万円
なし
なし
3ヶ月
なし
なし
倉庫・工場・その他
木造
表示切替:
一覧表示
/
間取り表示
/
地図表示
並び替え:
家賃が安い順
家賃が高い順
築年数が新しい順
新着順
51件
該当しました。
1
2
3
次のページ>
0件
がマッチ
基本条件
物件種別
倉庫・工場・その他
賃料
下限なし
0.5万円
1.0万円
1.5万円
2.0万円
2.5万円
3.0万円
3.5万円
4.0万円
4.5万円
5.0万円
5.5万円
6.0万円
6.5万円
7.0万円
7.5万円
8.0万円
8.5万円
9.0万円
9.5万円
10万円
11万円
12万円
13万円
14万円
15万円
16万円
17万円
18万円
19万円
20万円
30万円
40万円
50万円
100万円
~
上限なし
0.5万円
1.0万円
1.5万円
2.0万円
2.5万円
3.0万円
3.5万円
4.0万円
4.5万円
5.0万円
5.5万円
6.0万円
6.5万円
7.0万円
7.5万円
8.0万円
8.5万円
9.0万円
9.5万円
10万円
11万円
12万円
13万円
14万円
15万円
16万円
17万円
18万円
19万円
20万円
30万円
40万円
50万円
100万円
管理費を含む
礼金なし
敷金なし
間取り
ワンルーム
1K
1DK
1LDK
2K
2DK
2LDK
3K
3DK
3LDK
4K
4DK
4LDK以上
所在階
指定なし
1階
2階
3階
4階
5階以上
面積
下限なし
20㎡
30㎡
40㎡
50㎡
60㎡
70㎡
80㎡
90㎡
100㎡
~
上限なし
20㎡
30㎡
40㎡
50㎡
60㎡
70㎡
80㎡
90㎡
100㎡
築年数
指定なし
新築
3年以内
5年以内
10年以内
15年以内
20年以内
方位
北
北東
東
南東
南
南西
西
北西
おすすめ条件
女性限定
男性限定
学生可・相談
二人入居可・相談
シニア(60歳以上)入居可・相談
ペット可・相談
事務所利用可・相談
ルームシェア可・相談
情報公開日
指定なし
本日
3日以内
1週間以内
1ヶ月以内
0件
がマッチ
人気のあるこだわり条件
即引き渡し(29)
フリーレント(詳細は備考欄)(2)
駐車場あり(35)
条件に合った物件数は、
0 件
です。
入居・費用・引渡・条件
即引き渡し(29)
フリーレント(詳細は備考欄)(2)
その他
駐車場あり(35)
条件に合った物件数は、
0 件
です。
アパート・マンション・一戸建て
/
駐車場
/
貸土地
/
店舗
/
事務所
/
倉庫・工場
新築分譲マンション
/
中古マンション
/
新築一戸建て
/
中古一戸建て
/
売土地
/
投資物件・その他
マンション
/
一戸建て
/
土地
建てる・リフォーム
物件掲載企業一覧
掲載希望の企業様へ
新潟の不動産情報サイト
サービス利用規約
運営会社
サイトマップ
プライバシーポリシー
お問い合わせ
リンク
Copyright (C)
株式会社 コモンライフ・コーポレーション
. All Rights Reserved.
新潟・長岡・柏崎の賃貸・マンション・アパート・住宅の不動産物件情報サイト
不動産検索サイト「らくすむ」及び関連サイトに記載の不動産情報は、会員規約に則り、情報提供会社様の責任のもとに発信されております。
不動産の賃借、購入に関しては賃借者、購入者ご自身が情報を確認され、会社企業様から説明を受けられたうえで判断をお願いいたします。
不動産検索サイト「らくすむ」及び関連サイトに記載の不動産情報、写真、デザイン、コンテンツなどの
無断転載・転用・複製
など禁止します。