物件掲載企業数:301|賃貸物件:3,175件|売買物件:3,245件|今週の登録物件:102
閲覧中のブラウザ(インターネットエクスプローラー)は非推奨ブラウザです。
物件が正しく表示されなかったり、正しく検索されない場合があります。最新のブラウザ(Google Chrome・Edgeなど)にてご利用お願いいたします。
  

新潟県柏崎市中央町 倉庫・工場・その他 3.3万円の物件情報

セーリングなどのマリンスポーツ用具の倉庫としての利用にもオススメです

物件名
所在地
面積
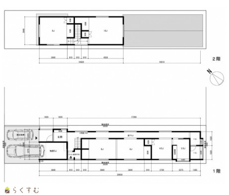
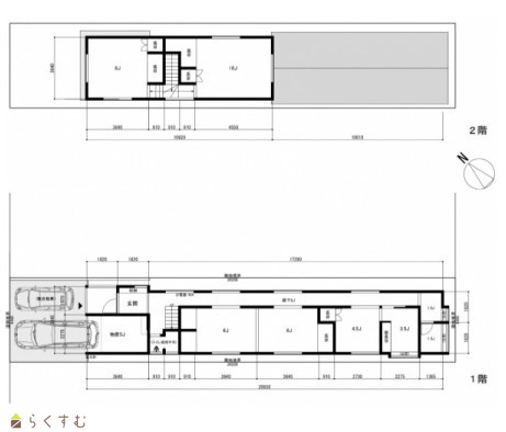
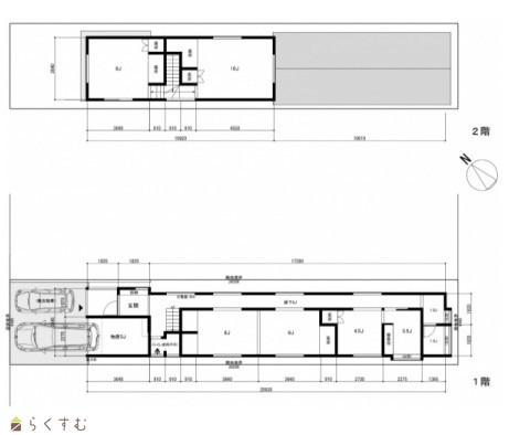
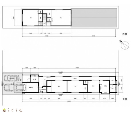
間取り
所在階
築年数
方位
賃料
管理費等
共益費
敷金
保証金
礼金
種別
構造
柏崎市中央町 賃貸倉庫 スペース中央町
新潟県柏崎市中央町
113.83㎡
(34.43坪)
-
-
49年
-
3.3万円
なし
なし
2ヶ月
なし
なし
倉庫・工場・その他
木造
  • 柏崎市中央町 賃貸倉庫 スペース中央町
    田中不動産株式会社
  • この物件を問い合わせる/無料
  • TEL: 025-512-5001

物件画像

外観 間取り
物件画像
※画像クリックで拡大表示
外観
物件画像
※画像クリックで拡大表示
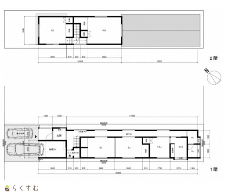
間取り
詳細画像


物件概要

使用用途相談可能! まずはお気軽にお問い合わせください。 セーリング・サーフボード・釣り用具など、海に近い立地を利用して気軽に利用可能な倉庫として活用はいかがでしょうか♪ マリンスポーツが盛んな柏崎で隠れた物件です♪
物件コード 00297-100038
物件名 柏崎市中央町 賃貸倉庫 スペース中央町
交通 駅:越後線 東柏崎駅から徒歩7分
所在地 新潟県柏崎市中央町
物件種別 倉庫・工場・その他
総戸数 1戸
構造 木造 階建 地上2階建
所在階/階数 - 号室 -
面積 113.83㎡ /34.43坪 方位 -
間取り -
賃料 3.3万円/月
管理費 -
礼金 - 敷金 2ヶ月
ほか初期費用 - その他諸費用 -
更新料 - 火災(家財)保険 プランにより金額が異なります
共益費 - 町内費 -
駐車場 普通車1台、軽1台 バイク料金 -
鍵交換費 - 清掃料 -
更新事務手数料 -
保証区分 連帯保証人のみ
保証会社 区分:指定なし
-
連帯保証人 区分:要
-
仲介手数料 36,300円
築年月 1976年8月(築49年)
利用制限 -
学校区 柏崎小学校(708m)・第一中学校(573m)
設備 即引き渡し、駐車場あり
入居時期 即入居可
取引態様 仲介
備考 【物置として利用】
・保管する物品の内容は契約前に確認要
・消防法上の危険物(第1~6類)の保管、重量物の保管、動物等の飼育は禁止

【事務所として利用】
・トイレ・手洗い等が無い為、家賃を含め応相談

【その他概要】
・1F床:張替済
・電力(引込有)、下水道(排水桝有)
・ガス、上水道(引込無/予定も無)
・トイレ、エアコン使用不可

※セーリングなどマリンスポーツの備品庫としての利用など、使用用途は多彩です
 お気軽にお問い合わせください。
手数料負担割合/配分割合 貸主:-%   借主:-% / 元付:-%   客付:-%  
取り扱い会社

田中不動産株式会社

新潟県上越市土橋1154-1ワグリオフィスA

情報登録日 2026/03/23 次回更新予定日 2026/05/20
  • 柏崎市中央町 賃貸倉庫 スペース中央町
    田中不動産株式会社
  • この物件を問い合わせる/無料
  • TEL: 025-512-5001

この物件の地図・周辺情報・行政情報

この物件の周辺情報・行政情報を詳しく見る
【周辺情報】
物件の近くにあるコンビニや銀行・学校など、アイコン付のマップで詳しく表示できます!
【行政情報】
水道料や下水道料・ガス料金など、暮らしに関係のある情報を表示しています。
セブン-イレブン 柏崎新花町店(コンビニ)まで110m
ローソン 柏崎学校町店(コンビニ)まで720m
中央町薬局(ドラッグストア)まで150m
柏崎信用金庫 諏訪町支店(銀行)まで180m
第四北越銀行 柏崎東本町支店(銀行)まで650m
柏崎東本町郵便局(郵便局)まで790m

※カメラのアイコンがある場合は、マウスをポイントするとその施設の画像がご覧いただけます。


担当取扱い店舗情報

取扱い店舗画像
田中不動産株式会社
TEL: 025-512-5001
所在地: 新潟県上越市土橋1154-1ワグリオフィスA
交通: 妙高はねうまライン 高田駅
営業時間: 9:00~18:00/定休日:土・日・祝
免許番号: 大臣免許(2)第9635号 この会社の情報を詳しく見る
所属団体名: 公社 新潟県宅地建物取引協会 上越支部
取引態様: 仲介
ホームページ: http://www.tanakafudousan-inc.co.jp