1
物件掲載企業数:
297
社
|賃貸物件:
2,855
件|売買物件:
3,262
件|今週の登録物件:
362
件
閲覧中のブラウザ(インターネットエクスプローラー)は非推奨ブラウザです。
物件が正しく表示されなかったり、正しく検索されない場合があります。最新のブラウザ(Google Chrome・Edgeなど)にてご利用お願いいたします。
Google Chrome
Microsoft Edge
アパート・マンション・一戸建て
駐車場
貸土地
店舗
事務所
倉庫・工場
新築分譲マンション
中古マンション
新築一戸建て
中古一戸建て
売土地・分譲地
その他(投資物件など)
マンション
一戸建て
土地
ホーム
>
会社情報
>
物件種別選択
> 物件一覧
新潟土地建物販売センター 株式会社
の
中古一戸建て
物件情報
26件
該当しました。
1
2
次のページ>
表示切替:
一覧表示
/
地図表示
並び替え:
指定なし
新着順
価格が安い順
価格が高い順
画像
物件名/所在地/取扱店
詳細
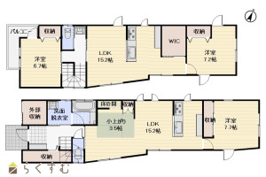
【見附駅まで徒歩約3分!交通利便性良好な立地】■前面道路6m幅員で消雪パイプ付■シャッター付ガレージ1台分有■部屋数豊富なため家族の人数が多い世帯にオススメ
見附市本所 売家
新潟県見附市本所2丁目7-23
新潟土地建物販売センター 株式会社
価格
:
6,500,000
円
土地面積
:231.43㎡ /70坪
建物面積
:168.89㎡ /51.08坪
間取り
:5LDK
築年月
:1985年10月
【安心の子育て環境と毎日の便利がそろう3階建て高床式住宅】 ■リフォームやDIYもオススメ■前面道路消雪パイプ完備 ■駐車2台分のシャッター付き車庫 ■四郎丸小学校まで徒歩7分 ■スーパーが徒歩4分
長岡市前田 売家
新潟県長岡市前田3丁目4-2
新潟土地建物販売センター 株式会社
価格
:
9,000,000
円
土地面積
:103.18㎡ /31.21坪
建物面積
:163.72㎡ /49.52坪
間取り
:5DK
築年月
:1987年9月
【駐車4台&全居室収納付き!内外装リフォーム済み物件】 ■国道116号線まで車約2分 ■スーパー・コンビニまで徒歩9分圏内 ■水回り設備すべて新品 ■全居室に収納完備
刈羽郡刈羽村大字上高町 リフォーム住宅
新潟県刈羽郡刈羽村上高町甲58-33
新潟土地建物販売センター 株式会社
価格
:
11,990,000
円
土地面積
:148.47㎡ /44.91坪
建物面積
:91.91㎡ /27.8坪
間取り
:4LDK
築年月
:1994年6月
■内外装リフォーム済 ■駐車3台可 ■部屋数豊富な5LDK ■水廻り全て新品交換
(リフォーム物件)柏崎市大字与三
新潟県柏崎市与三2051
新潟土地建物販売センター 株式会社
価格
:
11,990,000
円
土地面積
:238㎡ /71.99坪
建物面積
:109.3㎡ /33.06坪
間取り
:5LDK
築年月
:1984年3月
■ミサワホーム施工 ■出雲崎地区の中心部で利便性◎ ■外物置・広い庭付き ■駐車並列2台可能 ■WIC・小屋裏収納等多彩な収納完備
三島郡出雲崎町大字山谷 築12年ミサワホーム施工住戸
新潟県三島郡出雲崎町山谷316-1
新潟土地建物販売センター 株式会社
価格
:
13,800,000
円
土地面積
:364.31㎡ /110.2坪
建物面積
:96.05㎡ /29.05坪
間取り
:3LDK
築年月
:2013年11月
【10部屋の居室と2部屋のフリースペースのある邸宅です!】 ◆駐車3台以上可能! ◆各階にキッチン・トイレ完備! ◆1階部分を店舗や事務所としてもいかがでしょうか。
見附市学校町 売家
新潟県見附市学校町2丁目6-12
新潟土地建物販売センター 株式会社
価格
:
13,800,000
円
土地面積
:413.32㎡ /125.02坪
建物面積
:341.17㎡ /103.2坪
間取り
:10LDK
築年月
:1990年7月
■内外装リフォーム済 ■駐車3台 ■水廻り全て新品交換 ■荒浜海岸歩いてすぐ♪
柏崎市荒浜 リフォーム戸建
新潟県柏崎市荒浜1丁目2-21
新潟土地建物販売センター 株式会社
価格
:
13,990,000
円
土地面積
:210.19㎡ /63.58坪
建物面積
:99.36㎡ /30.05坪
間取り
:3LDK
築年月
:1993年6月
■内外装リフォーム物件 ■駐車4台可能 ■前面道路7.6m ■20.25帖のリビング ■月々4万円台~
柏崎市下田尻 内外装リフォーム物件
新潟県柏崎市大字下田尻2246-5
新潟土地建物販売センター 株式会社
価格
:
15,490,000
円
土地面積
:345.68㎡ /104.56坪
建物面積
:112.3㎡ /33.97坪
間取り
:4LDK
築年月
:1979年10月
■内外装リフォーム ■駐車2台(1台分のインナーガレージ付き) ■前面道路6m、消雪パイプ完備 ■広さを確保した住空間 ■商業施設が徒歩圏内
長岡市城岡 リフォーム戸建
新潟県長岡市城岡3丁目11-5
新潟土地建物販売センター 株式会社
価格
:
15,990,000
円
土地面積
:152.69㎡ /46.18坪
建物面積
:114.27㎡ /34.56坪
間取り
:2LDK
築年月
:1970年10月
【駐車4台分のインナーガレージ・倉庫付き】二世帯におすすめのゆとりある邸宅 ■2階・3階にLDK×2 ■床暖・壁掛けパネルヒーター完備 ■学校・商業施設・国道近く
長岡市関原町 売家
新潟県長岡市関原町1丁目4578
新潟土地建物販売センター 株式会社
価格
:
16,800,000
円
土地面積
:390.73㎡ /118.19坪
建物面積
:324.38㎡ /98.12坪
間取り
:6LDK
築年月
:1998年10月
【リビングに薪ストーブあり♪】2階LDKで田園風景が広がる眺望良好な家! ◆エアコン付き! ◆収納豊富な広々ロフトや小屋裏収納完備◎ ◆関原小学校まで徒歩5分♪
長岡市五反田町 売家
新潟県長岡市五反田町1098
新潟土地建物販売センター 株式会社
価格
:
16,800,000
円
土地面積
:197.5㎡ /59.74坪
建物面積
:74.44㎡ /22.51坪
間取り
:2LDK
築年月
:2007年9月
■内外装リフォーム! ■駐車3台!(1台分のガレージ付き) ■前面道路6m♪ ■月々4万円台~! ■19帖のリビングで快適♪
長岡市猫興野 内外装リフォーム物件
新潟県長岡市猫興野21-7
新潟土地建物販売センター 株式会社
価格
:
16,990,000
円
土地面積
:375.28㎡ /113.52坪
建物面積
:166.42㎡ /50.34坪
間取り
:5LDK
築年月
:1992年12月
■ 新耐震基準適合×内外装リフォーム住宅 ■ 前面道路に消雪パイプ完備 ■ 駐車3台可能(1台分カーポート付) ■ キッチン・浴室・洗面・トイレ新品交換
長岡市大曲戸新田 リフォーム戸建
新潟県長岡市大曲戸新田633-15
新潟土地建物販売センター 株式会社
価格
:
16,990,000
円
土地面積
:165.34㎡ /50.01坪
建物面積
:88.88㎡ /26.88坪
間取り
:3LDK
築年月
:1988年11月
■外内装リノベーション住宅 ■駐車2台可(1台分のガレージ付き) ■エアコン1台付 ■ランドリールーム完備で雨の日のお洗濯も安心 ■上組小・宮内中学校区
長岡市豊詰町 リノベーション住宅
新潟県長岡市豊詰町208-22
新潟土地建物販売センター 株式会社
価格
:
18,980,000
円
土地面積
:166.49㎡ /50.36坪
建物面積
:122.51㎡ /37.05坪
間取り
:4LDK
築年月
:1988年7月
■内外装リフォーム ■駐車2台可能 ■前面道路15m、消雪パイプ完備 ■国道17号線までお車約4分 ■小・中学校徒歩8分圏内で子育て安心
長岡市悠久町 リフォーム戸建
新潟県長岡市悠久町4丁目603-3
新潟土地建物販売センター 株式会社
価格
:
18,990,000
円
土地面積
:188.92㎡ /57.14坪
建物面積
:118.92㎡ /35.97坪
間取り
:4LDK
築年月
:1979年8月
【駅&国道8号線付近で利便性良好な内装リフォーム物件】 ◆月々5万円台~ ◆駐車4台可能 ◆リビング約20帖で広々 ◆コンビニまで徒歩約5分
柏崎市北斗町3-1-1
新潟県柏崎市北斗町3丁目1-1
新潟土地建物販売センター 株式会社
価格
:
19,990,000
円
土地面積
:249.14㎡ /75.36坪
建物面積
:119.09㎡ /36.02坪
間取り
:4LDK
築年月
:2009年11月
【長岡市城岡】新価格2090万円! ■北長岡駅至近!カーポート・エアコン付きの4LDK住戸 ■通勤通学に便利♪北長岡駅まで徒歩約2分 ■全居室収納完備でお部屋がスッキリ片付きます ■チャレンジャーまで車で2分
長岡市城岡 戸建
新潟県長岡市城岡1丁目6-32
新潟土地建物販売センター 株式会社
価格
:
20,900,000
円
土地面積
:182.31㎡ /55.14坪
建物面積
:105.15㎡ /31.8坪
間取り
:4LDK
築年月
:2008年10月
【幼稚園・学校・商業施設・バイパスが徒歩圏、本格的な和風庭園付き邸宅】 ■北東角地×前面道路6m、消雪パイプ有 ■敷地面積約102坪 ■敷地内には風情ある和風庭園
長岡市豊 戸建
新潟県長岡市豊1丁目7-12
新潟土地建物販売センター 株式会社
価格
:
21,000,000
円
土地面積
:338㎡ /102.24坪
建物面積
:203.33㎡ /61.5坪
間取り
:6LDK
築年月
:1983年7月
【大島小・中学校近く&生活便利な立地にリフォーム済み物件】 ■前面道路に消雪パイプ完備 ■駐車3台可能、1台分のカーポート付き ■スーパー・コンビニ・薬局が徒歩圏内
長岡市大島新町 売家
新潟県長岡市大島新町5丁目1-19
新潟土地建物販売センター 株式会社
価格
:
22,000,000
円
土地面積
:191㎡ /57.77坪
建物面積
:114.98㎡ /34.78坪
間取り
:3LDK
築年月
:1979年12月
■にいがた安心こむすび住宅■外内装リノベ予定■駐車3台可 ■エアコン1台付き■前面道路消雪あり■全室南東向きで陽当たり良好■中島小・東中学校区
長岡市水道町 リノベーション住宅
新潟県長岡市水道町3-9-5
新潟土地建物販売センター 株式会社
価格
:
22,980,000
円
土地面積
:192.21㎡ /58.14坪
建物面積
:135.01㎡ /40.84坪
間取り
:4LDK
築年月
:1994年11月
表示切替:
一覧表示
/
地図表示
並び替え:
指定なし
新着順
価格が安い順
価格が高い順
価格は物件の代金総額を表示しており、消費税が課税される場合は税込み価格です。
建築条件付き土地価格には、建物価格は含まれません。
物件情報の詳細については取り扱い店までお問い合わせください。
完成予想図はいずれも外構・植栽・外観等実際のものと異なることが多少あります。
CG合成の画像の場合実際と異なることが多少あります。
完成後1年以上経過したものが未入居として記載される場合があります。ご了承ください。
販売予定物件は販売開始するまで契約または予約の申し込みはできません。
ご購入の場合物件詳細や契約内容についてご自身で十分ご確認いただきますようよろしく御願いします。
建築条件付きとは…その土地に建築する建物の建築請負契約が、一定期間内に成立することを条件として売買される土地のことをいいます。請負契約成立に向けて設計プランを協議するため、土地購入者が希望する建物にするために一定の期間(概ね3ヶ月)交渉期間としその期間内に希望するプランが実現できたかどうかによって土地の購入の判断をします。納得のいくプランができず請負契約が未成立になった場合、土地契約にかかった代金(手付金など)は、すべて返却されます。
26件
該当しました。
1
2
次のページ>
0件
がマッチ
基本条件
物件種別
中古一戸建て
価格
下限なし
100万円
250万円
500万円
1000万円
1500万円
2000万円
2500万円
3000万円
3500万円
4000万円
4500万円
5000万円
5500万円
6000万円
6500万円
7000万円
7500万円
8000万円
8500万円
9000万円
9500万円
1億円
~
上限なし
100万円
250万円
500万円
1000万円
1500万円
2000万円
2500万円
3000万円
3500万円
4000万円
4500万円
5000万円
5500万円
6000万円
6500万円
7000万円
7500万円
8000万円
8500万円
9000万円
9500万円
1億円
間取り
ワンルーム
1K
1DK
1LDK
2K
2DK
2LDK
3K
3DK
3LDK
4K
4DK
4LDK以上
専有面積
下限なし
20㎡
30㎡
40㎡
50㎡
60㎡
70㎡
80㎡
90㎡
100㎡
~
上限なし
20㎡
30㎡
40㎡
50㎡
60㎡
70㎡
80㎡
90㎡
100㎡
土地面積
下限なし
60㎡ (約18坪)
70㎡ (約21坪)
80㎡ (約24坪)
90㎡ (約27坪)
100㎡ (約30坪)
110㎡ (約33坪)
120㎡ (約36坪)
130㎡ (約39坪)
140㎡ (約42坪)
150㎡ (約45坪)
160㎡ (約48坪)
170㎡ (約51坪)
180㎡ (約54坪)
190㎡ (約57坪)
200㎡ (約60坪)
250㎡ (約75坪)
300㎡ (約90坪)
~
上限なし
60㎡ (約18坪)
70㎡ (約21坪)
80㎡ (約24坪)
90㎡ (約27坪)
100㎡ (約30坪)
110㎡ (約33坪)
120㎡ (約36坪)
130㎡ (約39坪)
140㎡ (約42坪)
150㎡ (約45坪)
160㎡ (約48坪)
170㎡ (約51坪)
180㎡ (約54坪)
190㎡ (約57坪)
200㎡ (約60坪)
250㎡ (約75坪)
300㎡ (約90坪)
建物面積
下限なし
60㎡ (約18坪)
70㎡ (約21坪)
80㎡ (約24坪)
90㎡ (約27坪)
100㎡ (約30坪)
110㎡ (約33坪)
120㎡ (約36坪)
130㎡ (約39坪)
140㎡ (約42坪)
150㎡ (約45坪)
160㎡ (約48坪)
170㎡ (約51坪)
180㎡ (約54坪)
190㎡ (約57坪)
200㎡ (約60坪)
250㎡ (約75坪)
300㎡ (約90坪)
~
上限なし
60㎡ (約18坪)
70㎡ (約21坪)
80㎡ (約24坪)
90㎡ (約27坪)
100㎡ (約30坪)
110㎡ (約33坪)
120㎡ (約36坪)
130㎡ (約39坪)
140㎡ (約42坪)
150㎡ (約45坪)
160㎡ (約48坪)
170㎡ (約51坪)
180㎡ (約54坪)
190㎡ (約57坪)
200㎡ (約60坪)
250㎡ (約75坪)
300㎡ (約90坪)
坪単価
下限なし
5万円
10万円
15万円
20万円
25万円
30万円
35万円
40万円
45万円
50万円
~
上限なし
5万円
10万円
15万円
20万円
25万円
30万円
35万円
40万円
45万円
50万円
築年数
指定なし
新築
3年以内
5年以内
10年以内
15年以内
20年以内
方位
北
北東
東
南東
南
南西
西
北西
おすすめ条件
ペット可・相談
楽器可・相談
情報公開日
指定なし
本日
3日以内
1週間以内
1ヶ月以内
0件
がマッチ
人気のあるこだわり条件
角地(5)
高台に立地(1)
日当り良好(25)
閑静な住宅街(25)
スーパー近く(9)
瑕疵担保保険付き(5)
LDK15帖以上(15)
全室フローリング(10)
築10年以内(1)
築15年以内(1)
駐車2台可能(8)
駐車3台以上可能(15)
駐車場融雪設備あり(2)
南向き(12)
TVインターホン(17)
複層ガラス(2)
デインプルキー(1)
システムキッチン(23)
カウンターキッチン(18)
IHクッキングヒーター(7)
浄水器(8)
食器洗浄乾燥機(4)
3口コンロ(23)
2口コンロ(2)
ガスコンロ設置済み(4)
追いだき機能付き(22)
浴室乾燥機(5)
バス1坪以上(21)
温水洗浄便座(23)
トイレ2か所以上(14)
シャワー付き洗面台(22)
エアコンあり(12)
床暖房(2)
24時間換気システム(2)
オール電化(5)
省エネ給湯機(8)
ウッドデッキ・テラス(2)
都市ガス(19)
LPG(2)
上水道(26)
下水道(26)
バリアフリー(3)
ウォークインクローゼット(12)
全居室収納あり(18)
床下収納(5)
シューズBOX(24)
シューズインクローゼット(1)
内装リフォーム済み(11)
外装リフォーム済み(9)
リノベーション物件(2)
2世帯向き(1)
即引き渡し可能(10)
田舎暮らし(2)
事業向け(2)
条件に合った物件数は、
0 件
です。
立地・環境
角地(5)
高台に立地(1)
日当り良好(25)
閑静な住宅街(25)
スーパー近く(9)
構造・工法・仕様
瑕疵担保保険付き(5)
面積・間取り
LDK15帖以上(15)
全室フローリング(10)
築年
築10年以内(1)
築15年以内(1)
駐車・駐輪
駐車2台可能(8)
駐車3台以上可能(15)
駐車場融雪設備あり(2)
採光・向き
南向き(12)
管理・防犯
TVインターホン(17)
複層ガラス(2)
デインプルキー(1)
キッチン
システムキッチン(23)
カウンターキッチン(18)
IHクッキングヒーター(7)
浄水器(8)
食器洗浄乾燥機(4)
3口コンロ(23)
2口コンロ(2)
ガスコンロ設置済み(4)
浴室
追いだき機能付き(22)
浴室乾燥機(5)
バス1坪以上(21)
トイレ
温水洗浄便座(23)
トイレ2か所以上(14)
洗面所
シャワー付き洗面台(22)
冷暖房・空調
エアコンあり(12)
床暖房(2)
24時間換気システム(2)
光熱設備
オール電化(5)
省エネ給湯機(8)
バルコニー・テラス
ウッドデッキ・テラス(2)
室内仕様・設備
都市ガス(19)
LPG(2)
上水道(26)
下水道(26)
バリアフリー(3)
収納
ウォークインクローゼット(12)
全居室収納あり(18)
床下収納(5)
シューズBOX(24)
シューズインクローゼット(1)
リフォーム
内装リフォーム済み(11)
外装リフォーム済み(9)
リノベーション物件(2)
費用・入居・引渡・条件
2世帯向き(1)
即引き渡し可能(10)
その他
田舎暮らし(2)
事業向け(2)
条件に合った物件数は、
0 件
です。
アパート・マンション・一戸建て
/
駐車場
/
貸土地
/
店舗
/
事務所
/
倉庫・工場
新築分譲マンション
/
中古マンション
/
新築一戸建て
/
中古一戸建て
/
売土地
/
投資物件・その他
マンション
/
一戸建て
/
土地
建てる・リフォーム
物件掲載企業一覧
掲載希望の企業様へ
新潟の不動産情報サイト
サービス利用規約
運営会社
サイトマップ
プライバシーポリシー
お問い合わせ
リンク
Copyright (C)
株式会社 コモンライフ・コーポレーション
. All Rights Reserved.
新潟・長岡・柏崎の賃貸・マンション・アパート・住宅の不動産物件情報サイト
不動産検索サイト「らくすむ」及び関連サイトに記載の不動産情報は、会員規約に則り、情報提供会社様の責任のもとに発信されております。
不動産の賃借、購入に関しては賃借者、購入者ご自身が情報を確認され、会社企業様から説明を受けられたうえで判断をお願いいたします。
不動産検索サイト「らくすむ」及び関連サイトに記載の不動産情報、写真、デザイン、コンテンツなどの
無断転載・転用・複製
など禁止します。