物件掲載企業数:301|賃貸物件:3,192件|売買物件:3,235件|今週の登録物件:237
閲覧中のブラウザ(インターネットエクスプローラー)は非推奨ブラウザです。
物件が正しく表示されなかったり、正しく検索されない場合があります。最新のブラウザ(Google Chrome・Edgeなど)にてご利用お願いいたします。
  

長岡市四郎丸3丁目1-1 中古一戸建て 3R 12,800,000円の物件情報

≪四郎丸小学区≫中央図書館近く、長岡駅まで徒歩12分

物件名/所在地 詳細 価格
店舗ビル 『四郎丸3丁目ビル』
長岡市四郎丸3丁目1-1
  • 土地面積
    :59.8㎡ /18.08坪
  • 建物面積
    :118.5㎡ /35.84坪
  • 間取り
    :3R
  • 築年月
    :1985年3月
12,800,000
  • 店舗ビル 『四郎丸3丁目ビル』
    ㈱スタッフサイトウ不動産部
  • この物件を問い合わせる/無料
  • TEL: 0258-24-0623

物件画像

外観 間取り
物件画像
※画像クリックで拡大表示
外観
物件画像
※画像クリックで拡大表示
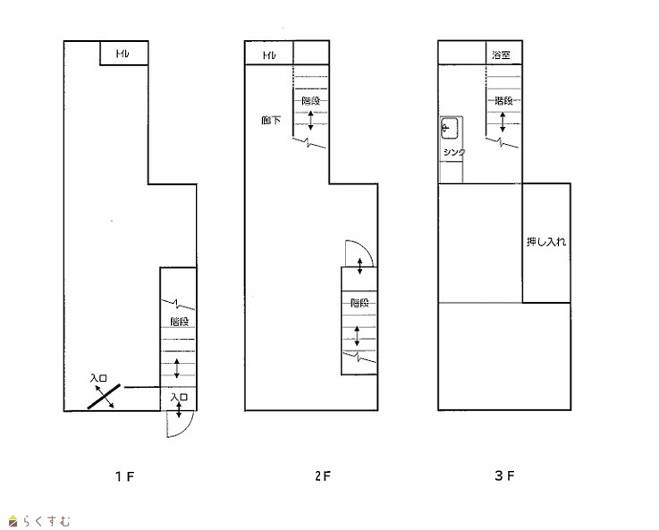
間取り
詳細画像


物件概要

外装、内装リフォーム済です!
物件コード 00011-200335
物件名 店舗ビル 『四郎丸3丁目ビル』
交通 駅:信越線 長岡駅から徒歩12分、バス:学校町1丁目から徒歩1分
物件所在地 長岡市四郎丸3丁目1-1
物件種別 中古一戸建て
構造 鉄骨 階建 地上3階建
建ぺい率/容積率 60%/200%
建物面積 1階 39.5㎡/ 2階 39.5㎡/ 3階 39.5㎡/ 計 118.5㎡ /35.84坪
土地面積 59.8㎡ /18.08坪
築年月 1985年3月(築41年)
入居(引き渡し)時期 相談
用途地域 第1種住居地域 地目 宅地
都市計画 市街化区域 学校区 四郎丸小学校(268m)・南中学校(960m)
形状 - 道路 国道352号
私道 - その他の制限 -
  • 店舗ビル 『四郎丸3丁目ビル』
    ㈱スタッフサイトウ不動産部
  • この物件を問い合わせる/無料
  • TEL: 0258-24-0623

物件詳細情報

所在階/階数 - 号室 -
販売価格 12,800,000円 方位 -
間取り 3R
専有面積 - バルコニー面積 -
その他面積 - 駐車場 -
管理費 - 修繕積立金 -
現況 空家
仲介手数料 488,400円
利用制限 -
設備 トイレ2か所以上、エアコンあり、都市ガス、上水道、下水道、内装リフォーム済み、外装リフォーム済み、事業向け
取引態様 一般
備考 駐車場はありません
取り扱い会社

㈱スタッフサイトウ不動産部

新潟県長岡市蔵王2丁目4番17号

情報登録日 2025/09/01 次回更新予定日 2026/05/14
取引条件有効期限 2026/03/31
  • 店舗ビル 『四郎丸3丁目ビル』
    ㈱スタッフサイトウ不動産部
  • この物件を問い合わせる/無料
  • TEL: 0258-24-0623

この物件の地図・周辺情報・行政情報

この物件の周辺情報・行政情報を詳しく見る
【周辺情報】
物件の近くにあるコンビニや銀行・学校など、アイコン付のマップで詳しく表示できます!
【行政情報】
水道料や下水道料・ガス料金など、暮らしに関係のある情報を表示しています。

担当取扱い店舗情報

取扱い店舗画像
㈱スタッフサイトウ不動産部
TEL: 0258-24-0623
所在地: 新潟県長岡市蔵王2丁目4番17号
交通: JR北長岡駅
営業時間: 8:30~17:30/定休日:第2・4土曜・日曜・祭日
免許番号: 新潟県知事(2)第5364号 この会社の情報を詳しく見る
所属団体名: 新潟県宅地建物取引業協会 長岡支部
取引態様: 一般
ホームページ: http://hokuetsu-fudousan.com