| 外装、内装リフォーム済です! | |||
| 物件コード | 00011-200335 | ||
|---|---|---|---|
| 物件名 | 店舗ビル 『四郎丸3丁目ビル』 | ||
| 交通 | 駅:信越線 長岡駅から徒歩12分、バス:学校町1丁目から徒歩1分 | ||
| 物件所在地 | 長岡市四郎丸3丁目1-1 | ||
| 物件種別 | 中古一戸建て | ||
| 構造 | 鉄骨 | 階建 | 地上3階建 |
| 建ぺい率/容積率 | 60%/200% | ||
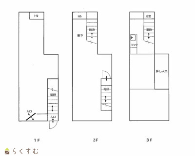
| 建物面積 | 1階 39.5㎡/ 2階 39.5㎡/ 3階 39.5㎡/ 計 118.5㎡ /35.84坪 | ||
| 土地面積 | 59.8㎡ /18.08坪 | ||
| 築年月 | 1985年3月(築41年) | ||
| 入居時期 | 相談 | ||
| 用途地域 | 第1種住居地域 | 地目 | 宅地 |
| 都市計画 | 市街化区域 | 学校区 | 四郎丸小学校(268m)・南中学校(960m) |
| 形状 | - | 道路 | 国道352号 |
| 私道 | - | ||
| 所在階/階数 | - | 号室 | - |
|---|---|---|---|
| 販売価格 | 12,800,000円 | 方位 | - |
| 間取り | 3R | ||
| 専有面積 | - | バルコニー面積 | - |
| その他面積 | - | 駐車場 | - |
| 管理費 | - | 修繕積立金 | - |
| 現況 | 空家 | ||
| 仲介手数料 | 488,400円 | ||
| 利用制限 | - | ||
| 設備 | トイレ2か所以上、エアコンあり、都市ガス、上水道、下水道、内装リフォーム済み、外装リフォーム済み、事業向け | ||
| 取引態様 | 一般 | ||
| 備考 | 駐車場はありません | ||
| 情報登録日 | 2025/09/01 | 次回更新予定日 | 2026/05/14 |
| 取引条件有効期限 | 2026/03/31 | ||
|
|
|
|
|
|
| TEL: | 0258-24-0623 |
|---|---|
| 所在地: | 新潟県長岡市蔵王2丁目4番17号 |
| 交通: | JR北長岡駅 |
| 営業時間: | 8:30~17:30/定休日:第2・4土曜・日曜・祭日 |
| 免許番号: | 新潟県知事(2)第5364号 |
| 所属団体名: | 新潟県宅地建物取引業協会 長岡支部 |
| 取引態様: | 一般 |