1
物件掲載企業数:
297
社
|賃貸物件:
3,621
件|売買物件:
3,318
件|今週の登録物件:
264
件
閲覧中のブラウザ(インターネットエクスプローラー)は非推奨ブラウザです。
物件が正しく表示されなかったり、正しく検索されない場合があります。最新のブラウザ(Google Chrome・Edgeなど)にてご利用お願いいたします。
Google Chrome
Microsoft Edge
アパート・マンション・一戸建て
駐車場
貸土地
店舗
事務所
倉庫・工場
新築分譲マンション
中古マンション
新築一戸建て
中古一戸建て
売土地・分譲地
その他(投資物件など)
マンション
一戸建て
土地
ホーム
>
検索方法選択
>
エリア選択
> 物件一覧
全エリア
の
新築一戸建て
一覧
170件
該当しました。
<前のページ
1
2
3
4
5
6
7
8
9
次のページ>
表示切替:
一覧表示
/
間取り表示
/
地図表示
並び替え:
指定なし
新着順
価格が安い順
価格が高い順
画像
物件名/所在地/取扱店
詳細
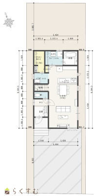
(新築住宅)長岡市希望が丘南
新潟県長岡市希望が丘南5丁目3-21付近
新潟土地建物販売センター 株式会社
価格
:
26,600,000
円
土地面積
:148.29㎡ /44.85坪
建物面積
:90.67㎡ /27.42坪
間取り
:3LDK
築年月
:2026年2月
春日新田モデル
新潟県上越市春日新田2-7-40-1
日成商事株式会社
価格
:
26,600,000
円
土地面積
:164.1㎡ /49.64坪
建物面積
:120.31㎡ /36.39坪
間取り
:4LDK
築年月
:2025年7月
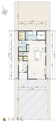
長岡市学校町 新築建売住宅
新潟県長岡市学校町3-6-4
株式会社アップデート不動産
価格
:
26,800,000
円
土地面積
:113.68㎡ /34.38坪
建物面積
:80.32㎡ /24.29坪
間取り
:2LDK
築年月
:2025年12月
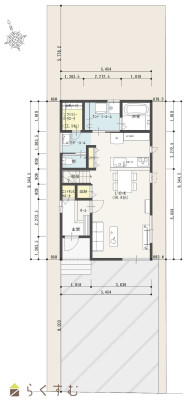
【新築】吉田南分譲住宅
新潟県燕市吉田下中野535-8
株式会社 高野不動産販売
価格
:
26,800,000
円
土地面積
:157.37㎡ /47.6坪
建物面積
:96.05㎡ /29.05坪
間取り
:3LDK
築年月
:2026年5月
【新築】永田分譲住宅
新潟県長岡市永田1丁目2-6
株式会社 高野不動産販売
価格
:
26,800,000
円
土地面積
:148.98㎡ /45.06坪
建物面積
:96㎡ /29.04坪
間取り
:3LDK
築年月
:2026年3月
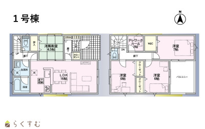
見附市本町1丁目【いろどりアイタウン】1号棟
新潟県見附市本町1丁目6-18付近
ハーバーエステート株式会社
価格
:
26,900,000
円
土地面積
:177.39㎡ /53.66坪
建物面積
:103.03㎡ /31.16坪
間取り
:4LDK
築年月
:2026年4月
( 新築住宅)長岡市草生津
新潟県長岡市草生津3丁目3-26付近
新潟土地建物販売センター 株式会社
価格
:
26,900,000
円
土地面積
:152.86㎡ /46.24坪
建物面積
:90.66㎡ /27.42坪
間取り
:3LDK
築年月
:2026年4月
【テイラーハウス】新潟市秋葉区北上1丁目(B棟)
新潟県新潟市秋葉区北上1-15-37B棟
株式会社ハーツリアルエステート 新潟支店
価格
:
26,980,000
円
土地面積
:165.43㎡ /50.04坪
建物面積
:104.61㎡ /31.64坪
間取り
:4LDK
築年月
:2025年8月
長岡市前田1丁目 建売住宅 1号棟
新潟県長岡市前田1丁目96番
有限会社 一代工務店
価格
:
26,990,000
円
土地面積
:171㎡ /51.72坪
建物面積
:91.71㎡ /27.74坪
間取り
:3LDK
築年月
:2026年1月
長岡市前田1丁目 建売住宅 2号棟
新潟県長岡市前田1丁目97番
有限会社 一代工務店
価格
:
26,990,000
円
土地面積
:168㎡ /50.82坪
建物面積
:91.71㎡ /27.74坪
間取り
:3LDK
築年月
:2026年1月
新築戸建☆トスケンホーム☆上越市国府 B棟
新潟県上越市国府1丁目22-21B棟
株式会社不動産情報社 長岡店
価格
:
27,100,000
円
土地面積
:164.57㎡ /49.78坪
建物面積
:93.56㎡ /28.3坪
間取り
:3LDK
築年月
:2023年12月
新築戸建☆トスケンホーム☆上越市国府A棟
上越市国府1丁目22-21
株式会社不動産情報社 長岡店
価格
:
27,200,000
円
土地面積
:158.76㎡ /48.02坪
建物面積
:93.56㎡ /28.3坪
間取り
:3LDK
築年月
:2023年12月
大島本町 新築戸建
新潟県長岡市大島本町2丁目
有限会社 ブライトサクセス
価格
:
27,300,000
円
土地面積
:133.12㎡ /40.26坪
建物面積
:92.74㎡ /28.05坪
間取り
:3LDK
築年月
:2025年9月
十日町市西本町2丁目 建売住宅 1号棟
新潟県十日町市西本町2丁目9番32
有限会社 一代工務店
価格
:
27,300,000
円
土地面積
:170㎡ /51.42坪
建物面積
:93.36㎡ /28.24坪
間取り
:3LDK
築年月
:2026年1月
(新築住宅)長岡市大島本町 A棟
新潟県長岡市大島本町2丁目6-4付近
新潟土地建物販売センター 株式会社
価格
:
27,300,000
円
土地面積
:133.12㎡ /40.26坪
建物面積
:92.74㎡ /28.05坪
間取り
:3LDK
築年月
:2025年9月
大島本町 A棟 分譲住宅
新潟県長岡市大島本町2丁目6番4
ダイエープロビス株式会社
価格
:
27,300,000
円
土地面積
:133.12㎡ /40.26坪
建物面積
:92.74㎡ /28.05坪
間取り
:3LDK
築年月
:2025年9月
(新築住宅)長岡市中島 B棟
新潟県長岡市中島4丁目4-13付近
新潟土地建物販売センター 株式会社
価格
:
27,500,000
円
土地面積
:146.64㎡ /44.35坪
建物面積
:91.08㎡ /27.55坪
間取り
:3LDK
築年月
:2026年3月
長岡市北山 新築住宅
新潟県長岡市北山4-39-16付近
新潟土地建物販売センター 株式会社
価格
:
27,800,000
円
土地面積
:132㎡ /39.93坪
建物面積
:88.6㎡ /26.8坪
間取り
:3LDK
築年月
:2025年11月
(新築住宅)長岡市宮内 第1
新潟県長岡市宮内2丁目10-18付近
新潟土地建物販売センター 株式会社
価格
:
27,800,000
円
土地面積
:173.62㎡ /52.52坪
建物面積
:98.82㎡ /29.89坪
間取り
:4LDK
築年月
:2025年11月
長岡市中島1丁目 建売住宅
新潟県長岡市中島1丁目291番20
有限会社 一代工務店
価格
:
27,800,000
円
土地面積
:154.64㎡ /46.77坪
建物面積
:91.71㎡ /27.74坪
間取り
:2LDK
築年月
:2026年5月
表示切替:
一覧表示
/
間取り表示
/
地図表示
並び替え:
指定なし
新着順
価格が安い順
価格が高い順
価格は物件の代金総額を表示しており、消費税が課税される場合は税込み価格です。
建築条件付き土地価格には、建物価格は含まれません。
物件情報の詳細については取り扱い店までお問い合わせください。
完成予想図はいずれも外構・植栽・外観等実際のものと異なることが多少あります。
CG合成の画像の場合実際と異なることが多少あります。
完成後1年以上経過したものが未入居として記載される場合があります。ご了承ください。
販売予定物件は販売開始するまで契約または予約の申し込みはできません。
ご購入の場合物件詳細や契約内容についてご自身で十分ご確認いただきますようよろしく御願いします。
建築条件付きとは…その土地に建築する建物の建築請負契約が、一定期間内に成立することを条件として売買される土地のことをいいます。請負契約成立に向けて設計プランを協議するため、土地購入者が希望する建物にするために一定の期間(概ね3ヶ月)交渉期間としその期間内に希望するプランが実現できたかどうかによって土地の購入の判断をします。納得のいくプランができず請負契約が未成立になった場合、土地契約にかかった代金(手付金など)は、すべて返却されます。
170件
該当しました。
<前のページ
1
2
3
4
5
6
7
8
9
次のページ>
0件
がマッチ
基本条件
物件種別
新築一戸建て
価格
下限なし
100万円
250万円
500万円
1000万円
1500万円
2000万円
2500万円
3000万円
3500万円
4000万円
4500万円
5000万円
5500万円
6000万円
6500万円
7000万円
7500万円
8000万円
8500万円
9000万円
9500万円
1億円
~
上限なし
100万円
250万円
500万円
1000万円
1500万円
2000万円
2500万円
3000万円
3500万円
4000万円
4500万円
5000万円
5500万円
6000万円
6500万円
7000万円
7500万円
8000万円
8500万円
9000万円
9500万円
1億円
間取り
ワンルーム
1K
1DK
1LDK
2K
2DK
2LDK
3K
3DK
3LDK
4K
4DK
4LDK以上
専有面積
下限なし
20㎡
30㎡
40㎡
50㎡
60㎡
70㎡
80㎡
90㎡
100㎡
~
上限なし
20㎡
30㎡
40㎡
50㎡
60㎡
70㎡
80㎡
90㎡
100㎡
土地面積
下限なし
60㎡ (約18坪)
70㎡ (約21坪)
80㎡ (約24坪)
90㎡ (約27坪)
100㎡ (約30坪)
110㎡ (約33坪)
120㎡ (約36坪)
130㎡ (約39坪)
140㎡ (約42坪)
150㎡ (約45坪)
160㎡ (約48坪)
170㎡ (約51坪)
180㎡ (約54坪)
190㎡ (約57坪)
200㎡ (約60坪)
250㎡ (約75坪)
300㎡ (約90坪)
~
上限なし
60㎡ (約18坪)
70㎡ (約21坪)
80㎡ (約24坪)
90㎡ (約27坪)
100㎡ (約30坪)
110㎡ (約33坪)
120㎡ (約36坪)
130㎡ (約39坪)
140㎡ (約42坪)
150㎡ (約45坪)
160㎡ (約48坪)
170㎡ (約51坪)
180㎡ (約54坪)
190㎡ (約57坪)
200㎡ (約60坪)
250㎡ (約75坪)
300㎡ (約90坪)
建物面積
下限なし
60㎡ (約18坪)
70㎡ (約21坪)
80㎡ (約24坪)
90㎡ (約27坪)
100㎡ (約30坪)
110㎡ (約33坪)
120㎡ (約36坪)
130㎡ (約39坪)
140㎡ (約42坪)
150㎡ (約45坪)
160㎡ (約48坪)
170㎡ (約51坪)
180㎡ (約54坪)
190㎡ (約57坪)
200㎡ (約60坪)
250㎡ (約75坪)
300㎡ (約90坪)
~
上限なし
60㎡ (約18坪)
70㎡ (約21坪)
80㎡ (約24坪)
90㎡ (約27坪)
100㎡ (約30坪)
110㎡ (約33坪)
120㎡ (約36坪)
130㎡ (約39坪)
140㎡ (約42坪)
150㎡ (約45坪)
160㎡ (約48坪)
170㎡ (約51坪)
180㎡ (約54坪)
190㎡ (約57坪)
200㎡ (約60坪)
250㎡ (約75坪)
300㎡ (約90坪)
坪単価
下限なし
5万円
10万円
15万円
20万円
25万円
30万円
35万円
40万円
45万円
50万円
~
上限なし
5万円
10万円
15万円
20万円
25万円
30万円
35万円
40万円
45万円
50万円
築年数
指定なし
新築
3年以内
5年以内
10年以内
15年以内
20年以内
方位
北
北東
東
南東
南
南西
西
北西
おすすめ条件
ペット可・相談
楽器可・相談
情報公開日
指定なし
本日
3日以内
1週間以内
1ヶ月以内
0件
がマッチ
人気のあるこだわり条件
角地(37)
高台に立地(13)
整形地(128)
前面道路6m以上(124)
日当り良好(131)
閑静な住宅街(118)
スーパー近く(95)
長期優良住宅(22)
設計住宅性能評価付き(29)
耐震構造(42)
BELS/省エネ基準適合認定建物(58)
瑕疵担保保険付き(36)
建物確認・完了検査済証あり(40)
フラット35S適合(37)
LDK15畳以上(126)
全室フローリング(130)
天井高2.5m以上(18)
駐車場2台以上(122)
駐車場3台以上(81)
南向き(80)
庭あり(72)
TVインターホン(155)
複層ガラス(144)
ディンプルキー(73)
システムキッチン(161)
カウンターキッチン(98)
IHクッキングヒーター(137)
浄水器(47)
食器洗浄乾燥機(75)
3口コンロ(102)
ガスコンロ設置済み(13)
追いだき機能付き(147)
浴室暖房乾燥機(42)
バス1坪以上(148)
浴室TV(2)
温水洗浄便座(160)
シャワー付き洗面台(150)
エアコン(129)
床暖房(9)
24時間換気システム(137)
全室エアコン(6)
オール電化(98)
太陽光発電システム(8)
省エネ給湯(136)
高気密高断熱住宅(115)
ウッドデッキ・テラス(24)
ルーフバルコニー(6)
都市ガス(74)
LPG(1)
上水道(166)
下水道(161)
浄化槽(7)
電気(152)
その他水道(1)
ウォークインクローゼット(120)
全居室収納あり(146)
床下収納(52)
シューズインクローゼット(64)
シューズBOX(110)
BS端子(16)
CS(2)
CATV(1)
LAN端子(18)
照明器具付き(118)
即引き渡し可能(54)
バリアフリー(56)
条件に合った物件数は、
0 件
です。
立地・環境
角地(37)
高台に立地(13)
整形地(128)
前面道路6m以上(124)
日当り良好(131)
閑静な住宅街(118)
スーパー近く(95)
構造・工法・仕様
長期優良住宅(22)
設計住宅性能評価付き(29)
耐震構造(42)
BELS/省エネ基準適合認定建物(58)
瑕疵担保保険付き(36)
建物確認・完了検査済証あり(40)
フラット35S適合(37)
面積・間取り
LDK15畳以上(126)
全室フローリング(130)
天井高2.5m以上(18)
駐車・駐輪
駐車場2台以上(122)
駐車場3台以上(81)
採光・向き
南向き(80)
ガーデン
庭あり(72)
管理・防犯
TVインターホン(155)
複層ガラス(144)
ディンプルキー(73)
キッチン
システムキッチン(161)
カウンターキッチン(98)
IHクッキングヒーター(137)
浄水器(47)
食器洗浄乾燥機(75)
3口コンロ(102)
ガスコンロ設置済み(13)
浴室
追いだき機能付き(147)
浴室暖房乾燥機(42)
バス1坪以上(148)
浴室TV(2)
トイレ
温水洗浄便座(160)
洗面所
シャワー付き洗面台(150)
冷暖房・空調
エアコン(129)
床暖房(9)
24時間換気システム(137)
全室エアコン(6)
光熱設備
オール電化(98)
太陽光発電システム(8)
省エネ給湯(136)
高気密高断熱住宅(115)
バルコニー・テラス
ウッドデッキ・テラス(24)
ルーフバルコニー(6)
室内仕様・設備
都市ガス(74)
LPG(1)
上水道(166)
下水道(161)
浄化槽(7)
電気(152)
その他水道(1)
収納
ウォークインクローゼット(120)
全居室収納あり(146)
床下収納(52)
シューズインクローゼット(64)
シューズBOX(110)
電気設備
BS端子(16)
CS(2)
CATV(1)
LAN端子(18)
照明器具付き(118)
費用・入居・引渡・条件
即引き渡し可能(54)
その他
バリアフリー(56)
条件に合った物件数は、
0 件
です。
アパート・マンション・一戸建て
/
駐車場
/
貸土地
/
店舗
/
事務所
/
倉庫・工場
新築分譲マンション
/
中古マンション
/
新築一戸建て
/
中古一戸建て
/
売土地
/
投資物件・その他
マンション
/
一戸建て
/
土地
建てる・リフォーム
物件掲載企業一覧
掲載希望の企業様へ
新潟の不動産情報サイト
サービス利用規約
運営会社
サイトマップ
プライバシーポリシー
お問い合わせ
リンク
Copyright (C)
株式会社 コモンライフ・コーポレーション
. All Rights Reserved.
新潟・長岡・柏崎の賃貸・マンション・アパート・住宅の不動産物件情報サイト
不動産検索サイト「らくすむ」及び関連サイトに記載の不動産情報は、会員規約に則り、情報提供会社様の責任のもとに発信されております。
不動産の賃借、購入に関しては賃借者、購入者ご自身が情報を確認され、会社企業様から説明を受けられたうえで判断をお願いいたします。
不動産検索サイト「らくすむ」及び関連サイトに記載の不動産情報、写真、デザイン、コンテンツなどの
無断転載・転用・複製
など禁止します。