物件掲載企業数:299|賃貸物件:2,871件|売買物件:3,228件|今週の登録物件:302
閲覧中のブラウザ(インターネットエクスプローラー)は非推奨ブラウザです。
物件が正しく表示されなかったり、正しく検索されない場合があります。最新のブラウザ(Google Chrome・Edgeなど)にてご利用お願いいたします。
  

柏崎小学校区貸倉庫・貸工場一覧

表示切替: 一覧表示 地図表示    並び替え:
画像 物件名
所在地
取扱店
面積
間取り
所在階
築年数
賃料
管理費等
共益費
敷金
保証金
礼金
シャッター入替済
物件画像
物件画像
物件画像
物件画像
詳細☆お気に入り★お気に入り
北園町貸ガレージ
B号室
    新潟県柏崎市北園町
    (倉庫・工場・その他)
    11.73㎡
    (3.54坪)
    -
    1階
    不詳
    1.65万円
    なし
    なし
    なし
    なし
    なし
    写真たくさんあり!!
      倉庫、物置として利用できます!
      物件画像
      物件画像
      物件画像
      物件画像
      詳細☆お気に入り★お気に入り
      スペース中央町
        新潟県柏崎市中央町11-12
        (倉庫・工場・その他)
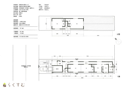
        113.82㎡
        (34.43坪)
        -
        -
        49年
        3.3万円
        なし
        なし
        2ヶ月
        なし
        なし
        写真たくさんあり!!
          セーリングなどのマリンスポーツ用具の倉庫としての利用にもオススメです
          物件画像
          物件画像
          物件画像
          物件画像
          詳細☆お気に入り★お気に入り
          柏崎市中央町 賃貸倉庫 スペース中央町
            新潟県柏崎市中央町
            (倉庫・工場・その他)
            113.83㎡
            (34.43坪)
            -
            -
            49年
            3.3万円
            なし
            なし
            2ヶ月
            なし
            なし
            写真たくさんあり!!
              シャッター入替済
              物件画像
              物件画像
              物件画像
              物件画像
              詳細☆お気に入り★お気に入り
              北園町貸倉庫
                新潟県柏崎市北園町
                (倉庫・工場・その他)
                33.06㎡
                (10坪)
                -
                1階
                不詳
                5.5万円
                なし
                なし
                1ヶ月
                なし
                なし
                写真たくさんあり!!
                  表示切替: 一覧表示 地図表示    並び替え:
                  0件がマッチ
                  基本条件
                  物件種別 倉庫・工場・その他
                  賃料


                  間取り
                  所在階
                  面積
                  築年数
                  方位
                  おすすめ条件
                  情報公開日
                  0件がマッチ
                  人気のあるこだわり条件