1
物件掲載企業数:
297
社
|賃貸物件:
3,611
件|売買物件:
3,320
件|今週の登録物件:
237
件
閲覧中のブラウザ(インターネットエクスプローラー)は非推奨ブラウザです。
物件が正しく表示されなかったり、正しく検索されない場合があります。最新のブラウザ(Google Chrome・Edgeなど)にてご利用お願いいたします。
Google Chrome
Microsoft Edge
アパート・マンション・一戸建て
駐車場
貸土地
店舗
事務所
倉庫・工場
新築分譲マンション
中古マンション
新築一戸建て
中古一戸建て
売土地・分譲地
その他(投資物件など)
マンション
一戸建て
土地
ホーム
>
検索方法選択
>
ランドマーク指定
> 物件一覧
全エリア
の
貸事務所
一覧
160件
該当しました。
<前のページ
1
2
3
4
5
6
7
8
次のページ>
表示切替:
一覧表示
/
間取り表示
/
地図表示
並び替え:
家賃が安い順
家賃が高い順
築年数が新しい順
新着順
画像
物件名
所在地
取扱店
面積
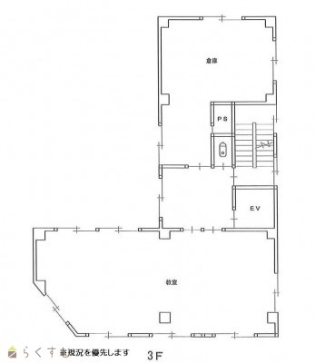
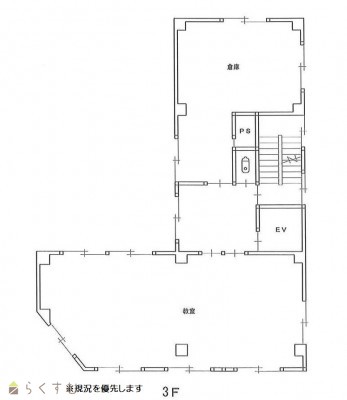
間取り
所在階
築年数
方位
賃料
管理費等
共益費
敷金
保証金
礼金
種別
構造
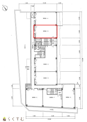
木田中央ビル
新潟県上越市木田2丁目7-23
ピタットハウス上越店 日建不動産
38.86㎡
(11.75坪)
-
2階
44年
-
8.58
万円
なし
なし
2ヶ月
なし
1ヶ月
事務所
鉄骨
諸橋ビル 3階事務所
C号室
新潟県長岡市坂之上町2丁目3番地他
株式会社 長岡土地
50.5㎡
(15.27坪)
-
3階
43年
-
8.8
万円
5,500円/月
なし
2ヶ月
なし
なし
事務所
鉄筋コン
早川ビル 2F
新潟県長岡市喜多町304-2
有限会社 ベスト不動産
60.98㎡
(18.44坪)
-
2階
46年
-
8.8
万円
なし
なし
3ヶ月
なし
1ヶ月
事務所
鉄骨
内山ビル2階
新潟県上越市本町5丁目3-26内山ビル2階
株式会社アール ミニミニFC上越大通り店
132.24㎡
(40坪)
-
2階
51年
-
8.8
万円
なし
あり
2ヶ月
なし
なし
事務所
鉄骨
春日新田2丁目 貸事務所
新潟県上越市春日新田2丁目11番11号
株式会社 すむとこ
121.3㎡
(36.69坪)
-
1階
45年
-
8.8
万円
なし
なし
2ヶ月
なし
0.5ヶ月
事務所
鉄骨
棚橋不動産 関東町ビル(旧斉木ビル)
301号室
新潟県長岡市関東町3番地9
株式会社 棚橋不動産
78.42㎡
(23.72坪)
-
3階
51年
-
8.8
万円
なし
なし
2ヶ月
なし
1ヶ月
事務所
鉄筋コン
港町2丁目 貸事務所2階
新潟県上越市港町2-10-8
上越宅地販売株式会社
73.28㎡
(22.16坪)
-
2階
28年
-
8.8
万円
なし
なし
16万円
なし
なし
事務所
鉄骨
春日新田2丁目 貸事務所
新潟県上越市春日新田2丁目11-11
ピタットハウス上越店 日建不動産
121.3㎡
(36.69坪)
-
1階
45年
-
8.8
万円
なし
なし
2ヶ月
なし
0.5ヶ月
事務所
鉄骨
【人通り◎】春日新田貸事務所1F
新潟県上越市春日新田2丁目11-111F
株式会社 お不動さん
121.3㎡
(36.69坪)
-
1階
45年
-
8.8
万円
なし
なし
2ヶ月
なし
0.5ヶ月
事務所
鉄骨
東蔵王2丁目 『吉沢ビル 左棟 2階』
新潟県長岡市東蔵王2-6-20
㈱スタッフサイトウ不動産部
79.2㎡
(23.95坪)
-
2階
34年
-
8.9
万円
なし
なし
2ヶ月
なし
なし
事務所
鉄骨
レーベン長岡
202号室
新潟県長岡市城内町3丁目5-1
有限会社 グリーン土地
63.96㎡
(19.34坪)
-
2階
41年
-
9
万円
なし
なし
2ヶ月
なし
なし
事務所
鉄骨鉄筋コン
妙高市柳井田4丁目 貸事務所 2階
2号室
新潟県妙高市柳井田町4丁目11番16号
上越宅地販売株式会社
86.74㎡
(26.23坪)
-
2階
不詳
-
9.438
万円
なし
なし
25.74万円
なし
なし
事務所
鉄骨
スノウッド鴨島貸店舗・事務所
上越市鴨島1丁目3番48号
楽栄不動産株式会社
49.5㎡
(14.97坪)
-
1階
27年
-
9.5
万円
なし
あり
3ヶ月
なし
なし
事務所
木造
小千谷市城内4丁目ビル2階 貸事務所
A号室
新潟県小千谷市城内4丁目11番23号A室
株式会社 高野不動産販売
65.52㎡
(19.81坪)
-
2階
25年
-
9.9
万円
なし
なし
2ヶ月
なし
1ヶ月
事務所
鉄骨
棚橋不動産 関東町ビル(旧斉木ビル)
201号室
新潟県長岡市関東町3番地9
株式会社 棚橋不動産
78.42㎡
(23.72坪)
-
2階
51年
-
9.9
万円
なし
なし
2ヶ月
なし
1ヶ月
事務所
鉄筋コン
東蔵王2丁目 『吉沢ビル 右棟2階』
長岡市東蔵王2-6-26
㈱スタッフサイトウ不動産部
97.35㎡
(29.44坪)
-
2階
39年
-
10
万円
なし
なし
3ヶ月
なし
なし
事務所
鉄骨
五十嵐ビル 2階
新潟県長岡市幸町3丁目5-7
髙頭不動産 株式会社
66.11㎡
(19.99坪)
-
2階
48年
-
10
万円
なし
なし
3ヶ月
なし
なし
事務所
鉄筋コン
田中中央ビル2階
203号室
新潟県柏崎市中央町1-14
株式会社 ライフプラン
36㎡
(10.89坪)
-
2階
46年
-
10
万円
なし
あり
1ヶ月
なし
なし
事務所
鉄骨
中田原 貸事務所
上越市大字中田原124-4
上越宅地販売株式会社
82.21㎡
(24.86坪)
-
2階
31年
-
10
万円
なし
なし
2ヶ月
なし
なし
事務所
木造
坂之上町事務所
新潟県長岡市坂之上町3丁目4番2号
株式会社 高野不動産販売
57.5㎡
(17.39坪)
-
2階
27年
-
10
万円
なし
なし
3ヶ月
なし
なし
事務所
鉄骨
表示切替:
一覧表示
/
間取り表示
/
地図表示
並び替え:
家賃が安い順
家賃が高い順
築年数が新しい順
新着順
160件
該当しました。
<前のページ
1
2
3
4
5
6
7
8
次のページ>
0件
がマッチ
基本条件
物件種別
事務所
賃料
下限なし
0.5万円
1.0万円
1.5万円
2.0万円
2.5万円
3.0万円
3.5万円
4.0万円
4.5万円
5.0万円
5.5万円
6.0万円
6.5万円
7.0万円
7.5万円
8.0万円
8.5万円
9.0万円
9.5万円
10万円
11万円
12万円
13万円
14万円
15万円
16万円
17万円
18万円
19万円
20万円
30万円
40万円
50万円
100万円
~
上限なし
0.5万円
1.0万円
1.5万円
2.0万円
2.5万円
3.0万円
3.5万円
4.0万円
4.5万円
5.0万円
5.5万円
6.0万円
6.5万円
7.0万円
7.5万円
8.0万円
8.5万円
9.0万円
9.5万円
10万円
11万円
12万円
13万円
14万円
15万円
16万円
17万円
18万円
19万円
20万円
30万円
40万円
50万円
100万円
管理費を含む
礼金なし
敷金なし
間取り
ワンルーム
1K
1DK
1LDK
2K
2DK
2LDK
3K
3DK
3LDK
4K
4DK
4LDK以上
所在階
指定なし
1階
2階
3階
4階
5階以上
面積
下限なし
20㎡
30㎡
40㎡
50㎡
60㎡
70㎡
80㎡
90㎡
100㎡
~
上限なし
20㎡
30㎡
40㎡
50㎡
60㎡
70㎡
80㎡
90㎡
100㎡
築年数
指定なし
新築
3年以内
5年以内
10年以内
15年以内
20年以内
方位
北
北東
東
南東
南
南西
西
北西
おすすめ条件
女性限定
男性限定
学生可・相談
二人入居可・相談
シニア(60歳以上)入居可・相談
ペット可・相談
事務所利用可・相談
ルームシェア可・相談
情報公開日
指定なし
本日
3日以内
1週間以内
1ヶ月以内
0件
がマッチ
人気のあるこだわり条件
1階(43)
最上階(20)
2階以上(81)
融雪設備あり(41)
オートロック(5)
24時間セキュリティー(15)
防犯カメラ(2)
管理室あり(7)
光ファイバー(9)
エアコン(97)
男女トイレ別(45)
即引き渡し可(71)
フリーレント(詳細は備考欄)(1)
居抜き(9)
スケルトン(13)
エレベーター(39)
給湯(77)
OAフロア(6)
駐車場あり(108)
条件に合った物件数は、
0 件
です。
立地・環境
1階(43)
最上階(20)
2階以上(81)
駐車場・外部
融雪設備あり(41)
管理・防犯
オートロック(5)
24時間セキュリティー(15)
防犯カメラ(2)
管理室あり(7)
設備
光ファイバー(9)
エアコン(97)
男女トイレ別(45)
入居・費用・引渡・条件
即引き渡し可(71)
フリーレント(詳細は備考欄)(1)
居抜き(9)
スケルトン(13)
その他
エレベーター(39)
給湯(77)
OAフロア(6)
駐車場あり(108)
条件に合った物件数は、
0 件
です。
アパート・マンション・一戸建て
/
駐車場
/
貸土地
/
店舗
/
事務所
/
倉庫・工場
新築分譲マンション
/
中古マンション
/
新築一戸建て
/
中古一戸建て
/
売土地
/
投資物件・その他
マンション
/
一戸建て
/
土地
建てる・リフォーム
物件掲載企業一覧
掲載希望の企業様へ
新潟の不動産情報サイト
サービス利用規約
運営会社
サイトマップ
プライバシーポリシー
お問い合わせ
リンク
Copyright (C)
株式会社 コモンライフ・コーポレーション
. All Rights Reserved.
新潟・長岡・柏崎の賃貸・マンション・アパート・住宅の不動産物件情報サイト
不動産検索サイト「らくすむ」及び関連サイトに記載の不動産情報は、会員規約に則り、情報提供会社様の責任のもとに発信されております。
不動産の賃借、購入に関しては賃借者、購入者ご自身が情報を確認され、会社企業様から説明を受けられたうえで判断をお願いいたします。
不動産検索サイト「らくすむ」及び関連サイトに記載の不動産情報、写真、デザイン、コンテンツなどの
無断転載・転用・複製
など禁止します。