物件掲載企業数:297|賃貸物件:3,624件|売買物件:3,288件|今週の登録物件:276
閲覧中のブラウザ(インターネットエクスプローラー)は非推奨ブラウザです。
物件が正しく表示されなかったり、正しく検索されない場合があります。最新のブラウザ(Google Chrome・Edgeなど)にてご利用お願いいたします。
  

新潟県長岡市喜多町304-2 事務所 8.8万円の物件情報

物件名
所在地
面積
間取り
所在階
築年数
方位
賃料
管理費等
共益費
敷金
保証金
礼金
種別
構造
早川ビル 2F
新潟県長岡市喜多町304-2
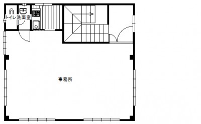
60.98㎡
(18.44坪)
-
2階
46年
-
8.8万円
なし
なし
3ヶ月
なし
1ヶ月
事務所
鉄骨
  • 早川ビル 2F
    有限会社 ベスト不動産
  • この物件を問い合わせる/無料
  • TEL: 0258-29-4353

物件画像

外観 間取り
物件画像
※画像クリックで拡大表示
外観
物件画像
※画像クリックで拡大表示
間取り
詳細画像


物件概要

物件コード 00076-100014
物件名 早川ビル 2F
交通 駅:上越新幹線 長岡駅から徒歩62分、バス:喜多町から徒歩4分
所在地 新潟県長岡市喜多町304-2
物件種別 事務所
総戸数 -
構造 鉄骨 階建 地上3階建
所在階/階数 2階/3階 号室 -
面積 60.98㎡ /18.44坪 方位 -
間取り -
賃料 8.8万円/月
管理費 -
礼金 1ヶ月
敷金 3ヶ月
ほか初期費用 - その他諸費用 -
更新料 - 火災(家財)保険 -
共益費 - 町内費 -
駐車場 3台 バイク料金 -
鍵交換費 - 清掃料 -
更新事務手数料 -
保証区分 連帯保証人のみ
保証会社 区分:指定なし
-
連帯保証人 区分:要
-
仲介手数料 88,000円
築年月 1979年10月(築46年)
利用制限 -
学校区 日越小学校(465m)・西中学校(1,223m)
設備 エアコン、駐車場あり
入居時期 即入居可
取引態様 仲介
備考 -
手数料負担割合/配分割合 貸主:-%   借主:100% / 元付:-%   客付:-%  
取り扱い会社

有限会社 ベスト不動産

新潟県長岡市喜多町3112番地

情報登録日 2025/11/20 次回更新予定日 2025/12/19
  • 早川ビル 2F
    有限会社 ベスト不動産
  • この物件を問い合わせる/無料
  • TEL: 0258-29-4353

この物件の地図・周辺情報・行政情報

この物件の周辺情報・行政情報を詳しく見る
【周辺情報】
物件の近くにあるコンビニや銀行・学校など、アイコン付のマップで詳しく表示できます!
【行政情報】
水道料や下水道料・ガス料金など、暮らしに関係のある情報を表示しています。

担当取扱い店舗情報

取扱い店舗画像
有限会社 ベスト不動産
TEL: 0258-29-4353
所在地: 新潟県長岡市喜多町3112番地
交通:
営業時間: 8:30~18:00/定休日:土日・祭日
免許番号: 新潟県知事(3)5006号 この会社の情報を詳しく見る
所属団体名: 新潟見宅地建物取引協会 長岡支部
取引態様: 仲介