1
物件掲載企業数:
297
社
|賃貸物件:
3,613
件|売買物件:
3,317
件|今週の登録物件:
296
件
閲覧中のブラウザ(インターネットエクスプローラー)は非推奨ブラウザです。
物件が正しく表示されなかったり、正しく検索されない場合があります。最新のブラウザ(Google Chrome・Edgeなど)にてご利用お願いいたします。
Google Chrome
Microsoft Edge
アパート・マンション・一戸建て
駐車場
貸土地
店舗
事務所
倉庫・工場
新築分譲マンション
中古マンション
新築一戸建て
中古一戸建て
売土地・分譲地
その他(投資物件など)
マンション
一戸建て
土地
ホーム
>
検索方法選択
>
ランドマーク指定
> 物件一覧
全エリア
の
貸店舗
一覧
168件
該当しました。
<前のページ
1
2
3
4
5
6
7
次のページ>
表示切替:
一覧表示
/
間取り表示
/
地図表示
並び替え:
家賃が安い順
家賃が高い順
築年数が新しい順
新着順
画像
物件名
所在地
取扱店
面積
間取り
所在階
築年数
方位
賃料
管理費等
共益費
敷金
保証金
礼金
種別
構造
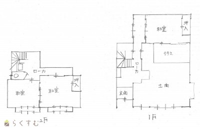
佐々木貸店舗
新潟県南魚沼郡湯沢町土樽5378-1
アイワ不動産
116㎡
(35.09坪)
-
25年
-
5.5
万円
5,500円/月
あり
なし
なし
11万円
店舗
木造鉄筋コン
ビック・ウェイブ
102号室
新潟県柏崎市松波1丁目20-31ビック・ウェイブ102
株式会社 ai-will
46.58㎡
(14.09坪)
-
1階
38年
-
6
万円
なし
あり
1ヶ月
なし
なし
店舗
木造
トークフレンドビル 2階
203号室
新潟県上越市中央5-5-29
株式会社 お不動さん
31.66㎡
(9.57坪)
-
2階
35年
-
6
万円
なし
あり
6万円
なし
なし
店舗
鉄骨
西山貸店舗
新潟県長岡市新町3丁目4-5
越路建設 株式会社
146㎡
(44.16坪)
-
不詳
-
6
万円
なし
なし
2ヶ月
なし
なし
店舗
鉄骨
トークフレンドビル 2階
201号室
新潟県上越市中央5-5-29
株式会社 お不動さん
32.78㎡
(9.91坪)
-
2階
35年
-
6
万円
なし
あり
6万円
なし
なし
店舗
鉄骨
new【募集中】ドームハウス
新潟県上越市大潟区潟町660番地12
株式会社 お不動さん
40.54㎡
(12.26坪)
-
1階
16年
-
6.05
万円
2,000円/月
なし
なし
なし
6.05万円
店舗
発砲ポリスチレン造 平家建
アメジストビル新館3F
新潟県長岡市坂之上町2-4-11アメジストビル新館3F
長生不動産
28.8㎡
(8.71坪)
-
3階
不詳
-
6.05
万円
なし
なし
3ヶ月
なし
なし
店舗
鉄骨
東坂之上ビル
新潟県長岡市東坂之上町1丁目5-9
長生不動産
173.54㎡
(52.49坪)
-
2階
不詳
-
6.5
万円
3,580円/月
なし
3ヶ月
なし
なし
店舗
木造
棚橋不動産 関東町ビル(旧斉木ビル)
101号室
新潟県長岡市関東町3番地9
株式会社 棚橋不動産
32.05㎡
(9.69坪)
-
1階
51年
-
6.6
万円
なし
なし
2ヶ月
なし
1ヶ月
店舗
鉄筋コン
片桐ビル3階
新潟県長岡市大島新町4丁目122-4
髙頭不動産 株式会社
64.72㎡
(19.57坪)
-
3階
46年
-
6.6
万円
なし
なし
18万円
なし
1ヶ月
店舗
鉄骨鉄筋コン
KAKIGAWA LIVING PARK(A-1区画)
A-1号室
新潟県長岡市中島4丁目12-5
(株)池田組
42.6㎡
(12.88坪)
-
1階
49年
-
6.6
万円
5,000円/月
なし
6ヶ月
なし
なし
店舗
鉄筋コン
喜多町プラザ 1階 裏口玄関左
新潟県長岡市喜多町字下川原1000-1
株式会社 長岡総合開発
20.16㎡
(6.09坪)
-
1階
45年
-
6.6
万円
なし
なし
12万円
なし
6.6万円
店舗
鉄筋コン
new【商談中】中央1丁目 貸店舗 1階
0号室
新潟県上越市中央1丁目18番4号
株式会社 お不動さん
45.46㎡
(13.75坪)
-
1階
40年
-
6.6
万円
なし
なし
6万円
なし
6.6万円
店舗
木造
喜多町プラザ 1階 裏口玄関右
新潟県長岡市喜多町字下川原1000-1
株式会社 長岡総合開発
20㎡
(6.05坪)
-
1階
45年
-
6.6
万円
なし
なし
12万円
なし
6.6万円
店舗
鉄筋コン
西沢ビル1階貸店舗
101号室
新潟県小千谷市城内4-1-55西沢ビル101号室
エイブルネットワーク長岡店(株式会社Will企画)
48㎡
(14.52坪)
-
1階
40年
-
7
万円
なし
なし
2ヶ月
なし
なし
店舗
鉄骨
新町2丁目『西山事務所』 駐車場2台付き(屋根付き)
長岡市新町2-2-20
㈱スタッフサイトウ不動産部
41.89㎡
(12.67坪)
-
不詳
-
7
万円
なし
なし
3ヶ月
なし
なし
店舗
木造
クリネットビル上越高田
A号室
上越市本町6丁目2-3
有限会社 春日土地建物
22.32㎡
(6.75坪)
-
1階
48年
-
7
万円
なし
なし
1ヶ月
なし
なし
店舗
鉄筋コン
【募集中】西本町1丁目貸テナント 2F(南側)
南側号室
新潟県上越市西本町1丁目16番17号
株式会社 お不動さん
39.02㎡
(11.8坪)
-
2階
38年
-
7
万円
なし
なし
7万円
なし
なし
店舗
鉄骨
わか家ビル 2Fテナント
新潟県燕市吉田文京町3-16
株式会社不動産情報社 長岡店
121.5㎡
(36.75坪)
-
2階
30年
-
7
万円
なし
あり
2ヶ月
なし
なし
店舗
鉄骨
第一戸貴田ビル 3階北側 事務所・店舗
新潟県長岡市喜多町1084-4
株式会社 長岡総合開発
58.58㎡
(17.72坪)
-
3階
47年
-
7.15
万円
なし
なし
19.5万円
なし
7.15万円
店舗
鉄骨
表示切替:
一覧表示
/
間取り表示
/
地図表示
並び替え:
家賃が安い順
家賃が高い順
築年数が新しい順
新着順
168件
該当しました。
<前のページ
1
2
3
4
5
6
7
次のページ>
0件
がマッチ
基本条件
物件種別
店舗
賃料
下限なし
0.5万円
1.0万円
1.5万円
2.0万円
2.5万円
3.0万円
3.5万円
4.0万円
4.5万円
5.0万円
5.5万円
6.0万円
6.5万円
7.0万円
7.5万円
8.0万円
8.5万円
9.0万円
9.5万円
10万円
11万円
12万円
13万円
14万円
15万円
16万円
17万円
18万円
19万円
20万円
30万円
40万円
50万円
100万円
~
上限なし
0.5万円
1.0万円
1.5万円
2.0万円
2.5万円
3.0万円
3.5万円
4.0万円
4.5万円
5.0万円
5.5万円
6.0万円
6.5万円
7.0万円
7.5万円
8.0万円
8.5万円
9.0万円
9.5万円
10万円
11万円
12万円
13万円
14万円
15万円
16万円
17万円
18万円
19万円
20万円
30万円
40万円
50万円
100万円
管理費を含む
礼金なし
敷金なし
間取り
ワンルーム
1K
1DK
1LDK
2K
2DK
2LDK
3K
3DK
3LDK
4K
4DK
4LDK以上
所在階
指定なし
1階
2階
3階
4階
5階以上
面積
下限なし
20㎡
30㎡
40㎡
50㎡
60㎡
70㎡
80㎡
90㎡
100㎡
~
上限なし
20㎡
30㎡
40㎡
50㎡
60㎡
70㎡
80㎡
90㎡
100㎡
築年数
指定なし
新築
3年以内
5年以内
10年以内
15年以内
20年以内
方位
北
北東
東
南東
南
南西
西
北西
おすすめ条件
女性限定
男性限定
学生可・相談
二人入居可・相談
シニア(60歳以上)入居可・相談
ペット可・相談
事務所利用可・相談
ルームシェア可・相談
情報公開日
指定なし
本日
3日以内
1週間以内
1ヶ月以内
0件
がマッチ
人気のあるこだわり条件
1階(104)
2階以上(43)
最上階(9)
融雪設備あり(36)
軽自動車限定(1)
24時間セキュリティー(3)
光ファイバー(5)
エアコン(66)
男女トイレ別(22)
即引き渡し可(78)
飲食店可(74)
フリーレント(詳細は備考欄)(6)
居抜き(34)
スケルトン(24)
エレベーター(12)
給湯(40)
OAフロア(3)
駐車場あり(70)
条件に合った物件数は、
0 件
です。
立地・環境
1階(104)
2階以上(43)
最上階(9)
駐車場・外部
融雪設備あり(36)
軽自動車限定(1)
管理・防犯
24時間セキュリティー(3)
設備
光ファイバー(5)
エアコン(66)
男女トイレ別(22)
入居・費用・引渡・条件
即引き渡し可(78)
飲食店可(74)
フリーレント(詳細は備考欄)(6)
居抜き(34)
スケルトン(24)
その他
エレベーター(12)
給湯(40)
OAフロア(3)
駐車場あり(70)
条件に合った物件数は、
0 件
です。
アパート・マンション・一戸建て
/
駐車場
/
貸土地
/
店舗
/
事務所
/
倉庫・工場
新築分譲マンション
/
中古マンション
/
新築一戸建て
/
中古一戸建て
/
売土地
/
投資物件・その他
マンション
/
一戸建て
/
土地
建てる・リフォーム
物件掲載企業一覧
掲載希望の企業様へ
新潟の不動産情報サイト
サービス利用規約
運営会社
サイトマップ
プライバシーポリシー
お問い合わせ
リンク
Copyright (C)
株式会社 コモンライフ・コーポレーション
. All Rights Reserved.
新潟・長岡・柏崎の賃貸・マンション・アパート・住宅の不動産物件情報サイト
不動産検索サイト「らくすむ」及び関連サイトに記載の不動産情報は、会員規約に則り、情報提供会社様の責任のもとに発信されております。
不動産の賃借、購入に関しては賃借者、購入者ご自身が情報を確認され、会社企業様から説明を受けられたうえで判断をお願いいたします。
不動産検索サイト「らくすむ」及び関連サイトに記載の不動産情報、写真、デザイン、コンテンツなどの
無断転載・転用・複製
など禁止します。