1
物件掲載企業数:
297
社
|賃貸物件:
3,625
件|売買物件:
3,314
件|今週の登録物件:
270
件
閲覧中のブラウザ(インターネットエクスプローラー)は非推奨ブラウザです。
物件が正しく表示されなかったり、正しく検索されない場合があります。最新のブラウザ(Google Chrome・Edgeなど)にてご利用お願いいたします。
Google Chrome
Microsoft Edge
アパート・マンション・一戸建て
駐車場
貸土地
店舗
事務所
倉庫・工場
新築分譲マンション
中古マンション
新築一戸建て
中古一戸建て
売土地・分譲地
その他(投資物件など)
マンション
一戸建て
土地
ホーム
>
検索方法選択
>
ランドマーク指定
> 物件一覧
全エリア
の
貸店舗
一覧
168件
該当しました。
<前のページ
1
2
3
4
5
6
7
8
9
次のページ>
表示切替:
一覧表示
/
間取り表示
/
地図表示
並び替え:
家賃が安い順
家賃が高い順
築年数が新しい順
新着順
画像
物件名
所在地
取扱店
面積
間取り
所在階
築年数
方位
賃料
管理費等
共益費
敷金
保証金
礼金
種別
構造
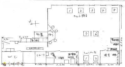
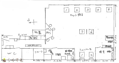
わか家ビル 1Fテナント
新潟県燕市吉田文京町3-16
株式会社不動産情報社 長岡店
99.69㎡
(30.15坪)
-
1階
30年
-
9
万円
なし
あり
2ヶ月
なし
なし
店舗
鉄骨
上海ビル
A号室
新潟県柏崎市鏡町5-3
株式会社 アイエステート
34.8㎡
(10.52坪)
-
2階
6年
-
10
万円
なし
なし
1ヶ月
なし
なし
店舗
鉄骨
new【募集中】金谷貸店舗 1F
1階号室
新潟県上越市西本町1丁目16番17号
株式会社 お不動さん
66.21㎡
(20.02坪)
-
1階
38年
-
10
万円
なし
なし
なし
なし
10万円
店舗
鉄骨
南城町1丁目 貸店舗・事務所
新潟県上越市南城町1丁目13-21
ピタットハウス上越店 日建不動産
68.58㎡
(20.74坪)
-
1階
34年
-
10.78
万円
なし
なし
3ヶ月
なし
なし
店舗
木造
コスモ壱番館ビルB1F
新潟県長岡市坂之上町2丁目3-5コスモ壱番館ビルBF
長生不動産
92.4㎡
(27.95坪)
-
不詳
-
10.91
万円
なし
あり
3ヶ月
なし
なし
店舗
鉄筋コン
柏町ほたるビル(店舗・事務所)
新潟県長岡市柏町2-8-25
長生不動産
178㎡
(53.84坪)
-
不詳
-
11
万円
なし
なし
3ヶ月
なし
なし
店舗
鉄筋コン
りとるたうん興 A1-4
新潟県三条市興野2-58A1-4
株式会社 ユタカ不動産
52.81㎡
(15.97坪)
-
1階
39年
-
11
万円
なし
なし
3ヶ月
なし
なし
店舗
鉄骨
台町貸店舗(旧弥エ門)
新潟県長岡市台町2丁目2-4
株式会社 新日本地所
44.93㎡
(13.59坪)
-
1階
54年
-
11
万円
なし
なし
30万円
なし
なし
店舗
鉄骨
近藤ビル
201号室
新潟県柏崎市東本町1丁目8-34近藤ビル201
有限会社イッケン
90.25㎡
(27.3坪)
-
2階
41年
-
11
万円
なし
なし
2ヶ月
なし
なし
店舗
鉄筋
りとるたうん興 A1-4-2
新潟県三条市興野2-58A1-4-2
株式会社 ユタカ不動産
51.63㎡
(15.61坪)
-
1階
39年
-
11
万円
なし
なし
3ヶ月
なし
なし
店舗
鉄骨
柏崎市諏訪町 1階貸店舗・事務所
1号室
新潟県柏崎市諏訪町5-151階
株式会社 高野不動産販売
63.81㎡
(19.3坪)
-
1階
47年
-
11
万円
なし
なし
3ヶ月
なし
なし
店舗
鉄骨
春日新田1丁目 飲食店
新潟県上越市春日新田1-24-27
ピタットハウス上越店 日建不動産
162.59㎡
(49.18坪)
-
36年
-
11
万円
なし
なし
2ヶ月
なし
なし
店舗
木造
ヤマダオフィスⅡ
A号室
新潟県上越市春日野1丁目4-38
株式会社アール ミニミニFC上越大通り店
52.99㎡
(16.02坪)
-
1階
6年
-
11
万円
なし
あり
1ヶ月
なし
なし
店舗
木造
南町ビル
新潟県柏崎市東本町2-2-14南町ビル1F
有限会社イッケン
107㎡
(32.36坪)
-
不詳
-
11
万円
なし
なし
2ヶ月
なし
なし
店舗
鉄骨
水瀬ビル3F
新潟県長岡市城内町2丁目甲749-10
髙頭不動産 株式会社
62㎡
(18.75坪)
-
3階
43年
-
11
万円
なし
なし
30万円
なし
なし
店舗
鉄筋コン
リバーハイツ日成 店舗A
A号室
新潟県上越市鴨島3-7-46
日成商事株式会社
56.7㎡
(17.15坪)
-
1階
30年
-
11.42
万円
なし
なし
2ヶ月
なし
なし
店舗
鉄筋コン
本町小林店舗
0号室
新潟県見附市本町1丁目1-34
新潟化成株式会社
110㎡
(33.27坪)
-
1階
59年
-
11.5
万円
なし
なし
1ヶ月
なし
なし
店舗
鉄筋コン
上海ビル
B号室
新潟県柏崎市鏡町5-3
株式会社 アイエステート
41.44㎡
(12.53坪)
-
2階
6年
-
12
万円
なし
なし
1ヶ月
なし
なし
店舗
鉄骨
東本町店舗・住居
新潟県柏崎市東本町2丁目1-6
有限会社イッケン
45.77㎡
(13.84坪)
-
1階
不詳
-
12
万円
なし
なし
2ヶ月
なし
1ヶ月
店舗
鉄骨
メゾングリーンベール 1階2号室
2号室
新潟県上越市東雲町2丁目11-31
ピタットハウス上越店 日建不動産
68.04㎡
(20.58坪)
-
1階
28年
-
12.1
万円
なし
なし
3ヶ月
なし
なし
店舗
鉄筋コン
表示切替:
一覧表示
/
間取り表示
/
地図表示
並び替え:
家賃が安い順
家賃が高い順
築年数が新しい順
新着順
168件
該当しました。
<前のページ
1
2
3
4
5
6
7
8
9
次のページ>
0件
がマッチ
基本条件
物件種別
店舗
賃料
下限なし
0.5万円
1.0万円
1.5万円
2.0万円
2.5万円
3.0万円
3.5万円
4.0万円
4.5万円
5.0万円
5.5万円
6.0万円
6.5万円
7.0万円
7.5万円
8.0万円
8.5万円
9.0万円
9.5万円
10万円
11万円
12万円
13万円
14万円
15万円
16万円
17万円
18万円
19万円
20万円
30万円
40万円
50万円
100万円
~
上限なし
0.5万円
1.0万円
1.5万円
2.0万円
2.5万円
3.0万円
3.5万円
4.0万円
4.5万円
5.0万円
5.5万円
6.0万円
6.5万円
7.0万円
7.5万円
8.0万円
8.5万円
9.0万円
9.5万円
10万円
11万円
12万円
13万円
14万円
15万円
16万円
17万円
18万円
19万円
20万円
30万円
40万円
50万円
100万円
管理費を含む
礼金なし
敷金なし
間取り
ワンルーム
1K
1DK
1LDK
2K
2DK
2LDK
3K
3DK
3LDK
4K
4DK
4LDK以上
所在階
指定なし
1階
2階
3階
4階
5階以上
面積
下限なし
20㎡
30㎡
40㎡
50㎡
60㎡
70㎡
80㎡
90㎡
100㎡
~
上限なし
20㎡
30㎡
40㎡
50㎡
60㎡
70㎡
80㎡
90㎡
100㎡
築年数
指定なし
新築
3年以内
5年以内
10年以内
15年以内
20年以内
方位
北
北東
東
南東
南
南西
西
北西
おすすめ条件
女性限定
男性限定
学生可・相談
二人入居可・相談
シニア(60歳以上)入居可・相談
ペット可・相談
事務所利用可・相談
ルームシェア可・相談
情報公開日
指定なし
本日
3日以内
1週間以内
1ヶ月以内
0件
がマッチ
人気のあるこだわり条件
1階(103)
2階以上(43)
最上階(9)
融雪設備あり(36)
軽自動車限定(1)
24時間セキュリティー(3)
光ファイバー(5)
エアコン(65)
男女トイレ別(22)
即引き渡し可(77)
飲食店可(73)
フリーレント(詳細は備考欄)(6)
居抜き(34)
スケルトン(24)
エレベーター(12)
給湯(39)
OAフロア(3)
駐車場あり(71)
条件に合った物件数は、
0 件
です。
立地・環境
1階(103)
2階以上(43)
最上階(9)
駐車場・外部
融雪設備あり(36)
軽自動車限定(1)
管理・防犯
24時間セキュリティー(3)
設備
光ファイバー(5)
エアコン(65)
男女トイレ別(22)
入居・費用・引渡・条件
即引き渡し可(77)
飲食店可(73)
フリーレント(詳細は備考欄)(6)
居抜き(34)
スケルトン(24)
その他
エレベーター(12)
給湯(39)
OAフロア(3)
駐車場あり(71)
条件に合った物件数は、
0 件
です。
アパート・マンション・一戸建て
/
駐車場
/
貸土地
/
店舗
/
事務所
/
倉庫・工場
新築分譲マンション
/
中古マンション
/
新築一戸建て
/
中古一戸建て
/
売土地
/
投資物件・その他
マンション
/
一戸建て
/
土地
建てる・リフォーム
物件掲載企業一覧
掲載希望の企業様へ
新潟の不動産情報サイト
サービス利用規約
運営会社
サイトマップ
プライバシーポリシー
お問い合わせ
リンク
Copyright (C)
株式会社 コモンライフ・コーポレーション
. All Rights Reserved.
新潟・長岡・柏崎の賃貸・マンション・アパート・住宅の不動産物件情報サイト
不動産検索サイト「らくすむ」及び関連サイトに記載の不動産情報は、会員規約に則り、情報提供会社様の責任のもとに発信されております。
不動産の賃借、購入に関しては賃借者、購入者ご自身が情報を確認され、会社企業様から説明を受けられたうえで判断をお願いいたします。
不動産検索サイト「らくすむ」及び関連サイトに記載の不動産情報、写真、デザイン、コンテンツなどの
無断転載・転用・複製
など禁止します。