物件掲載企業数:296|賃貸物件:3,526件|売買物件:3,304件|今週の登録物件:294
閲覧中のブラウザ(インターネットエクスプローラー)は非推奨ブラウザです。
物件が正しく表示されなかったり、正しく検索されない場合があります。最新のブラウザ(Google Chrome・Edgeなど)にてご利用お願いいたします。
  

全エリア月極駐車場一覧

表示切替: 一覧表示 地図表示    並び替え:
画像 物件名
所在地
取扱店
面積
間取り
所在階
築年数
賃料
管理費等
共益費
敷金
保証金
礼金
春日新田の駐車場です。
物件画像
物件画像
物件画像
物件画像
詳細☆お気に入り★お気に入り
春日新田3丁目 貸駐車場(縦列駐車2台可)
    新潟県上越市春日新田3丁目
    (駐車場)
    -
    -
    -
    -
    0.77万円
    なし
    なし
    なし
    なし
    なし
      ☆川崎エリア☆融雪設備完備!
      物件画像
      物件画像
      物件画像
      物件画像
      詳細☆お気に入り★お気に入り
      RENTパーキング 川崎4
        新潟県長岡市川崎4丁目258-1
        (駐車場)
        -
        -
        -
        -
        0.77万円
        なし
        なし
        なし
        なし
        なし
          物件画像
          物件画像
          物件画像
          物件画像
          詳細☆お気に入り★お気に入り
          古川駐車場
            新潟県上越市中央2丁目8-9
            (駐車場)
            -
            -
            -
            -
            0.77万円
            なし
            なし
            2ヶ月
            なし
            なし
              敷地内及び前面道路融雪設備あり。前面道路からスムーズに駐車できます。
              物件画像
              物件画像
              物件画像
              物件画像
              詳細☆お気に入り★お気に入り
              ユメゾン貸駐車場
                新潟県長岡市南七日町27-1B区画
                (駐車場)
                -
                -
                -
                -
                0.77万円
                なし
                なし
                なし
                なし
                なし
                  ☆アクロスプラザ長岡まで徒歩3分☆敷地内融雪設備完備!
                  物件画像
                  物件画像
                  物件画像
                  物件画像
                  詳細☆お気に入り★お気に入り
                  美沢パーキング
                    新潟県長岡市美沢三丁目639他
                    (駐車場)
                    -
                    -
                    -
                    -
                    0.77万円
                    なし
                    なし
                    なし
                    なし
                    なし
                      水道町3丁目『酒井駐車場』 融雪設備あります。
                      物件画像
                      物件画像
                      物件画像
                      物件画像
                      詳細☆お気に入り★お気に入り
                      水道町3『酒井駐車場』
                        長岡市水道町3-2437-2
                        (駐車場)
                        -
                        -
                        -
                        -
                        0.8万円
                        なし
                        なし
                        なし
                        なし
                        なし
                        写真たくさんあり!!
                          直江津郵便局、船見公園、第四北越銀行近くのガレージ駐車場!
                          物件画像
                          物件画像
                          物件画像
                          物件画像
                          詳細☆お気に入り★お気に入り
                          天王町ガレージ 区画D
                            新潟県上越市中央3丁目9番2号
                            (駐車場)
                            -
                            -
                            -
                            -
                            0.8万円
                            なし
                            なし
                            なし
                            なし
                            なし
                            写真たくさんあり!!
                              消雪設備有り 冬期・短期利用可(10,000円になります)
                              物件画像
                              物件画像
                              物件画像
                              物件画像
                              詳細☆お気に入り★お気に入り
                              小林パーキング
                                新潟県長岡市末広1-6-12
                                (駐車場)
                                -
                                -
                                -
                                -
                                0.8万円
                                なし
                                なし
                                なし
                                なし
                                なし
                                  物件画像
                                  物件画像
                                  物件画像
                                  物件画像
                                  詳細☆お気に入り★お気に入り
                                  学校町3丁目KYパーキング
                                  • 新着
                                  新潟県長岡市学校町3丁目31-1
                                  (駐車場)
                                  -
                                  -
                                  -
                                  -
                                  0.8万円
                                  なし
                                  なし
                                  なし
                                  なし
                                  なし
                                  写真たくさんあり!!
                                    長岡駅まで徒歩約10分!弓町1丁目にある駐車場です! 月額賃料8,000円★(小型車、軽自動車限定)
                                    物件画像
                                    物件画像
                                    物件画像
                                    物件画像
                                    詳細☆お気に入り★お気に入り
                                    竹田パーキング
                                      新潟県長岡市弓町1丁目80番
                                      (駐車場)
                                      -
                                      -
                                      -
                                      -
                                      0.8万円
                                      なし
                                      なし
                                      なし
                                      なし
                                      なし
                                        物件画像
                                        物件画像
                                        物件画像
                                        物件画像
                                        詳細☆お気に入り★お気に入り
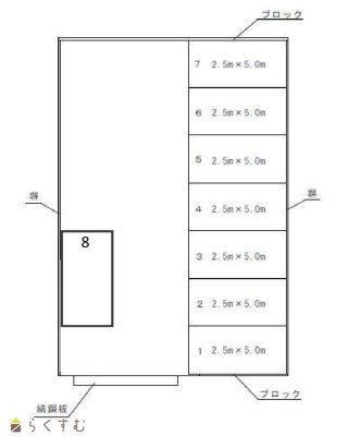
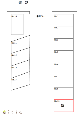
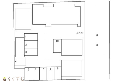
                                        今朝白第7駐車場  NO1 NO6 NO12
                                          新潟県長岡市今朝白1丁目658-2
                                          (駐車場)
                                          -
                                          -
                                          -
                                          -
                                          0.8万円
                                          なし
                                          なし
                                          なし
                                          なし
                                          なし
                                            敷地内、前面道路に消雪パイプがあるので冬場も安心です♪
                                            物件画像
                                            物件画像
                                            物件画像
                                            物件画像
                                            詳細☆お気に入り★お気に入り
                                            渡辺パーキング No.1
                                              新潟県長岡市西神田町2-8-3
                                              (駐車場)
                                              -
                                              -
                                              -
                                              -
                                              0.8万円
                                              なし
                                              なし
                                              なし
                                              なし
                                              なし
                                                カーポート区画空車!消雪設備ありなので冬も安心♪
                                                物件画像
                                                物件画像
                                                物件画像
                                                物件画像
                                                詳細☆お気に入り★お気に入り
                                                近藤貸駐車場 カーポート
                                                  新潟県上越市中央五丁目1538番地内
                                                  (駐車場)
                                                  -
                                                  -
                                                  -
                                                  -
                                                  0.8万円
                                                  なし
                                                  なし
                                                  なし
                                                  なし
                                                  なし
                                                  写真たくさんあり!!
                                                    融雪設備有り 冬期・短期利用可
                                                    物件画像
                                                    物件画像
                                                    物件画像
                                                    物件画像
                                                    詳細☆お気に入り★お気に入り
                                                    中島パーキング
                                                      新潟県長岡市中島2-27
                                                      (駐車場)
                                                      -
                                                      -
                                                      -
                                                      -
                                                      0.8万円
                                                      なし
                                                      なし
                                                      なし
                                                      なし
                                                      なし
                                                        消雪設備有り 冬期短期利用可
                                                        物件画像
                                                        物件画像
                                                        物件画像
                                                        物件画像
                                                        詳細☆お気に入り★お気に入り
                                                        水道町パーキング
                                                          新潟県長岡市水道町5-213-2
                                                          (駐車場)
                                                          -
                                                          -
                                                          -
                                                          -
                                                          0.8万円
                                                          なし
                                                          なし
                                                          なし
                                                          なし
                                                          なし
                                                            中央病院敷地まで徒歩1分、看護学生や近隣の方おすすめです。
                                                            物件画像
                                                            物件画像
                                                            物件画像
                                                            物件画像
                                                            詳細☆お気に入り★お気に入り
                                                            中央病院至近駐車場
                                                              新潟県長岡市川崎町1936-1
                                                              (駐車場)
                                                              -
                                                              -
                                                              -
                                                              -
                                                              0.8万円
                                                              なし
                                                              なし
                                                              なし
                                                              なし
                                                              1ヶ月
                                                              写真たくさんあり!!
                                                              動画あり!!
                                                                冬期間(12~3月)月額10,000円
                                                                物件画像
                                                                物件画像
                                                                物件画像
                                                                物件画像
                                                                詳細☆お気に入り★お気に入り
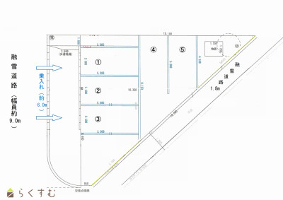
                                                                谷崎駐車場
                                                                  新潟県長岡市東新町3丁目6-21
                                                                  (駐車場)
                                                                  -
                                                                  -
                                                                  -
                                                                  -
                                                                  0.8万円
                                                                  なし
                                                                  なし
                                                                  なし
                                                                  なし
                                                                  なし
                                                                    今朝白2丁目にある駐車場! 融雪装置付いてます!
                                                                    物件画像
                                                                    物件画像
                                                                    物件画像
                                                                    物件画像
                                                                    詳細☆お気に入り★お気に入り
                                                                    丸山パーキング
                                                                      新潟県長岡市今朝白2丁目2-8
                                                                      (駐車場)
                                                                      -
                                                                      -
                                                                      -
                                                                      -
                                                                      0.8万円
                                                                      なし
                                                                      なし
                                                                      なし
                                                                      なし
                                                                      なし
                                                                      写真たくさんあり!!
                                                                        長岡バイパスへのアクセス良好、川崎方面や長岡駅、川西方面へもスムーズです。
                                                                        物件画像
                                                                        物件画像
                                                                        物件画像
                                                                        物件画像
                                                                        詳細☆お気に入り★お気に入り
                                                                        【賃貸】東新町1丁目 駐車場 NO.5
                                                                          新潟県長岡市東新町1丁目2-7
                                                                          (駐車場)
                                                                          -
                                                                          -
                                                                          -
                                                                          -
                                                                          0.8万円
                                                                          なし
                                                                          なし
                                                                          なし
                                                                          なし
                                                                          なし
                                                                          写真たくさんあり!!
                                                                          動画あり!!
                                                                            長岡バイパスへのアクセス良好、川崎方面や長岡駅、川西方面へもスムーズです。
                                                                            物件画像
                                                                            物件画像
                                                                            物件画像
                                                                            物件画像
                                                                            詳細☆お気に入り★お気に入り
                                                                            【賃貸】東新町1丁目 駐車場 NO.6
                                                                              新潟県長岡市東新町1丁目2-7
                                                                              (駐車場)
                                                                              -
                                                                              -
                                                                              -
                                                                              -
                                                                              0.8万円
                                                                              なし
                                                                              なし
                                                                              なし
                                                                              なし
                                                                              なし
                                                                              写真たくさんあり!!
                                                                              動画あり!!
                                                                                表示切替: 一覧表示 地図表示    並び替え:
                                                                                0件がマッチ
                                                                                基本条件
                                                                                物件種別 駐車場
                                                                                賃料


                                                                                間取り
                                                                                所在階
                                                                                面積
                                                                                築年数
                                                                                方位
                                                                                おすすめ条件
                                                                                情報公開日
                                                                                0件がマッチ
                                                                                人気のあるこだわり条件