1
物件掲載企業数:
301
社
|賃貸物件:
3,172
件|売買物件:
3,243
件|今週の登録物件:
159
件
閲覧中のブラウザ(インターネットエクスプローラー)は非推奨ブラウザです。
物件が正しく表示されなかったり、正しく検索されない場合があります。最新のブラウザ(Google Chrome・Edgeなど)にてご利用お願いいたします。
Google Chrome
Microsoft Edge
アパート・マンション・一戸建て
駐車場
貸土地
店舗
事務所
倉庫・工場
新築分譲マンション
中古マンション
新築一戸建て
中古一戸建て
売土地・分譲地
その他(投資物件など)
マンション
一戸建て
土地
ホーム
>
検索方法選択
>
エリア選択
> 物件一覧
東北中学校区
の
新築一戸建て
一覧
22件
該当しました。
1
2
次のページ>
表示切替:
一覧表示
/
地図表示
並び替え:
指定なし
新着順
価格が安い順
価格が高い順
画像
物件名/所在地/取扱店
詳細
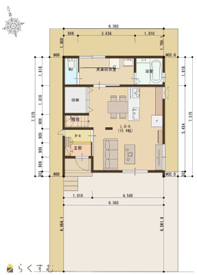
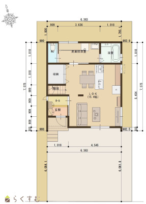
令和8年10月完成予定【完成前なので好みのデザイン選べます!】住宅街が広がる閑静な街並み。徒歩15分圏内に原信・ドン・キホーテ・ニトリやジョーシンなどショッピング施設が充実♪長岡バイパス・東幹線86号線が近くマイカー通勤もスムーズ。
長岡市新保1丁目 Bright新築戸建
新潟県長岡市新保1丁目6-3
有限会社 ブライトサクセス
価格
:
23,300,000
円
土地面積
:138㎡ /41.74坪
建物面積
:86.11㎡ /26.04坪
間取り
:3LDK
築年月
:2026年10月
☆2025年12月完成☆新保1丁目バス停まで徒歩1分!4~5人家族向けの3LDK
長岡市新保1丁目 新築建売住宅
新潟県長岡市新保1丁目6-3
株式会社アップデート不動産
価格
:
23,300,000
円
土地面積
:150.66㎡ /45.57坪
建物面積
:84.45㎡ /25.54坪
間取り
:3LDK
築年月
:2026年10月
【4/1価格改定】2480万円⇒2380万円◆川崎東小学校・東北中学校エリアの建売住宅。 原信・コメリ様の他、飲食店など至近♪ 川崎ICにも近く、アクセス性良好!
長岡市豊2丁目 建売住宅 1号棟
新潟県長岡市豊2丁目1940番11
有限会社 一代工務店
価格
:
23,800,000
円
土地面積
:125.99㎡ /38.11坪
建物面積
:90.88㎡ /27.49坪
間取り
:3LDK
築年月
:2025年5月
【リップス愛宕まで徒歩8分】北海道仕様の高性能住宅 ■前面道路に消雪パイプ完備 ■二重断熱×トリプルサッシで家中快適 ■24時間換気で空気も温度も心地よくキープ ■エアコン2台付
( 新築住宅)長岡市東栄
新潟県長岡市東栄3丁目1-21付近
新潟土地建物販売センター 株式会社
価格
:
25,800,000
円
土地面積
:132.23㎡ /39.99坪
建物面積
:86.11㎡ /26.04坪
間取り
:3LDK
築年月
:2026年2月
令和8年2月築。吹き抜けのあるリビングで開放感のある空間が広がります。 自然光が差し込み、明るい室内環境に配慮されています。 キッチンから洗面脱衣室へとつながる動線で家事がしやすい間取りです。 移動がスムーズで日々の負担軽減につながります。
東栄3丁目 新築戸建
新潟県長岡市東栄3丁目-1-22
有限会社 ブライトサクセス
価格
:
25,800,000
円
土地面積
:132.23㎡ /39.99坪
建物面積
:86.11㎡ /26.04坪
間取り
:3LDK
築年月
:2026年2月
1階・2階にWIC+回遊動線◆LDKは3面採光◆角地◆スーパー等近く便利♪◆ガス衣類乾燥機「乾太くん」付き
長岡市新保5丁目 建売住宅 1号棟
新潟県長岡市新保5丁目404番8、423番6
有限会社 一代工務店
価格
:
28,500,000
円
土地面積
:160.5㎡ /48.55坪
建物面積
:89.23㎡ /26.99坪
間取り
:3LDK
築年月
:2026年5月
【長岡市川崎に省エネで快適な二重断熱×高気密住宅】 ■前面道路に消雪パイプ完備 ■駐車3台可能 ■エアコン2台完備 ■パントリー・リビング・2階ホール収納付で収納力充実
( 新築住宅)長岡市川崎2丁目
新潟県長岡市川崎2丁目2488-15付近
新潟土地建物販売センター 株式会社
価格
:
28,800,000
円
土地面積
:128㎡ /38.72坪
建物面積
:89.43㎡ /27.05坪
間取り
:3LDK
築年月
:2025年12月
\駐車場完備!長岡のお店で相談できます/【当日見学予約大歓迎】 ■長岡事務所で相談OK ■アクロスプラザ長岡店まで車約2分 ■長岡東バイパスまでのアクセス良好 ■前面道路消雪パイプ完備
(新築住宅)長岡市川崎 第1 5・6号棟
新潟県長岡市川崎1-2612-2付近
新潟土地建物販売センター 株式会社
価格
:
28,800,000
円
土地面積
:195.74㎡ /59.21坪
建物面積
:94.77㎡ /28.66坪
間取り
:3LDK
築年月
:2026年7月
\駐車場完備!長岡のお店で相談できます/【当日見学予約大歓迎】 ■長岡事務所で相談OK ■アクロスプラザ長岡店まで車約2分 ■長岡東バイパスまでのアクセス良好 ■前面道路消雪パイプ完備
(新築住宅)長岡市川崎 第1 3・4号棟
新潟県長岡市川崎1-2612-2付近
新潟土地建物販売センター 株式会社
価格
:
29,800,000
円
土地面積
:155.78㎡ /47.12坪
建物面積
:95.98㎡ /29.03坪
間取り
:4LDK
築年月
:2026年7月
【当日見学予約大歓迎】 ■川崎インター至近!お出かけや通勤に便利 ■車で5分圏内に多数生活施設有 ■前面道路6m幅員×消雪パイプ完備
(新築住宅)長岡市永田 第1 1号棟
新潟県長岡市永田1丁目2-21付近
新潟土地建物販売センター 株式会社
価格
:
29,800,000
円
土地面積
:148.97㎡ /45.06坪
建物面積
:95.58㎡ /28.91坪
間取り
:3LDK
築年月
:2026年9月
\駐車場完備!長岡のお店で相談できます/【当日見学予約大歓迎】 ■長岡事務所で相談OK ■アクロスプラザ長岡店まで車約2分 ■長岡東バイパスまでのアクセス良好 ■前面道路消雪パイプ完備
(新築住宅)長岡市川崎 第1 1・2号棟
新潟県長岡市川崎1-2612-2付近
新潟土地建物販売センター 株式会社
価格
:
30,800,000
円
土地面積
:171.03㎡ /51.73坪
建物面積
:98.81㎡ /29.89坪
間取り
:4LDK
築年月
:2026年7月
【熱交換換気扇×二重断熱で快適な住まい】 ■エアコン2台付きで室内快適 ■カースペース3台可 ■食洗器・タッチレス水栓で調理も快適 ■1・2階にトイレ完備
( 新築住宅)長岡市地蔵
新潟県長岡市地蔵2-4-3付近
新潟土地建物販売センター 株式会社
価格
:
32,800,000
円
土地面積
:150.53㎡ /45.53坪
建物面積
:95.22㎡ /28.8坪
間取り
:3LDK
築年月
:2026年8月
令和8年8月完成予定。前面道路5.9mで駐車もしやすい新築建売住宅です。駐車3台可能でご家族分や来客用にも対応できます。スーパー徒歩5分で毎日のお買い物にも便利な立地です。1階収納やフロアキャビネットに加え全居室収納付きで収納力が充実しています。外部物入もあり季節物やアウトドア用品の収納にも便利です。
地蔵2丁目 新築戸建
新潟県長岡市地蔵2-4-3
有限会社 ブライトサクセス
価格
:
32,800,000
円
土地面積
:150.53㎡ /45.53坪
建物面積
:95.22㎡ /28.8坪
間取り
:3LDK
築年月
:2026年8月
【仲介料不要】人気の平屋です!年中快適な『全館空調』と大人気の衣類乾燥機『乾太くん』搭載!ワンフロアの生活はいかがですか??
稲保南2丁目 平屋25坪3LDK
新潟県長岡市稲保南2-509-20
株式会社ヒノキヤグループ パパまるハウスカンパニー長岡支店
価格
:
33,400,000
円
土地面積
:204.11㎡ /61.74坪
建物面積
:84.46㎡ /25.54坪
間取り
:3LDK
築年月
:2025年11月
【仲介手数料不要】30.7坪に「欲しい」がつまった新築住宅
川崎モデルハウス販売
新潟県長岡市川崎3丁目2191-2
株式会社 ハーティーホーム
価格
:
34,600,000
円
土地面積
:236.63㎡ /71.58坪
建物面積
:101.7㎡ /30.76坪
間取り
:3LDK
築年月
:2025年7月
【仲介料不要】人気の学区です!年中快適な『全館空調』搭載!!吹き抜けのある生活はいかがですか?
永田3丁目 3LDK+ランドリースペース+書斎
新潟県長岡市永田3丁目1435-4
株式会社ヒノキヤグループ パパまるハウスカンパニー長岡支店
価格
:
34,700,000
円
土地面積
:196.63㎡ /59.48坪
建物面積
:113.85㎡ /34.43坪
間取り
:3LDK
築年月
:2026年6月
■二重断熱×高気密住宅で快適な省エネ住宅 ■前面道路7m、消雪パイプ有 ■駐車3台可能 ■エアコン3台完備 ■統一感のある美しい街並みの新規分譲地 ■長岡東バイパスまで車3分
( 新築住宅)長岡市稲保南 2階建て
新潟県長岡市稲保南1丁目328-33付近
新潟土地建物販売センター 株式会社
価格
:
34,800,000
円
土地面積
:173.46㎡ /52.47坪
建物面積
:99.37㎡ /30.05坪
間取り
:4LDK
築年月
:2026年8月
令和6年8月築。スーパーやドラッグストア、ショッピングモール、コンビニが徒歩10分圏内に揃う好立地。原信や無印良品、西松屋なども近く、毎日の買い物がらくらく。暮らしやすさを実感できる便利な環境です。
川崎1丁目 未入居戸建
新潟県長岡市川崎1丁目2618-2
有限会社 ブライトサクセス
価格
:
35,500,000
円
土地面積
:226.78㎡ /68.6坪
建物面積
:94.39㎡ /28.55坪
間取り
:3LDK
築年月
:2024年8月
\贅沢な広さのエントランスと吹き抜けホールがあるお家/ ■前面道路6m以上の角地 ■駐車3台可能 ■カーテン&LDKエアコン付き ■アクロスプラザ長岡まで徒歩5分
(新築住宅)長岡市川崎1丁目
新潟県長岡市川崎1丁目2664-3付近
新潟土地建物販売センター 株式会社
価格
:
35,500,000
円
土地面積
:226.78㎡ /68.6坪
建物面積
:94.39㎡ /28.55坪
間取り
:3LDK
築年月
:2024年8月
【9/2 価格改定しました】贅沢な広さのエントランスと吹き抜けホール。家族でバーベキューが楽しめる、アウトドアリビング!きれいな空気でいつも快適にすごせる、熱交換換気を搭載!
川崎 新築デザイン住宅
新潟県長岡市川崎1丁目2618-2
ダイエープロビス株式会社
価格
:
35,500,000
円
土地面積
:226.78㎡ /68.6坪
建物面積
:94.39㎡ /28.55坪
間取り
:3LDK
築年月
:2024年8月
表示切替:
一覧表示
/
地図表示
並び替え:
指定なし
新着順
価格が安い順
価格が高い順
価格は物件の代金総額を表示しており、消費税が課税される場合は税込み価格です。
建築条件付き土地価格には、建物価格は含まれません。
物件情報の詳細については取り扱い店までお問い合わせください。
完成予想図はいずれも外構・植栽・外観等実際のものと異なることが多少あります。
CG合成の画像の場合実際と異なることが多少あります。
完成後1年以上経過したものが未入居として記載される場合があります。ご了承ください。
販売予定物件は販売開始するまで契約または予約の申し込みはできません。
ご購入の場合物件詳細や契約内容についてご自身で十分ご確認いただきますようよろしく御願いします。
建築条件付きとは…その土地に建築する建物の建築請負契約が、一定期間内に成立することを条件として売買される土地のことをいいます。請負契約成立に向けて設計プランを協議するため、土地購入者が希望する建物にするために一定の期間(概ね3ヶ月)交渉期間としその期間内に希望するプランが実現できたかどうかによって土地の購入の判断をします。納得のいくプランができず請負契約が未成立になった場合、土地契約にかかった代金(手付金など)は、すべて返却されます。
22件
該当しました。
1
2
次のページ>
0件
がマッチ
基本条件
物件種別
新築一戸建て
価格
下限なし
100万円
250万円
500万円
1000万円
1500万円
2000万円
2500万円
3000万円
3500万円
4000万円
4500万円
5000万円
5500万円
6000万円
6500万円
7000万円
7500万円
8000万円
8500万円
9000万円
9500万円
1億円
~
上限なし
100万円
250万円
500万円
1000万円
1500万円
2000万円
2500万円
3000万円
3500万円
4000万円
4500万円
5000万円
5500万円
6000万円
6500万円
7000万円
7500万円
8000万円
8500万円
9000万円
9500万円
1億円
間取り
ワンルーム
1K
1DK
1LDK
2K
2DK
2LDK
3K
3DK
3LDK
4K
4DK
4LDK以上
専有面積
下限なし
20㎡
30㎡
40㎡
50㎡
60㎡
70㎡
80㎡
90㎡
100㎡
~
上限なし
20㎡
30㎡
40㎡
50㎡
60㎡
70㎡
80㎡
90㎡
100㎡
土地面積
下限なし
60㎡ (約18坪)
70㎡ (約21坪)
80㎡ (約24坪)
90㎡ (約27坪)
100㎡ (約30坪)
110㎡ (約33坪)
120㎡ (約36坪)
130㎡ (約39坪)
140㎡ (約42坪)
150㎡ (約45坪)
160㎡ (約48坪)
170㎡ (約51坪)
180㎡ (約54坪)
190㎡ (約57坪)
200㎡ (約60坪)
250㎡ (約75坪)
300㎡ (約90坪)
~
上限なし
60㎡ (約18坪)
70㎡ (約21坪)
80㎡ (約24坪)
90㎡ (約27坪)
100㎡ (約30坪)
110㎡ (約33坪)
120㎡ (約36坪)
130㎡ (約39坪)
140㎡ (約42坪)
150㎡ (約45坪)
160㎡ (約48坪)
170㎡ (約51坪)
180㎡ (約54坪)
190㎡ (約57坪)
200㎡ (約60坪)
250㎡ (約75坪)
300㎡ (約90坪)
建物面積
下限なし
60㎡ (約18坪)
70㎡ (約21坪)
80㎡ (約24坪)
90㎡ (約27坪)
100㎡ (約30坪)
110㎡ (約33坪)
120㎡ (約36坪)
130㎡ (約39坪)
140㎡ (約42坪)
150㎡ (約45坪)
160㎡ (約48坪)
170㎡ (約51坪)
180㎡ (約54坪)
190㎡ (約57坪)
200㎡ (約60坪)
250㎡ (約75坪)
300㎡ (約90坪)
~
上限なし
60㎡ (約18坪)
70㎡ (約21坪)
80㎡ (約24坪)
90㎡ (約27坪)
100㎡ (約30坪)
110㎡ (約33坪)
120㎡ (約36坪)
130㎡ (約39坪)
140㎡ (約42坪)
150㎡ (約45坪)
160㎡ (約48坪)
170㎡ (約51坪)
180㎡ (約54坪)
190㎡ (約57坪)
200㎡ (約60坪)
250㎡ (約75坪)
300㎡ (約90坪)
坪単価
下限なし
5万円
10万円
15万円
20万円
25万円
30万円
35万円
40万円
45万円
50万円
~
上限なし
5万円
10万円
15万円
20万円
25万円
30万円
35万円
40万円
45万円
50万円
築年数
指定なし
新築
3年以内
5年以内
10年以内
15年以内
20年以内
方位
北
北東
東
南東
南
南西
西
北西
おすすめ条件
ペット可・相談
楽器可・相談
情報公開日
指定なし
本日
3日以内
1週間以内
1ヶ月以内
0件
がマッチ
人気のあるこだわり条件
角地(8)
整形地(17)
前面道路6m以上(15)
日当り良好(22)
閑静な住宅街(14)
スーパー近く(17)
長期優良住宅(1)
設計住宅性能評価付き(2)
耐震構造(6)
BELS/省エネ基準適合認定建物(8)
瑕疵担保保険付き(2)
建物確認・完了検査済証あり(5)
フラット35S適合(4)
LDK15畳以上(19)
全室フローリング(18)
天井高2.5m以上(6)
駐車場2台以上(13)
駐車場3台以上(13)
南向き(7)
庭あり(5)
TVインターホン(22)
複層ガラス(21)
ディンプルキー(8)
システムキッチン(22)
カウンターキッチン(18)
IHクッキングヒーター(17)
浄水器(7)
食器洗浄乾燥機(11)
3口コンロ(16)
ガスコンロ設置済み(5)
追いだき機能付き(18)
浴室暖房乾燥機(4)
バス1坪以上(21)
浴室TV(1)
温水洗浄便座(21)
シャワー付き洗面台(22)
エアコン(17)
24時間換気システム(21)
オール電化(13)
省エネ給湯(22)
高気密高断熱住宅(19)
ウッドデッキ・テラス(3)
都市ガス(10)
上水道(22)
下水道(22)
電気(21)
ウォークインクローゼット(14)
全居室収納あり(21)
床下収納(9)
シューズインクローゼット(8)
シューズBOX(19)
BS端子(1)
LAN端子(1)
照明器具付き(12)
即引き渡し可能(6)
バリアフリー(9)
条件に合った物件数は、
0 件
です。
立地・環境
角地(8)
整形地(17)
前面道路6m以上(15)
日当り良好(22)
閑静な住宅街(14)
スーパー近く(17)
構造・工法・仕様
長期優良住宅(1)
設計住宅性能評価付き(2)
耐震構造(6)
BELS/省エネ基準適合認定建物(8)
瑕疵担保保険付き(2)
建物確認・完了検査済証あり(5)
フラット35S適合(4)
面積・間取り
LDK15畳以上(19)
全室フローリング(18)
天井高2.5m以上(6)
駐車・駐輪
駐車場2台以上(13)
駐車場3台以上(13)
採光・向き
南向き(7)
ガーデン
庭あり(5)
管理・防犯
TVインターホン(22)
複層ガラス(21)
ディンプルキー(8)
キッチン
システムキッチン(22)
カウンターキッチン(18)
IHクッキングヒーター(17)
浄水器(7)
食器洗浄乾燥機(11)
3口コンロ(16)
ガスコンロ設置済み(5)
浴室
追いだき機能付き(18)
浴室暖房乾燥機(4)
バス1坪以上(21)
浴室TV(1)
トイレ
温水洗浄便座(21)
洗面所
シャワー付き洗面台(22)
冷暖房・空調
エアコン(17)
24時間換気システム(21)
光熱設備
オール電化(13)
省エネ給湯(22)
高気密高断熱住宅(19)
バルコニー・テラス
ウッドデッキ・テラス(3)
室内仕様・設備
都市ガス(10)
上水道(22)
下水道(22)
電気(21)
収納
ウォークインクローゼット(14)
全居室収納あり(21)
床下収納(9)
シューズインクローゼット(8)
シューズBOX(19)
電気設備
BS端子(1)
LAN端子(1)
照明器具付き(12)
費用・入居・引渡・条件
即引き渡し可能(6)
その他
バリアフリー(9)
条件に合った物件数は、
0 件
です。
アパート・マンション・一戸建て
/
駐車場
/
貸土地
/
店舗
/
事務所
/
倉庫・工場
新築分譲マンション
/
中古マンション
/
新築一戸建て
/
中古一戸建て
/
売土地
/
投資物件・その他
マンション
/
一戸建て
/
土地
建てる・リフォーム
物件掲載企業一覧
掲載希望の企業様へ
新潟の不動産情報サイト
サービス利用規約
運営会社
サイトマップ
プライバシーポリシー
お問い合わせ
リンク
Copyright (C)
株式会社 コモンライフ・コーポレーション
. All Rights Reserved.
新潟・長岡・柏崎の賃貸・マンション・アパート・住宅の不動産物件情報サイト
不動産検索サイト「らくすむ」及び関連サイトに記載の不動産情報は、会員規約に則り、情報提供会社様の責任のもとに発信されております。
不動産の賃借、購入に関しては賃借者、購入者ご自身が情報を確認され、会社企業様から説明を受けられたうえで判断をお願いいたします。
不動産検索サイト「らくすむ」及び関連サイトに記載の不動産情報、写真、デザイン、コンテンツなどの
無断転載・転用・複製
など禁止します。