物件掲載企業数:301|賃貸物件:3,194件|売買物件:3,237件|今週の登録物件:240
閲覧中のブラウザ(インターネットエクスプローラー)は非推奨ブラウザです。
物件が正しく表示されなかったり、正しく検索されない場合があります。最新のブラウザ(Google Chrome・Edgeなど)にてご利用お願いいたします。
  

新潟県長岡市永田3丁目1435-4 新築一戸建て 3LDK 34,700,000円の物件情報

【仲介料不要】人気の学区です!年中快適な『全館空調』搭載!!吹き抜けのある生活はいかがですか?

物件名/所在地 詳細 価格
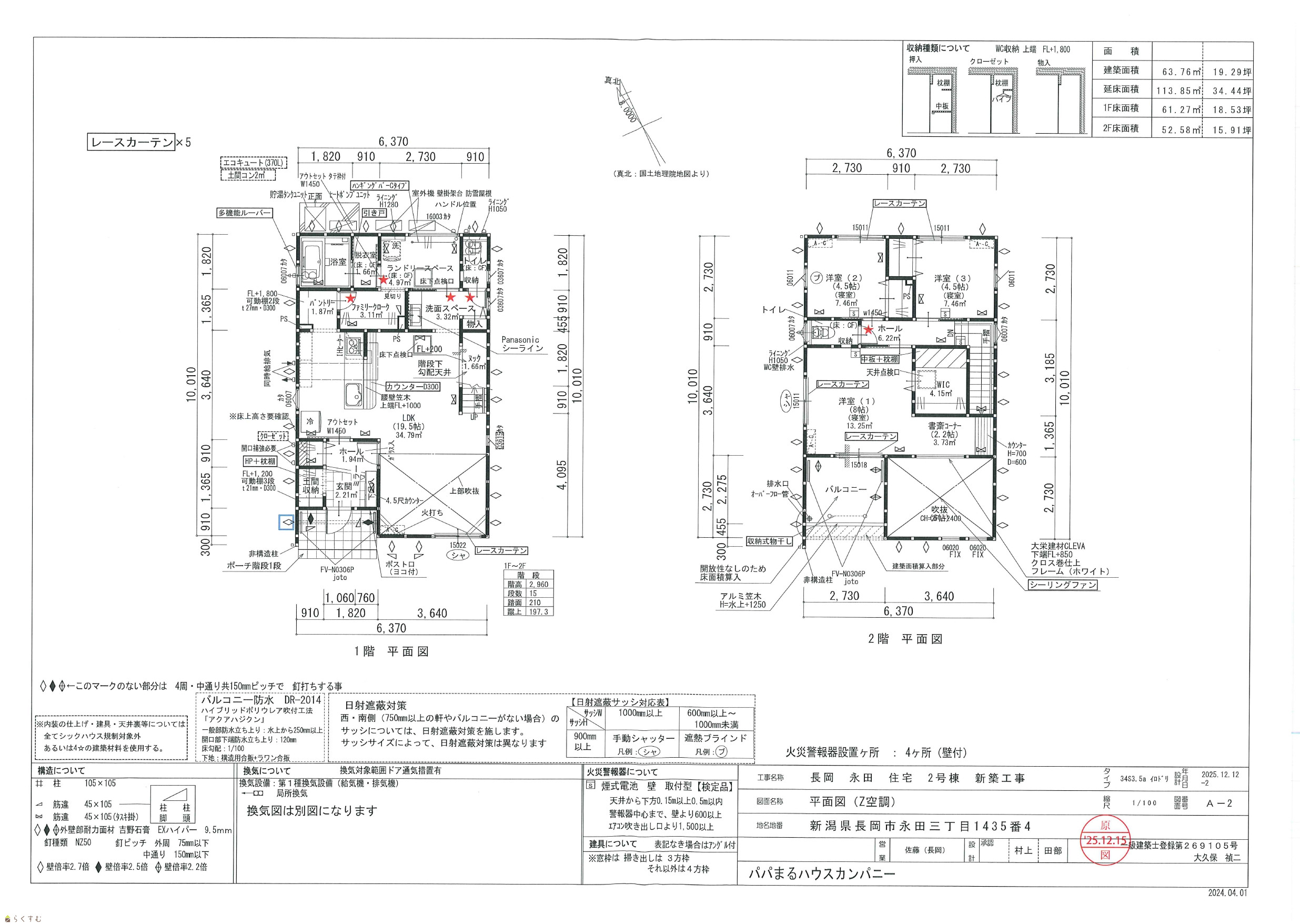
永田3丁目 3LDK+ランドリースペース+書斎
新潟県長岡市永田3丁目1435-4
  • 土地面積
    :196.63㎡ /59.48坪
  • 建物面積
    :113.85㎡ /34.43坪
  • 間取り
    :3LDK
  • 築年月
    :2026年6月
34,700,000
  • 永田3丁目 3LDK+ランドリースペース+書斎
    株式会社ヒノキヤグループ パパまるハウスカンパニー長岡支店
  • この物件を問い合わせる/無料
  • TEL: 0258-28-7880

物件画像

外観 間取り
物件画像
※画像クリックで拡大表示
外観
物件画像
※画像クリックで拡大表示
間取り
詳細画像


物件概要

吹き抜け、ファミリークローク、ランドリースペース、ヌック、書斎 快適スペース盛りだくさん!!
物件コード 00214-200073
物件名 永田3丁目 3LDK+ランドリースペース+書斎
交通 駅:信越線 北長岡駅から徒歩18分、バス:中越高校前から徒歩4分
物件所在地 新潟県長岡市永田3丁目1435-4
物件種別 新築一戸建て
構造 木造 階建 地上2階建
建ぺい率/容積率 50%/80%
建物面積 1階 61.27㎡/ 2階 52.58㎡/ 計 113.85㎡ /34.43坪
土地面積 196.63㎡ /59.48坪
築年月 2026年6月完成予定
入居(引き渡し)時期 内覧会後
用途地域 第1種低層住居専用地域 地目 宅地  (現状:宅地)
都市計画 - 学校区 富曾亀小学校(247m)・東北中学校(1,065m)
形状 間口 8.9m × 奥行 22.56m 道路 市道
私道 - その他の制限 22条区域
  • 永田3丁目 3LDK+ランドリースペース+書斎
    株式会社ヒノキヤグループ パパまるハウスカンパニー長岡支店
  • この物件を問い合わせる/無料
  • TEL: 0258-28-7880

物件詳細情報

所在階/階数 - 号室 -
販売価格 34,700,000円 方位 南西
間取り 3LDK (洋室:4.5、4.5、8)
LDK19.5帖
専有面積 - バルコニー面積 -
その他面積 - 駐車場 -
管理費 - 修繕積立金 -
現況 指定なし
仲介手数料 なし
利用制限 -
設備 整形地、前面道路6m以上、日当り良好、閑静な住宅街、スーパー近く、建物確認・完了検査済証あり、LDK15畳以上、駐車場2台以上、南向き、TVインターホン、複層ガラス、システムキッチン、カウンターキッチン、IHクッキングヒーター、食器洗浄乾燥機、3口コンロ、追いだき機能付き、バス1坪以上、温水洗浄便座、シャワー付き洗面台、エアコン、24時間換気システム、オール電化、省エネ給湯、高気密高断熱住宅、上水道、下水道、電気、ウォークインクローゼット、全居室収納あり、シューズBOX、照明器具付き、バリアフリー
取引態様 売主
備考 全館空調で冬も夏も快適に過ごせます!
原信新保店様まで徒歩8分、ドラッグトップスまで徒歩8分、医療施設、飲食店も徒歩圏内!
是非お気軽にお問合せください。
担当 佐藤(さとう)080-7112-0169
取り扱い会社

株式会社ヒノキヤグループ パパまるハウスカンパニー長岡支店

新潟県長岡市古正寺3丁目10番地1

情報登録日 2026/04/14 次回更新予定日 2026/05/13
取引条件有効期限 2026/12/12
  • 永田3丁目 3LDK+ランドリースペース+書斎
    株式会社ヒノキヤグループ パパまるハウスカンパニー長岡支店
  • この物件を問い合わせる/無料
  • TEL: 0258-28-7880

この物件の地図・周辺情報・行政情報

この物件の周辺情報・行政情報を詳しく見る
【周辺情報】
物件の近くにあるコンビニや銀行・学校など、アイコン付のマップで詳しく表示できます!
【行政情報】
水道料や下水道料・ガス料金など、暮らしに関係のある情報を表示しています。

担当取扱い店舗情報

取扱い店舗画像
株式会社ヒノキヤグループ パパまるハウスカンパニー長岡支店
TEL: 0258-28-7880
所在地: 新潟県長岡市古正寺3丁目10番地1
交通:
営業時間: 8:30~17:30/定休日:祝祭日・年末年始・お盆
免許番号: 国土交通大臣(1)第10420号 この会社の情報を詳しく見る
所属団体名: 公社新潟県宅地建物取引協会 長岡支部
取引態様: 売主
ホームページ: https://www.papamaru.jp/