物件掲載企業数:300|賃貸物件:3,197件|売買物件:3,235件|今週の登録物件:280
閲覧中のブラウザ(インターネットエクスプローラー)は非推奨ブラウザです。
物件が正しく表示されなかったり、正しく検索されない場合があります。最新のブラウザ(Google Chrome・Edgeなど)にてご利用お願いいたします。
  

新潟県上越市幸町16番31号 売土地・分譲地 7,500,000円の物件情報

つちはし保育園、はれまちショッピングセンター近くで子育て環境良好

物件名/所在地 詳細 価格
上越市幸町売地
新潟県上越市幸町16番31号
  • 土地面積
    :178.88㎡ /54.11坪
  • 坪単価
    :138,606円/坪
  • 建ぺい率
    :60%
  • 容積率
    :200%
7,500,000
  • 上越市幸町売地
    合同会社エフアセット
  • この物件を問い合わせる/無料
  • TEL: 025-526-7771

物件画像

外観 間取り
物件画像
※画像クリックで拡大表示
はれまち土橋すぐで生活環境良好
物件画像
※画像クリックで拡大表示
コンパクトな敷地
詳細画像


物件概要

インフラ引込済みでコンパクトな敷地で予算を抑えた無理ない資金計画に最適!
物件コード 00377-200004
物件名 上越市幸町売地
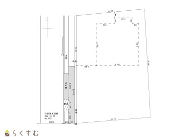
交通 駅:妙高はねうまライン 高田駅から徒歩20分、バス:栄町入口から徒歩4分
物件所在地 新潟県上越市幸町16番31号
物件種別 売土地・分譲地
物件区分 売土地
構造 - 階建 -
建ぺい率/容積率 60%/200%
建物面積 -
土地面積 178.88㎡ /54.11坪
築年月 -
入居(引き渡し)時期 相談
用途地域 第1種低層住居専用地域 地目 宅地  (現状:宅地)
都市計画 市街化区域 学校区 東本町小学校(1,051m)・城北中学校(551m)
形状 間口 16m × 奥行 11m 道路 西 私道 4.0m 位置指定道路
私道 - その他の制限 景観法 43条事前協議(水路跨ぎ接道協議、占有許可要)
  • 上越市幸町売地
    合同会社エフアセット
  • この物件を問い合わせる/無料
  • TEL: 025-526-7771

物件詳細情報

所在階/階数 - 号室 -
販売価格 7,500,000円 方位 -
間取り -
専有面積 - バルコニー面積 -
その他面積 - 駐車場 -
管理費 - 修繕積立金 -
現況 -
仲介手数料 330,000円
利用制限 -
設備 更地、スーパー近く、閑静な住宅街、建築条件なし、所有権、都市ガス(前面道路)、電気、上水道(宅地内)、下水道(宅地内)、住宅向け
取引態様 一般
備考 -
取り扱い会社

合同会社エフアセット

新潟県上越市木田1-8-17上越OSビル

情報登録日 2026/03/31 次回更新予定日 2026/05/11
取引条件有効期限 2026/04/30
  • 上越市幸町売地
    合同会社エフアセット
  • この物件を問い合わせる/無料
  • TEL: 025-526-7771

この物件の地図・周辺情報・行政情報

この物件の周辺情報・行政情報を詳しく見る
【周辺情報】
物件の近くにあるコンビニや銀行・学校など、アイコン付のマップで詳しく表示できます!
【行政情報】
水道料や下水道料・ガス料金など、暮らしに関係のある情報を表示しています。
ローソン 上越土橋店(コンビニ)まで470m
イチコ 幸店(スーパー)まで800m

※カメラのアイコンがある場合は、マウスをポイントするとその施設の画像がご覧いただけます。


担当取扱い店舗情報

取扱い店舗画像
合同会社エフアセット
TEL: 025-526-7771
所在地: 新潟県上越市木田1-8-17上越OSビル
交通: 妙高はねうまライン 春日山駅 徒歩15分
営業時間: /定休日:水曜日
免許番号: 新潟県知事(1)第5774号 この会社の情報を詳しく見る
所属団体名: 公社 全日本不動産協会 新潟県本部
取引態様: 一般
ホームページ: https://www.f-asset.jp/