物件掲載企業数:301|賃貸物件:3,172件|売買物件:3,243件|今週の登録物件:159
閲覧中のブラウザ(インターネットエクスプローラー)は非推奨ブラウザです。
物件が正しく表示されなかったり、正しく検索されない場合があります。最新のブラウザ(Google Chrome・Edgeなど)にてご利用お願いいたします。
  

新潟県上越市東雲町1丁目5-50 投資物件・その他 31,280,000円の物件情報

オーナーチェンジ物件☆広々リッチな1LDKアパートです☆ 総戸数4戸♪新潟労災病院様の目と鼻の先です☆

物件名/所在地 詳細 価格
表面利回り
上越市東雲町1丁目 投資物件
新潟県上越市東雲町1丁目5-50
  • 土地面積
    :223.77㎡ /67.69坪
  • 建ぺい率
    :60%
  • 容積率
    :200%
31,280,000
7.2%
(満室想定時)
  • 上越市東雲町1丁目 投資物件
    有限会社田村家具店
  • この物件を問い合わせる/無料
  • TEL: 025-523-2438

物件画像

外観 間取り
物件画像
※画像クリックで拡大表示
外観
物件画像
※画像クリックで拡大表示
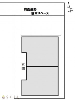
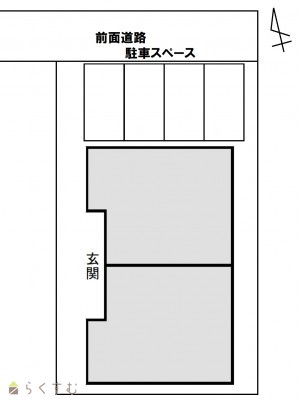
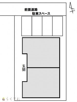
間取り
詳細画像


物件概要

築約10年!まだまだ綺麗です!
物件コード 00277-200119
物件名 上越市東雲町1丁目 投資物件
交通 駅:日本海ひすいライン 直江津駅から徒歩10分
物件所在地 新潟県上越市東雲町1丁目5-50
物件種別 投資物件・その他
物件区分 1棟売りマンション・アパート
構造 軽量鉄骨 階建 地上2階建
建ぺい率/容積率 60%/200%
建物面積 計 169.6㎡ /51.3坪
土地面積 223.77㎡ /67.69坪
築年月 2011年12月(築14年)
入居(引き渡し)時期 相談
用途地域 第1種中高層住居専用地域 地目 宅地  (現状:宅地)
都市計画 市街化区域 学校区 直江津南小学校(593m)・直江津中学校(1,052m)
形状 間口 11.4m 道路 北側約3.8m
私道 - その他の制限 -
  • 上越市東雲町1丁目 投資物件
    有限会社田村家具店
  • この物件を問い合わせる/無料
  • TEL: 025-523-2438

物件詳細情報

所在階/階数 - 号室 -
販売価格 31,280,000円 方位 -
表面利回り(満室想定時) 7.2% 満室想定年収 - (想定月収: - )
現行利回り - 現行年間年収 -
住戸数 4
間取り 1LDK
専有面積 155㎡ /46.88坪 ~ 156㎡ /47.19坪 バルコニー面積 -
その他面積 - 駐車場 無料
管理費 - 修繕積立金 -
現況 賃貸中
仲介手数料 1,208,064円
利用制限 ペット:不可、楽器:不可
設備 駐車場(近隣含む)、公営水道、下水道
取引態様 一般
備考 ・現状渡し。
・オール電化、駐車場1台、インターネット無料。
・前面道路は共有持分。

※本体代金に別途諸経費が掛かりますので予めご了承くださいませ。
取り扱い会社

有限会社田村家具店

新潟県上越市稲田4-5-21

情報登録日 2026/01/29 次回更新予定日 2026/05/18
取引条件有効期限 2035/12/31
  • 上越市東雲町1丁目 投資物件
    有限会社田村家具店
  • この物件を問い合わせる/無料
  • TEL: 025-523-2438

この物件の地図・周辺情報・行政情報

この物件の周辺情報・行政情報を詳しく見る
【周辺情報】
物件の近くにあるコンビニや銀行・学校など、アイコン付のマップで詳しく表示できます!
【行政情報】
水道料や下水道料・ガス料金など、暮らしに関係のある情報を表示しています。
セブン-イレブン 上越東雲町店(コンビニ)まで370m
新潟労災病院(病院)まで170m

※カメラのアイコンがある場合は、マウスをポイントするとその施設の画像がご覧いただけます。


担当取扱い店舗情報

取扱い店舗画像
有限会社田村家具店
TEL: 025-523-2438
所在地: 新潟県上越市稲田4-5-21
交通: 高田駅
営業時間: 午前9:00~午後18:00/定休日:水曜日 第1、第3日曜日
免許番号: 新潟県知事(10)第2792号 この会社の情報を詳しく見る
所属団体名: 公社 新潟県宅地建物取引協会 上越支部
取引態様: 一般