| 築約10年!まだまだ綺麗です! | |||
| 物件コード | 00277-200119 | ||
|---|---|---|---|
| 物件名 | 上越市東雲町1丁目 投資物件 | ||
| 交通 | 駅:日本海ひすいライン 直江津駅から徒歩10分 | ||
| 物件所在地 | 新潟県上越市東雲町1丁目5-50 | ||
| 物件種別 | 投資物件・その他 | ||
| 物件区分 | 1棟売りマンション・アパート | ||
| 構造 | 軽量鉄骨 | 階建 | 地上2階建 |
| 建ぺい率/容積率 | 60%/200% | ||
| 建物面積 | 計 169.6㎡ /51.3坪 | ||
| 土地面積 | 223.77㎡ /67.69坪 | ||
| 築年月 | 2011年12月(築14年) | ||
| 入居時期 | 相談 | ||
| 用途地域 | 第1種中高層住居専用地域 | 地目 | 宅地 (現状:宅地) |
| 都市計画 | 市街化区域 | 学校区 | 直江津南小学校(593m)・直江津中学校(1,052m) |
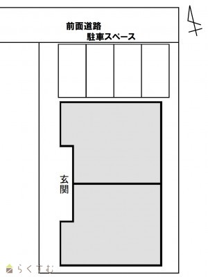
| 形状 | 間口 11.4m | 道路 | 北側約3.8m |
| 私道 | - | ||
| 所在階/階数 | - | 号室 | - |
|---|---|---|---|
| 販売価格 | 31,280,000円 | 方位 | - |
| 表面利回り (満室想定時) |
7.2% | 満室想定年収 | - (想定月収: - ) |
| 現行利回り | - | 現行年間年収 | - |
| 住戸数 | 4 | ||
| 間取り | 1LDK | ||
| 専有面積 | 155㎡ /46.88坪 ~ 156㎡ /47.19坪 | バルコニー面積 | - |
| その他面積 | - | 駐車場 | 無料 |
| 管理費 | - | 修繕積立金 | - |
| 現況 | 賃貸中 | ||
| 仲介手数料 | 1,208,064円 | ||
| 利用制限 | ペット:不可、楽器:不可 | ||
| 設備 | 駐車場(近隣含む)、公営水道、下水道 | ||
| 取引態様 | 一般 | ||
| 備考 | ・現状渡し。 ・オール電化、駐車場1台、インターネット無料。 ・前面道路は共有持分。 ※本体代金に別途諸経費が掛かりますので予めご了承くださいませ。 |
||
| 情報登録日 | 2026/01/29 | 次回更新予定日 | 2026/05/16 |
| 取引条件有効期限 | 2035/12/31 | ||
|
|
|
|
|
| TEL: | 025-523-2438 |
|---|---|
| 所在地: | 新潟県上越市稲田4-5-21 |
| 交通: | 高田駅 |
| 営業時間: | 午前9:00~午後18:00/定休日:水曜日 第1、第3日曜日 |
| 免許番号: | 新潟県知事(10)第2792号 |
| 所属団体名: | 公社 新潟県宅地建物取引協会 上越支部 |
| 取引態様: | 一般 |