物件掲載企業数:301|賃貸物件:3,191件|売買物件:3,236件|今週の登録物件:238
閲覧中のブラウザ(インターネットエクスプローラー)は非推奨ブラウザです。
物件が正しく表示されなかったり、正しく検索されない場合があります。最新のブラウザ(Google Chrome・Edgeなど)にてご利用お願いいたします。
  

新潟県長岡市中之島565-97 中古一戸建て 5LDK 19,800,000円の物件情報

収納力抜群の高床住宅

物件名/所在地 詳細 価格
中之島 高床中古住宅
新潟県長岡市中之島565-97
  • 土地面積
    :267.54㎡ /80.93坪
  • 建物面積
    :194.33㎡ /58.78坪
  • 間取り
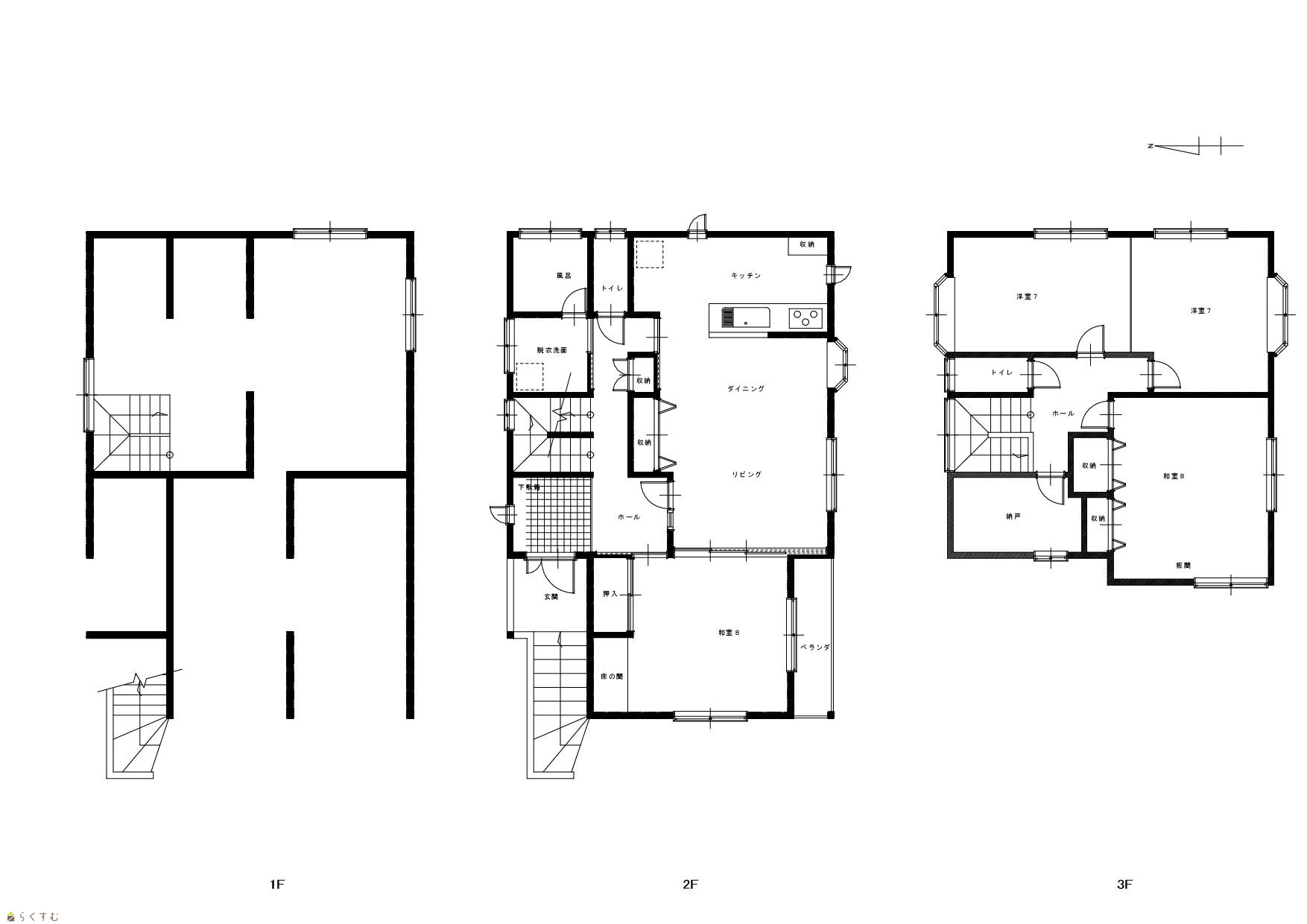
    :5LDK
  • 築年月
    :1995年3月
19,800,000
  • 中之島 高床中古住宅
    株式会社フォレス・タカダ
  • この物件を問い合わせる/無料
  • TEL: 0258-39-2919

物件画像

外観 間取り
物件画像
※画像クリックで拡大表示
外観
物件画像
※画像クリックで拡大表示
間取り
詳細画像
360度画像
リビング
※下のリンクをクリックすると、上の画像が切り替わります。

インターネットエクスプローラーでは360°画像は閲覧できません。それ以外のブラウザでご覧下さい。



物件概要

西側 田園風景
物件コード 00125-200105
物件名 中之島 高床中古住宅
交通 駅:信越線 見附駅から徒歩39分、バス:中之島支所前から徒歩4分
物件所在地 新潟県長岡市中之島565-97
物件種別 中古一戸建て
構造 木造鉄筋コン 階建 地上2階建
建ぺい率/容積率 60%/200%
建物面積 1階 69.56㎡/ 2階 69.56㎡/ 3階 55.21㎡/ 計 194.33㎡ /58.78坪
土地面積 267.54㎡ /80.93坪
築年月 1995年3月(築31年)
入居(引き渡し)時期 相談
用途地域 第1種住居地域 地目 宅地  (現状:既存建物有)
都市計画 市街化区域 学校区 中之島中央小学校(657m)・中之島中学校(1,438m)
形状 間口 11m × 奥行 22m 道路 長岡市道/消雪道路
私道 - その他の制限 -
  • 中之島 高床中古住宅
    株式会社フォレス・タカダ
  • この物件を問い合わせる/無料
  • TEL: 0258-39-2919

物件詳細情報

所在階/階数 - 号室 -
販売価格 19,800,000円 方位 西
間取り 5LDK (和室:8畳、8畳) (洋室:7、7、3)
LDK17.6
高床ならではの圧倒的な収納力。季節用品やアウトドアグッズ、家族の思い出の品まで、スッキリと収められる
専有面積 - バルコニー面積 -
その他面積 - 駐車場 -
管理費 - 修繕積立金 -
現況 居住中
仲介手数料 719,400円
町会費/年間 18,000円
消雪組合費/年間 12,000円
利用制限 -
設備 日当り良好、閑静な住宅街、スーパー近く、LDK15帖以上、駐車3台以上可能、TVインターホン、システムキッチン、カウンターキッチン、3口コンロ、追いだき機能付き、バス1坪以上、温水洗浄便座、トイレ2か所以上、都市ガス、上水道、下水道、外装リフォーム済み
取引態様 一般
備考 ◆外壁と屋根を同時に塗装→2011年◆1Fの和室の壁の断熱材を入れるリフォーム工事→2019年◆1Fの和室にエアコン入れ替え→2019年◆リビングのエアコン入れ替え→2023年◆
洗面台を入れ替え工事→2022年◆ガスレンジ台を入れ替え工事→2024年◆
取り扱い会社

株式会社フォレス・タカダ

新潟県長岡市摂田屋5-6-22

情報登録日 2026/02/25 次回更新予定日 2026/05/14
取引条件有効期限 2026/03/31
  • 中之島 高床中古住宅
    株式会社フォレス・タカダ
  • この物件を問い合わせる/無料
  • TEL: 0258-39-2919

この物件の地図・周辺情報・行政情報

この物件の周辺情報・行政情報を詳しく見る
【周辺情報】
物件の近くにあるコンビニや銀行・学校など、アイコン付のマップで詳しく表示できます!
【行政情報】
水道料や下水道料・ガス料金など、暮らしに関係のある情報を表示しています。
ローソン 中之島店(コンビニ)まで170m
マルイ 中之島店(スーパー)まで140m

※カメラのアイコンがある場合は、マウスをポイントするとその施設の画像がご覧いただけます。


担当取扱い店舗情報

取扱い店舗画像
株式会社フォレス・タカダ
TEL: 0258-39-2919
所在地: 新潟県長岡市摂田屋5-6-22
交通: 信越線〔宮内駅〕徒歩13分
営業時間: 8:30~17:30/定休日:隔週土曜・日曜日・祝/会社カレンダーによる
免許番号: 新潟県知事(8)第3591号 この会社の情報を詳しく見る
所属団体名: 新潟県宅地建物取引業協会 長岡支部
取引態様: 一般
ホームページ: http://www.takada-arc.com