物件掲載企業数:299|賃貸物件:3,031件|売買物件:3,232件|今週の登録物件:324
閲覧中のブラウザ(インターネットエクスプローラー)は非推奨ブラウザです。
物件が正しく表示されなかったり、正しく検索されない場合があります。最新のブラウザ(Google Chrome・Edgeなど)にてご利用お願いいたします。
  

新潟県長岡市大山1丁目12-11 中古一戸建て 4LDK 9,760,000円の物件情報

大山1丁目 ちょうどいい大きさの4LDK中古住宅です!

物件名/所在地 詳細 価格
大山1丁目 中古住宅
新潟県長岡市大山1丁目12-11
  • 土地面積
    :152.59㎡ /46.15坪
  • 建物面積
    :116.28㎡ /35.17坪
  • 間取り
    :4LDK
  • 築年月
    :1994年12月
9,760,000
  • 大山1丁目 中古住宅
    ふどうさんの相談所 (ライフデザイン合同会社 イオン長岡店)
  • この物件を問い合わせる/無料
  • TEL: 0258-94-4370

物件画像

外観 間取り
物件画像
※画像クリックで拡大表示
外観
物件画像
※画像クリックで拡大表示
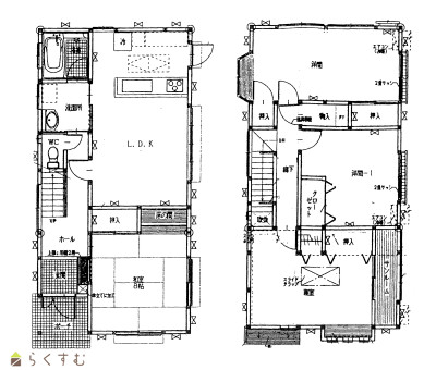
間取り
詳細画像


物件概要

大山1丁目 ちょうどいい大きさの4LDK中古住宅です!
物件コード 00039-200297
物件名 大山1丁目 中古住宅
交通 駅:上越新幹線 長岡駅から徒歩44分、バス:西中入口から徒歩5分
物件所在地 新潟県長岡市大山1丁目12-11
物件種別 中古一戸建て
構造 木造 階建 地上2階建
建ぺい率/容積率 60%/200%
建物面積 1階 57.12㎡/ 2階 59.16㎡/ 計 116.28㎡ /35.17坪
土地面積 152.59㎡ /46.15坪
築年月 1994年12月(築31年)
入居(引き渡し)時期 相談
用途地域 第1種住居地域 地目 宅地
都市計画 市街化区域 学校区 希望が丘小学校(711m)・西中学校(798m)
形状 間口 8.2m 道路 長岡市道 幅員8m(消雪あり)
私道 - その他の制限 法22条区域・まちなか居住区域
  • 大山1丁目 中古住宅
    ふどうさんの相談所 (ライフデザイン合同会社 イオン長岡店)
  • この物件を問い合わせる/無料
  • TEL: 0258-94-4370

物件詳細情報

所在階/階数 - 号室 -
販売価格 9,760,000円 方位 南西
間取り 4LDK (和室:8畳) (洋室:9、7、8.5)
LDK14
専有面積 - バルコニー面積 -
その他面積 - 駐車場 -
管理費 - 修繕積立金 -
現況 -
仲介手数料 388,080円
利用制限 -
設備 日当り良好、閑静な住宅街、駐車2台可能、システムキッチン、2口コンロ、追いだき機能付き、シャワー付き洗面台、都市ガス、上水道、下水道、全居室収納あり
取引態様 一般
備考 〇現状有姿渡し 〇リフォーム相談承ります!
取り扱い会社

ふどうさんの相談所 (ライフデザイン合同会社 イオン長岡店)

新潟県長岡市古正寺1-249-1イオン長岡店3F

情報登録日 2026/04/07 次回更新予定日 2026/04/21
取引条件有効期限 2026/07/07
  • 大山1丁目 中古住宅
    ふどうさんの相談所 (ライフデザイン合同会社 イオン長岡店)
  • この物件を問い合わせる/無料
  • TEL: 0258-94-4370

この物件の地図・周辺情報・行政情報

この物件の周辺情報・行政情報を詳しく見る
【周辺情報】
物件の近くにあるコンビニや銀行・学校など、アイコン付のマップで詳しく表示できます!
【行政情報】
水道料や下水道料・ガス料金など、暮らしに関係のある情報を表示しています。

担当取扱い店舗情報

取扱い店舗画像
ふどうさんの相談所 (ライフデザイン合同会社 イオン長岡店)
TEL: 0258-94-4370
所在地: 新潟県長岡市古正寺1-249-1イオン長岡店3F
交通: 長岡駅
営業時間: 10:00~20:00/定休日:年末年始・特別日はお休みいたします
免許番号: 新潟県知事(3)第5090号 この会社の情報を詳しく見る
所属団体名: 全日本不動産協会 新潟県本部
取引態様: 一般
ホームページ: http://life-dn.com