| 大山1丁目 ちょうどいい大きさの4LDK中古住宅です! | |||
| 物件コード | 00039-200297 | ||
|---|---|---|---|
| 物件名 | 大山1丁目 中古住宅 | ||
| 交通 | 駅:上越新幹線 長岡駅から徒歩44分、バス:西中入口から徒歩5分 | ||
| 物件所在地 | 新潟県長岡市大山1丁目12-11 | ||
| 物件種別 | 中古一戸建て | ||
| 構造 | 木造 | 階建 | 地上2階建 |
| 建ぺい率/容積率 | 60%/200% | ||
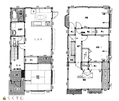
| 建物面積 | 1階 57.12㎡/ 2階 59.16㎡/ 計 116.28㎡ /35.17坪 | ||
| 土地面積 | 152.59㎡ /46.15坪 | ||
| 築年月 | 1994年12月(築31年) | ||
| 入居時期 | 相談 | ||
| 用途地域 | 第1種住居地域 | 地目 | 宅地 |
| 都市計画 | 市街化区域 | 学校区 | 希望が丘小学校(711m)・西中学校(798m) |
| 形状 | 間口 8.2m | 道路 | 長岡市道 幅員8m(消雪あり) |
| 私道 | - | ||
| 所在階/階数 | - | 号室 | - |
|---|---|---|---|
| 販売価格 | 9,760,000円 | 方位 | 南西 |
| 間取り |
4LDK (和室:8畳) (洋室:9、7、8.5) LDK14 |
||
| 専有面積 | - | バルコニー面積 | - |
| その他面積 | - | 駐車場 | - |
| 管理費 | - | 修繕積立金 | - |
| 現況 | - | ||
| 仲介手数料 | 388,080円 | ||
| 利用制限 | - | ||
| 設備 | 日当り良好、閑静な住宅街、駐車2台可能、システムキッチン、2口コンロ、追いだき機能付き、シャワー付き洗面台、都市ガス、上水道、下水道、全居室収納あり | ||
| 取引態様 | 一般 | ||
| 備考 | 〇現状有姿渡し 〇リフォーム相談承ります! | ||
| 情報登録日 | 2026/04/07 | 次回更新予定日 | 2026/04/21 |
| 取引条件有効期限 | 2026/07/07 | ||
|
|
|
|
| TEL: | 0258-94-4370 |
|---|---|
| 所在地: | 新潟県長岡市古正寺1-249-1イオン長岡店3F |
| 交通: | 長岡駅 |
| 営業時間: | 10:00~20:00/定休日:年末年始・特別日はお休みいたします |
| 免許番号: | 新潟県知事(3)第5090号 |
| 所属団体名: | 全日本不動産協会 新潟県本部 |
| 取引態様: | 一般 |