物件掲載企業数:301|賃貸物件:3,194件|売買物件:3,238件|今週の登録物件:241
閲覧中のブラウザ(インターネットエクスプローラー)は非推奨ブラウザです。
物件が正しく表示されなかったり、正しく検索されない場合があります。最新のブラウザ(Google Chrome・Edgeなど)にてご利用お願いいたします。
  

新潟県柏崎市松波2丁目字上ノ島2854番2 新築一戸建て 3LDK 22,800,000円の物件情報

収納豊富な住まい♪料理をしながらLDKを見渡せる対面キッチン仕様です!3台並列駐車可能♪シューズクローク有

物件名/所在地 詳細 価格
柏崎市松波2丁目 建売住宅 2号棟
新潟県柏崎市松波2丁目字上ノ島2854番2
  • 土地面積
    :214.93㎡ /65.01坪
  • 建物面積
    :92.12㎡ /27.86坪
  • 間取り
    :3LDK
  • 築年月
    :2025年9月
22,800,000
  • 柏崎市松波2丁目 建売住宅 2号棟
    有限会社 一代工務店
  • この物件を問い合わせる/無料
  • TEL: 0258-34-2221

物件画像

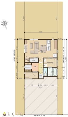
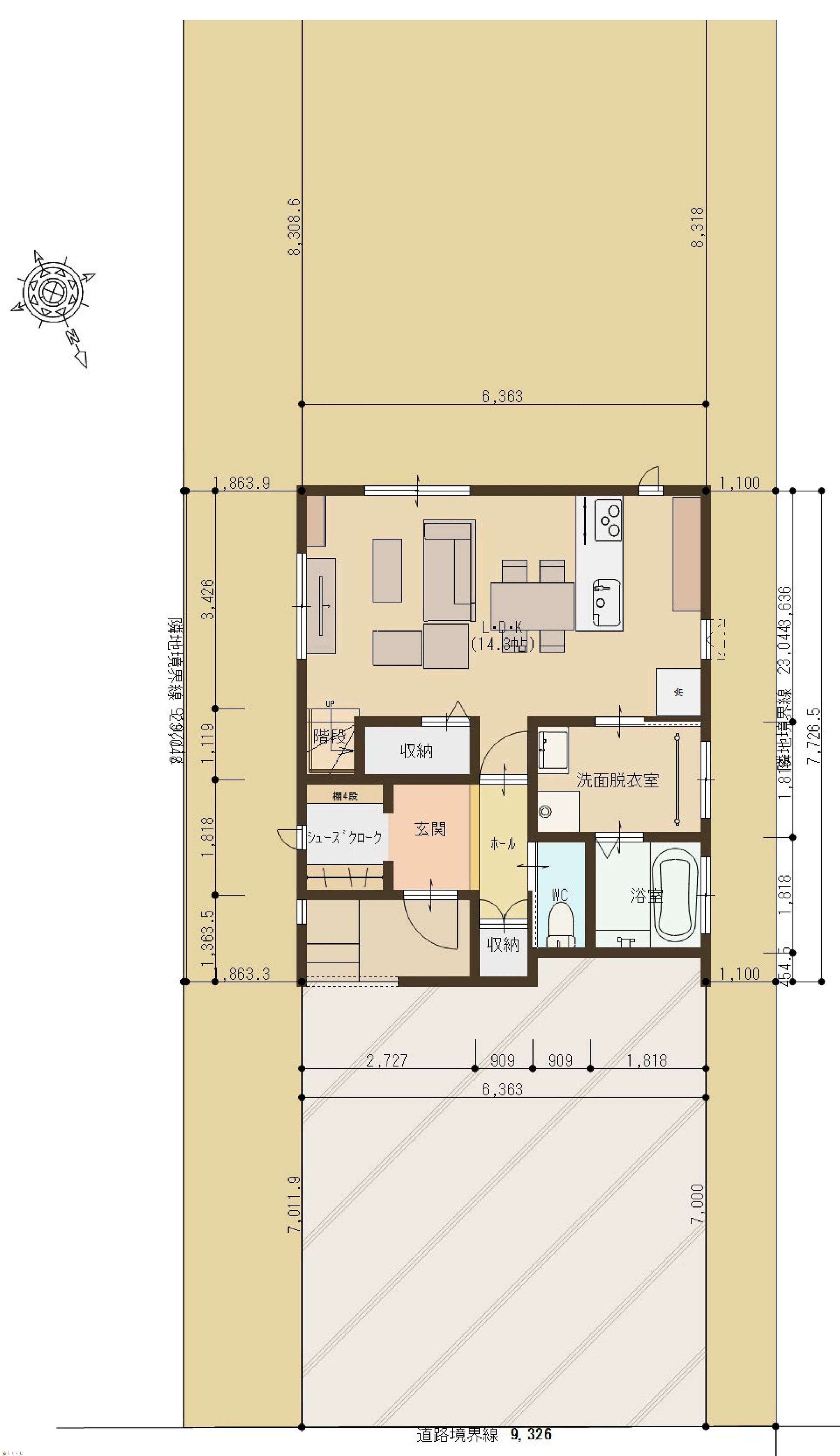
外観 間取り
物件画像
※画像クリックで拡大表示
外観
物件画像
※画像クリックで拡大表示
地型付間取り図
詳細画像
動画


物件概要

収納豊富な住まい♪料理をしながらLDKを見渡せる対面キッチン仕様です!造成された住宅地の65坪の敷地です。 荒浜小学校区・松浜中学校区エリアです。前面道路は7.4mと広く駐車も楽々です。 土地の形が良く3台並列駐車可能です。 玄関にシューズクロークが配置されています。 料理をしながらLDKを見渡せる対面キッチンとなっています。 洗面脱衣室に物干スペースを配置しました。 2階寝室にはウオークインクローゼットを設置しました。
物件コード 00007-200716
物件名 柏崎市松波2丁目 建売住宅 2号棟
交通 駅:越後線 東柏崎駅から徒歩27分、バス:松波1丁目から徒歩5分
物件所在地 新潟県柏崎市松波2丁目字上ノ島2854番2
物件種別 新築一戸建て
構造 木造 階建 地上2階建
建ぺい率/容積率 60%/200%
建物面積 計 92.12㎡ /27.86坪
土地面積 214.93㎡ /65.01坪
築年月 2025年9月(築7ヶ月)
入居(引き渡し)時期 随時入居(引き渡し)可
用途地域 第1種中高層住居専用地域 地目 宅地
都市計画 非線引き都市計画区域 学校区 荒浜小学校(1,689m)・松浜中学校(1,298m)
形状 - 道路 北側:市道約7.4m
私道 - その他の制限 -
  • 柏崎市松波2丁目 建売住宅 2号棟
    有限会社 一代工務店
  • この物件を問い合わせる/無料
  • TEL: 0258-34-2221

物件詳細情報

所在階/階数 - 号室 -
販売価格 22,800,000円 方位
間取り 3LDK (洋室:7、6、6)
LDK14.3
専有面積 - バルコニー面積 -
その他面積 - 駐車場 -
管理費 - 修繕積立金 -
現況 指定なし
仲介手数料 なし
利用制限 -
設備 整形地、前面道路6m以上、日当り良好、閑静な住宅街、スーパー近く、BELS/省エネ基準適合認定建物、フラット35S適合、全室フローリング、駐車場2台以上、駐車場3台以上、庭あり、TVインターホン、複層ガラス、ディンプルキー、システムキッチン、IHクッキングヒーター、3口コンロ、追いだき機能付き、バス1坪以上、温水洗浄便座、シャワー付き洗面台、エアコン、24時間換気システム、省エネ給湯、高気密高断熱住宅、都市ガス、上水道、下水道、電気、ウォークインクローゼット、全居室収納あり、床下収納、シューズインクローゼット、照明器具付き、即引き渡し可能、バリアフリー
取引態様 売主
備考 ※物件掲載内容と現況に相違がある場合は現況を優先と致します。
詳細はお気軽にお問い合わせください。
担当:藤崎
携帯:090-2763-5443
取り扱い会社

有限会社 一代工務店

新潟県長岡市信濃2-5-36

情報登録日 2026/04/04 次回更新予定日 2026/05/13
取引条件有効期限 2026/06/01
  • 柏崎市松波2丁目 建売住宅 2号棟
    有限会社 一代工務店
  • この物件を問い合わせる/無料
  • TEL: 0258-34-2221

この物件の地図・周辺情報・行政情報

この物件の周辺情報・行政情報を詳しく見る
【周辺情報】
物件の近くにあるコンビニや銀行・学校など、アイコン付のマップで詳しく表示できます!
【行政情報】
水道料や下水道料・ガス料金など、暮らしに関係のある情報を表示しています。
松波町簡易郵便局(郵便局)まで680m

※カメラのアイコンがある場合は、マウスをポイントするとその施設の画像がご覧いただけます。


担当取扱い店舗情報

取扱い店舗画像
有限会社 一代工務店
TEL: 0258-34-2221
所在地: 新潟県長岡市信濃2-5-36
交通: 長岡駅
営業時間: 9:00~18:00/定休日:
免許番号: 新潟県知事(12)2196号 この会社の情報を詳しく見る
所属団体名: 新潟県宅地建物取引業協会 長岡支部
取引態様: 売主
ホームページ: http://www.ichidai-k.co.jp/