| 収納豊富な住まい♪料理をしながらLDKを見渡せる対面キッチン仕様です!造成された住宅地の65坪の敷地です。 荒浜小学校区・松浜中学校区エリアです。前面道路は7.4mと広く駐車も楽々です。 土地の形が良く3台並列駐車可能です。 玄関にシューズクロークが配置されています。 料理をしながらLDKを見渡せる対面キッチンとなっています。 洗面脱衣室に物干スペースを配置しました。 2階寝室にはウオークインクローゼットを設置しました。 | |||
| 物件コード | 00007-200716 | ||
|---|---|---|---|
| 物件名 | 柏崎市松波2丁目 建売住宅 2号棟 | ||
| 交通 | 駅:越後線 東柏崎駅から徒歩27分、バス:松波1丁目から徒歩5分 | ||
| 物件所在地 | 新潟県柏崎市松波2丁目字上ノ島2854番2 | ||
| 物件種別 | 新築一戸建て | ||
| 構造 | 木造 | 階建 | 地上2階建 |
| 建ぺい率/容積率 | 60%/200% | ||
| 建物面積 | 計 92.12㎡ /27.86坪 | ||
| 土地面積 | 214.93㎡ /65.01坪 | ||
| 築年月 | 2025年9月(築7ヶ月) | ||
| 入居時期 | 随時入居(引き渡し)可 | ||
| 用途地域 | 第1種中高層住居専用地域 | 地目 | 宅地 |
| 都市計画 | 非線引き都市計画区域 | 学校区 | 荒浜小学校(1,689m)・松浜中学校(1,298m) |
| 形状 | - | 道路 | 北側:市道約7.4m |
| 私道 | - | ||
| 所在階/階数 | - | 号室 | - |
|---|---|---|---|
| 販売価格 | 22,800,000円 | 方位 | 北 |
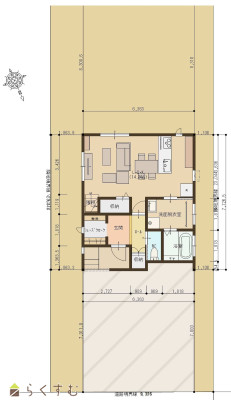
| 間取り |
3LDK (洋室:7、6、6) LDK14.3 |
||
| 専有面積 | - | バルコニー面積 | - |
| その他面積 | - | 駐車場 | - |
| 管理費 | - | 修繕積立金 | - |
| 現況 | 指定なし | ||
| 仲介手数料 | なし | ||
| 利用制限 | - | ||
| 設備 | 整形地、前面道路6m以上、日当り良好、閑静な住宅街、スーパー近く、BELS/省エネ基準適合認定建物、フラット35S適合、全室フローリング、駐車場2台以上、駐車場3台以上、庭あり、TVインターホン、複層ガラス、ディンプルキー、システムキッチン、IHクッキングヒーター、3口コンロ、追いだき機能付き、バス1坪以上、温水洗浄便座、シャワー付き洗面台、エアコン、24時間換気システム、省エネ給湯、高気密高断熱住宅、都市ガス、上水道、下水道、電気、ウォークインクローゼット、全居室収納あり、床下収納、シューズインクローゼット、照明器具付き、即引き渡し可能、バリアフリー | ||
| 取引態様 | 売主 | ||
| 備考 | ※物件掲載内容と現況に相違がある場合は現況を優先と致します。 詳細はお気軽にお問い合わせください。 担当:藤崎 携帯:090-2763-5443 |
||
| 情報登録日 | 2026/04/04 | 次回更新予定日 | 2026/05/13 |
| 取引条件有効期限 | 2026/06/01 | ||
|
|
|
|
|
| TEL: | 0258-34-2221 |
|---|---|
| 所在地: | 新潟県長岡市信濃2-5-36 |
| 交通: | 長岡駅 |
| 営業時間: | 9:00~18:00/定休日: |
| 免許番号: | 新潟県知事(12)2196号 |
| 所属団体名: | 新潟県宅地建物取引業協会 長岡支部 |
| 取引態様: | 売主 |