柏崎駅から徒歩3分、戸建て!
| 物件名
所在地 |
面積
間取り 所在階 |
築年数
方位 |
賃料
管理費等 共益費 |
敷金
保証金 礼金 |
種別
構造 |
|---|---|---|---|---|---|
| 駅前1丁目貸家 1号室 新潟県柏崎市駅前1丁目5-7 | 166.26㎡ (50.29坪) 4LDK - | 54年 - | 6.8万円 なし なし | なし なし なし | アパート・マンション・一戸建て 木造 |
| 外観 | 間取り |
|---|---|
|
※画像クリックで拡大表示 外観
|
![]() ※画像クリックで拡大表示 間取り
|
| 詳細画像 | |
|
|
|
| 柏崎駅から徒歩3分、戸建て! | |||
| 物件コード | 00205-100245 | ||
|---|---|---|---|
| 物件名 | 駅前1丁目貸家 | ||
| 交通 | 駅:信越線 柏崎駅から徒歩4分、バス:駅前2丁目から徒歩2分 | ||
| 所在地 | 新潟県柏崎市駅前1丁目5-7 | ||
| 物件種別 | アパート・マンション・一戸建て | ||
| 総戸数 | 1戸 | ||
| 構造 | 木造 | 階建 | 地上2階建 |
| 所在階/階数 | - | 号室 | 1号室 |
| 面積 | 166.26㎡ /50.29坪 | 方位 | - |
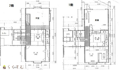
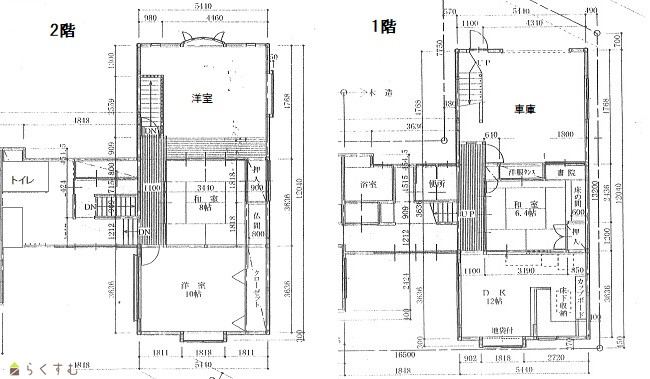
| 間取り | 4LDK (和室:6.4畳、8畳) (洋室:10、12) LDK11 |
||
| 賃料 | 6.8万円/月
|
管理費 | - |
| 礼金 | - | 敷金 | - |
| ほか初期費用 | - | その他諸費用 | - |
| 更新料 | - | 火災(家財)保険 |
16,000円
|
| 共益費 | - | 町内費 | - |
| 駐車場 | - | バイク料金 | - |
| 鍵交換費 | - | 清掃料 |
68,000円
|
| 更新事務手数料 | - | ||
| 保証区分 |
保証会社のみ |
||
| 保証会社 |
区分:加入要
保証会社名:日本セーフティ - |
||
| 家賃保証金 |
34,000円
|
||
| 連帯保証人 |
区分:不要 - |
||
| 仲介手数料 |
74,800円
|
||
| 築年月 | 1972年4月(築54年) | ||
| 利用制限 | 法人:可、単身者:可、二人入居:可、子供:可 | ||
| 学校区 | 柏崎小学校(726m)・第一中学校(1,014m) | ||
| 設備 | バス停近く、最寄り駅近く、上階なし、LDK12畳以上、駐車2台可、システムキッチン、対面キッチン、3口コンロ、バストイレ別、追いだき機能付き、トイレ2か所以上、温水洗浄便座、暖房便座、洗面所独立、エアコン、都市ガス、公営水道、下水、洗濯機置場 室内、脱衣所、クロゼット、各居室照明、インターネット接続可、リノベーション物件、即入居可、保証会社利用可能、敷金・礼金不要、新婚・カップル向け、保証会社要加入、お勧め物件 | ||
| 入居時期 | 即入居可 | ||
| 取引態様 | 仲介 | ||
| 備考 | 保証更新料:10,000円/毎年、駐車場:車庫内1台、2台目車庫の前(軽自動車) | ||
| 手数料負担割合/配分割合 | 貸主:-% 借主:-% / 元付:-% 客付:-% | ||
| 取り扱い会社 |
有限会社イッケン 新潟県柏崎市錦町8-29 |
||
| 情報登録日 | 2026/04/10 | 次回更新予定日 | 2026/04/25 |
|
デイリーヤマザキ 柏崎駅前1丁目店(コンビニ)まで330m アイン薬局 柏崎駅前店(ドラッグストア)まで130m (医)公仁会 柏崎中央病院(病院)まで280m |
第四北越銀行 柏崎支店(銀行)まで200m 柏崎郵便局(郵便局)まで40m |
※カメラのアイコンがある場合は、マウスをポイントするとその施設の画像がご覧いただけます。
| TEL: | 0257-22-1422 | |
|---|---|---|
| 所在地: | 新潟県柏崎市錦町8-29 | |
| 交通: | 駅前公園、向かい♪ | |
| 営業時間: | 9:00~17:30 土曜日10:00~15:00/定休日:日曜・祝日 | |
| 免許番号: | 新潟県知事(8)第3675号 |
|
| 所属団体名: | 公社 新潟県宅地建物取引業協会 柏崎支部 | |
| 取引態様: | 仲介 | |
| ホームページ: | https://www.ikken.co.jp/ | |