らくすむ
http://www.rakusumu.com
柏崎駅から徒歩3分、戸建て!
柏崎駅から徒歩3分、戸建て!
物件コード 00205-100245
物件名 駅前1丁目貸家
交通 駅:信越線 柏崎駅から徒歩4分、バス:駅前2丁目から徒歩2分
所在地 新潟県柏崎市駅前1丁目5-7
物件種別 アパート・マンション・一戸建て
総戸数 1戸
構造 木造 階建 地上2階建
所在階/階数 - 号室 1号室
面積 166.26㎡ (50.29坪) 方位 -
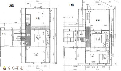
間取り 4LDK (和室:6.4畳、8畳) (洋室:10、12)
LDK11
賃料 6.8万円/月
管理費 -
礼金 - 敷金 -
ほか初期費用 - その他諸費用 -
更新料 - 火災(家財)保険 16,000円
共益費 - 町内費 -
駐車場 - バイク料金 -
鍵交換費 - 清掃料 68,000円
更新事務手数料 -
保証区分 保証会社のみ
保証会社 区分:加入要
保証会社名:日本セーフティ
-
家賃保証金 34,000円
連帯保証人 区分:不要
-
仲介手数料 74,800円
築年月 1972年4月(築54年)
利用制限 法人:可、単身者:可、二人入居:可、子供:可
学校区 柏崎小学校(726m)・第一中学校(1,014m)
設備 バス停近く、最寄り駅近く、上階なし、LDK12畳以上、駐車2台可、システムキッチン、対面キッチン、3口コンロ、バストイレ別、追いだき機能付き、トイレ2か所以上、温水洗浄便座、暖房便座、洗面所独立、エアコン、都市ガス、公営水道、下水、洗濯機置場 室内、脱衣所、クロゼット、各居室照明、インターネット接続可、リノベーション物件、即入居可、保証会社利用可能、敷金・礼金不要、新婚・カップル向け、保証会社要加入、お勧め物件
入居時期 即入居可
取引態様 仲介
備考 保証更新料:10,000円/毎年、駐車場:車庫内1台、2台目車庫の前(軽自動車)
手数料負担割合/配分割合 貸主:-%   借主:-% / 元付:-%   客付:-%  
情報登録日 2026/04/10 次回更新予定日 2026/04/25
物件画像 物件画像
物件画像 物件画像
担当取扱い店舗情報
有限会社イッケン
TEL: 0257-22-1422
所在地: 新潟県柏崎市錦町8-29
交通: 駅前公園、向かい♪
営業時間: 9:00~17:30 土曜日10:00~15:00/定休日:日曜・祝日
免許番号: 新潟県知事(8)第3675号
所属団体名: 公社 新潟県宅地建物取引業協会 柏崎支部
取引態様: 仲介

この物件の地図