物件掲載企業数:301|賃貸物件:3,174件|売買物件:3,245件|今週の登録物件:101
閲覧中のブラウザ(インターネットエクスプローラー)は非推奨ブラウザです。
物件が正しく表示されなかったり、正しく検索されない場合があります。最新のブラウザ(Google Chrome・Edgeなど)にてご利用お願いいたします。
  

新潟県長岡市城内町2丁目6-1 事務所 44.715万円の物件情報

長岡駅の目の前にあり、1階にコンビニが有ります。

物件名
所在地
面積
間取り
所在階
築年数
方位
賃料
管理費等
共益費
敷金
保証金
礼金
種別
構造
高野不動産駅前ビル
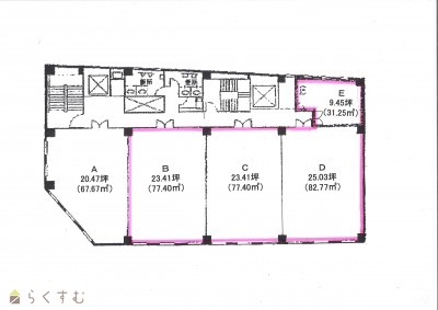
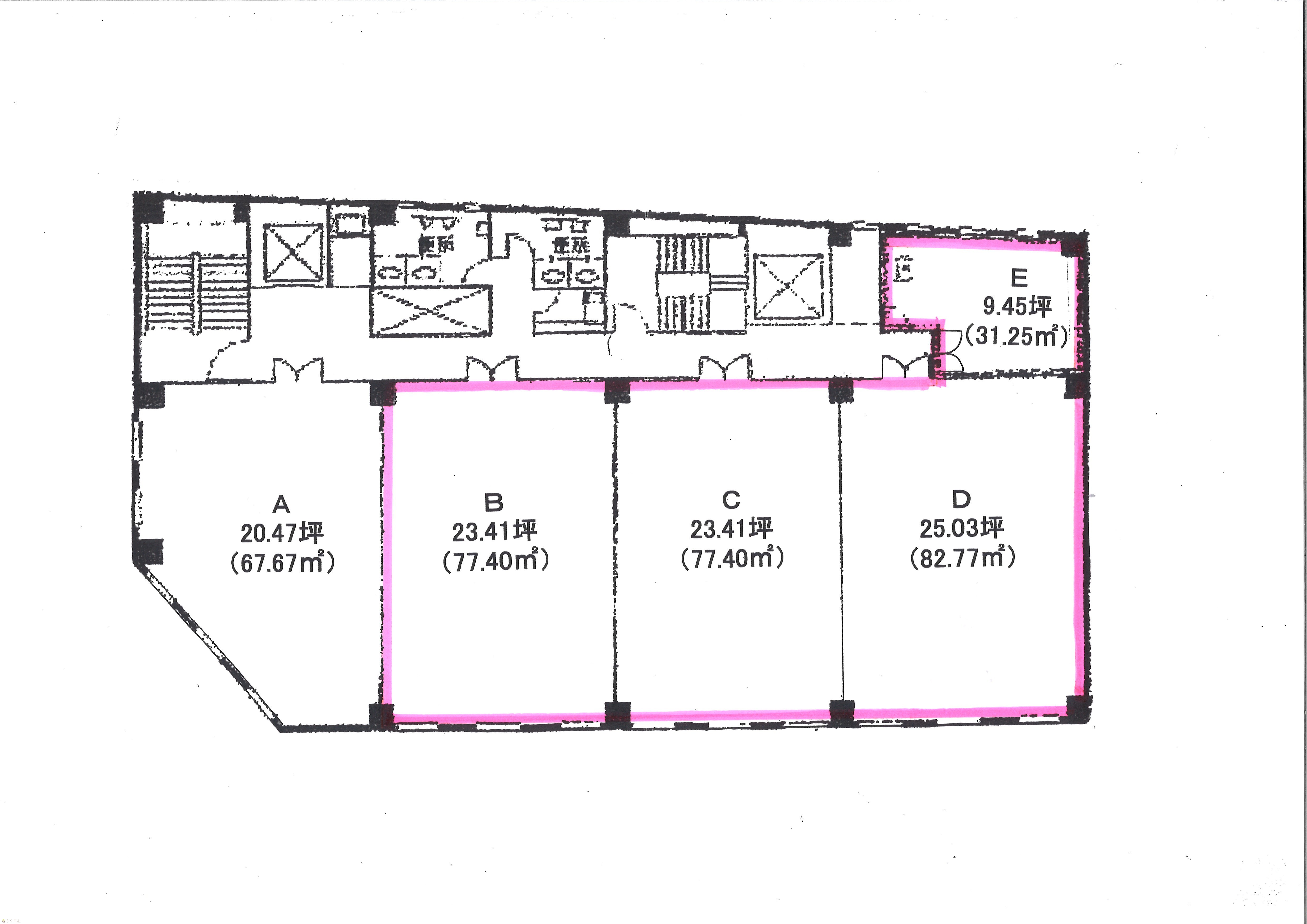
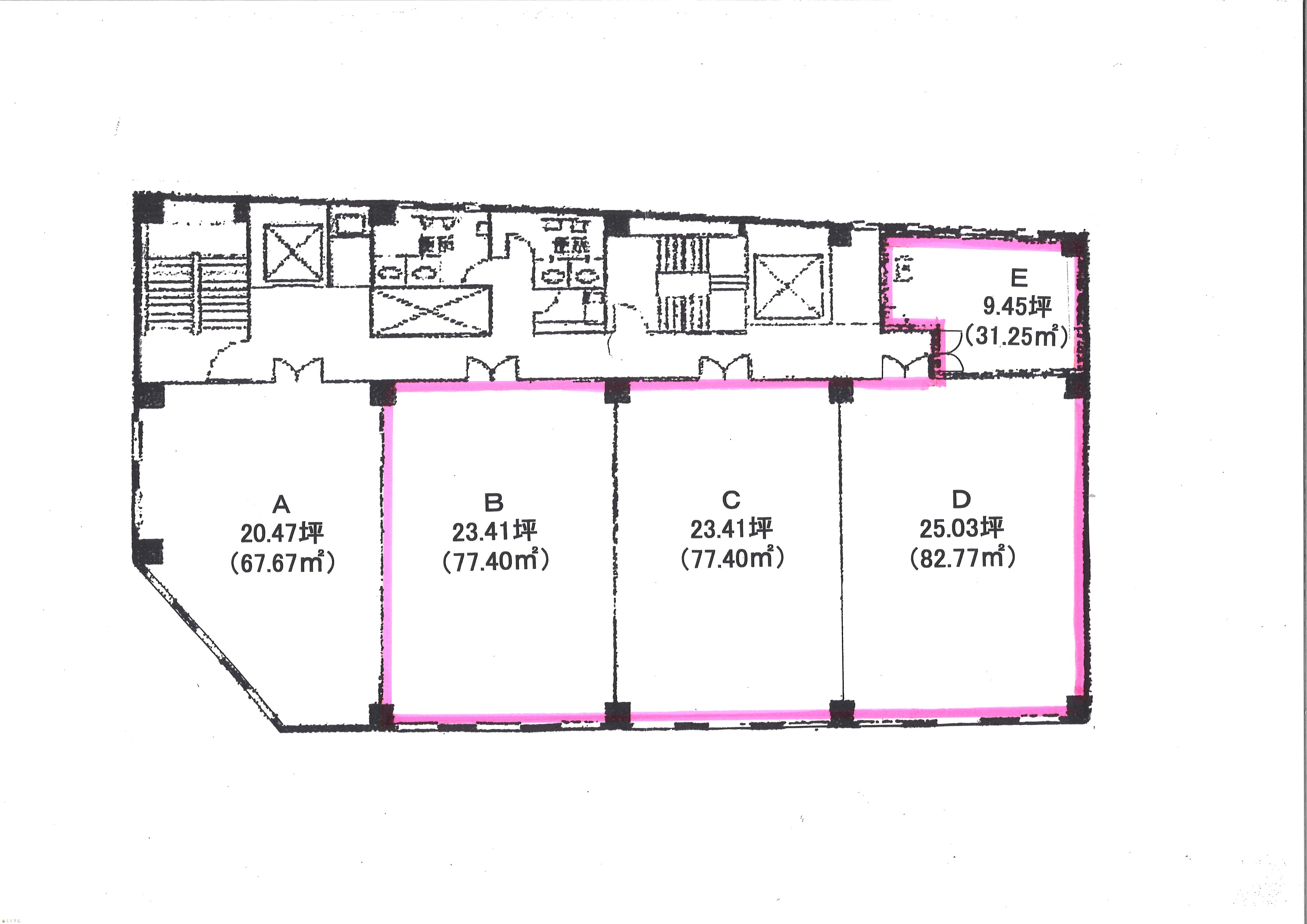
BCDE号室
新潟県長岡市城内町2丁目6-1
268.82㎡
(81.31坪)
-
5階
54年
-
44.715万円
なし
月額:322,122円
6ヶ月
なし
1ヶ月
事務所
鉄骨鉄筋コン
  • 高野不動産駅前ビル
    株式会社 高野不動産販売
  • この物件を問い合わせる/無料
  • TEL: 0258-34-7111

物件画像

外観 間取り
物件画像
※画像クリックで拡大表示
物件画像
※画像クリックで拡大表示
B・C・D・E号室
詳細画像


物件概要

物件コード 00041-100339
物件名 高野不動産駅前ビル
交通 駅:上越新幹線 長岡駅から徒歩2分
所在地 新潟県長岡市城内町2丁目6-1
物件種別 事務所
総戸数 25戸
構造 鉄骨鉄筋コン 階建 地上6階地下1階建
所在階/階数 5階/6階 号室 BCDE号室
面積 268.82㎡ /81.31坪 方位 -
間取り -
賃料 44.715万円/月
管理費 -
礼金 1ヶ月
敷金 6ヶ月
ほか初期費用 保証会社加入金:日本セフティー その他諸費用 -
更新料 - 火災(家財)保険 -
共益費 月額:322,122円 町内費 -
駐車場 1台月額25,300円 バイク料金 -
鍵交換費 - 清掃料 -
更新事務手数料 -
保証区分 -
保証会社 区分:利用可
日本セフティー
連帯保証人 区分:指定なし
-
仲介手数料 447,150円
築年月 1972年3月(築54年)
利用制限 ペット:不可、楽器:不可、事務所利用:可
学校区 阪之上小学校・東中学校
設備 2階以上、エアコン、男女トイレ別、エレベーター、給湯、駐車場あり
入居時期 相談
取引態様 仲介
備考 B.C、D,E号室 各室の賃貸も可能です。
B号室:23.41坪・C号室:23.41坪・D号室:25.03坪・E号室:9.45坪
手数料負担割合/配分割合 貸主:-%   借主:-% / 元付:-%   客付:-%  
取り扱い会社

株式会社 高野不動産販売

新潟県長岡市柏町1丁目4-33

情報登録日 2022/02/09 次回更新予定日 2026/05/20
  • 高野不動産駅前ビル
    株式会社 高野不動産販売
  • この物件を問い合わせる/無料
  • TEL: 0258-34-7111

この物件の地図・周辺情報・行政情報

この物件の周辺情報・行政情報を詳しく見る
【周辺情報】
物件の近くにあるコンビニや銀行・学校など、アイコン付のマップで詳しく表示できます!
【行政情報】
水道料や下水道料・ガス料金など、暮らしに関係のある情報を表示しています。
ローソン 長岡駅大手口店(コンビニ)まで0m
吉田病院(病院)まで760m
富山第一銀行 長岡支店(銀行)まで110m
大光銀行 本店営業部(銀行)まで310m
第四銀行 長岡営業部(銀行)まで410m
北越銀行 本店(銀行)まで490m
長岡信用金庫 営業推進部(銀行)まで660m
長岡郵便局(郵便局)まで410m

※カメラのアイコンがある場合は、マウスをポイントするとその施設の画像がご覧いただけます。


担当取扱い店舗情報

取扱い店舗画像
株式会社 高野不動産販売
TEL: 0258-33-7711
所在地: 新潟県長岡市柏町1丁目4-33
交通: 長岡駅
営業時間: 9:00~17:30/定休日:土曜日・日曜日・祝日・お盆・年末年始
免許番号: 新潟県知事(1)第5568号 この会社の情報を詳しく見る
所属団体名: (公社)新潟県宅地建物取引業協会,(公社)首都圏不動産公正取引協議会,(公財)日本賃貸住宅管理協会
取引態様: 仲介
ホームページ: https://www.tknf.co.jp