| 物件コード | 00041-100339 | ||
|---|---|---|---|
| 物件名 | 高野不動産駅前ビル | ||
| 交通 | 駅:上越新幹線 長岡駅から徒歩2分 | ||
| 所在地 | 新潟県長岡市城内町2丁目6-1 | ||
| 物件種別 | 事務所 | ||
| 総戸数 | 25戸 | ||
| 構造 | 鉄骨鉄筋コン | 階建 | 地上6階地下1階建 |
| 所在階/階数 | 5階/6階 | 号室 | BCDE号室 |
| 面積 | 268.82㎡ (81.31坪) | 方位 | - |
| 間取り |
|
||
| 賃料 | 44.715万円/月
|
管理費 | - |
| 礼金 | 1ヶ月
|
敷金 | 6ヶ月
|
| ほか初期費用 | 保証会社加入金:日本セフティー | その他諸費用 | - |
| 更新料 | - | 火災(家財)保険 | - |
| 共益費 | 月額:322,122円 | 町内費 | - |
| 駐車場 | 1台月額25,300円 | バイク料金 | - |
| 鍵交換費 | - | 清掃料 | - |
| 更新事務手数料 | - | ||
| 保証区分 |
- |
||
| 保証会社 |
区分:利用可 日本セフティー |
||
| 連帯保証人 |
区分:指定なし - |
||
| 仲介手数料 |
447,150円
|
||
| 築年月 | 1972年3月(築54年) | ||
| 利用制限 | ペット:不可、楽器:不可、事務所利用:可 | ||
| 学校区 | 阪之上小学校・東中学校 | ||
| 設備 | 2階以上、エアコン、男女トイレ別、エレベーター、給湯、駐車場あり | ||
| 入居時期 | 相談 | ||
| 取引態様 | 仲介 | ||
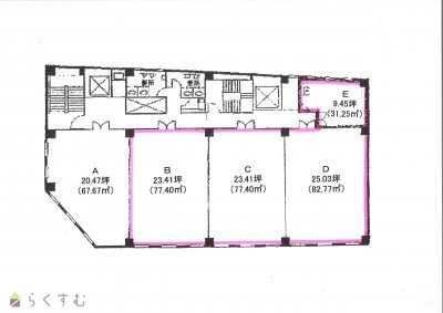
| 備考 | B.C、D,E号室 各室の賃貸も可能です。 B号室:23.41坪・C号室:23.41坪・D号室:25.03坪・E号室:9.45坪 |
||
| 手数料負担割合/配分割合 | 貸主:-% 借主:-% / 元付:-% 客付:-% | ||
| 情報登録日 | 2022/02/09 | 次回更新予定日 | 2026/05/20 |
|
|
|
|
|
|
| TEL: | 0258-33-7711 |
|---|---|
| 所在地: | 新潟県長岡市柏町1丁目4-33 |
| 交通: | 長岡駅 |
| 営業時間: | 9:00~17:30/定休日:土曜日・日曜日・祝日・お盆・年末年始 |
| 免許番号: | 新潟県知事(1)第5568号 |
| 所属団体名: | (公社)新潟県宅地建物取引業協会,(公社)首都圏不動産公正取引協議会,(公財)日本賃貸住宅管理協会 |
| 取引態様: | 仲介 |