1
物件掲載企業数:
297
社
|賃貸物件:
3,620
件|売買物件:
3,315
件|今週の登録物件:
268
件
閲覧中のブラウザ(インターネットエクスプローラー)は非推奨ブラウザです。
物件が正しく表示されなかったり、正しく検索されない場合があります。最新のブラウザ(Google Chrome・Edgeなど)にてご利用お願いいたします。
Google Chrome
Microsoft Edge
アパート・マンション・一戸建て
駐車場
貸土地
店舗
事務所
倉庫・工場
新築分譲マンション
中古マンション
新築一戸建て
中古一戸建て
売土地・分譲地
その他(投資物件など)
マンション
一戸建て
土地
ホーム
>
検索方法選択
>
エリア選択
> 物件一覧
全エリア
の
貸事務所
一覧
161件
該当しました。
<前のページ
1
2
3
4
5
6
7
8
9
次のページ>
表示切替:
一覧表示
/
間取り表示
/
地図表示
並び替え:
家賃が安い順
家賃が高い順
築年数が新しい順
新着順
画像
物件名
所在地
取扱店
面積
間取り
所在階
築年数
方位
賃料
管理費等
共益費
敷金
保証金
礼金
種別
構造
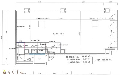
新光町丸渡貸事務所1階
新潟県上越市新光町2丁目10-1
三慶商事株式会社
79.5㎡
(24.04坪)
-
1階
30年
-
13
万円
なし
なし
13万円
なし
なし
事務所
鉄骨
カサハラビル
203号室
新潟県三条市旭町2丁目1269番1、1268番1
株式会社 ユタカ不動産
99.17㎡
(29.99坪)
-
2階
36年
-
13.2
万円
なし
月額28,600円
24万円
なし
なし
事務所
鉄骨
石沢貸事務所 A
新潟県上越市石沢1409-3
ピタットハウス上越店 日建不動産
77.39㎡
(23.41坪)
-
29年
-
13.2
万円
なし
なし
1ヶ月
なし
なし
事務所
鉄骨
ドルミー駅前ビル B棟
4F号室
新潟県長岡市大手通1丁目4-3
髙頭不動産 株式会社
71.9㎡
(21.74坪)
-
4階
47年
-
13.2
万円
なし
なし
36万円
なし
1ヶ月
事務所
鉄骨
丸山ビル
501号室
新潟県長岡市城内町3丁目甲893-36
株式会社 長岡土地
47.96㎡
(14.5坪)
-
5階
42年
-
13.2
万円
13,200円/月
なし
3ヶ月
なし
なし
事務所
鉄骨
丸山ビル
601号室
新潟県長岡市城内町3丁目甲893-36
株式会社 長岡土地
47.96㎡
(14.5坪)
-
6階
42年
-
13.2
万円
13,200円/月
なし
3ヶ月
なし
なし
事務所
鉄骨
城岡事務所
新潟県長岡市城岡3丁目766-9
ふどうさんの相談所 (ライフデザイン合同会社 イオン長岡店)
34.78㎡
(10.52坪)
-
7年
-
13.2
万円
なし
なし
3ヶ月
なし
1ヶ月
事務所
木造
港町 高助ビル 1階北側
新潟県上越市港町1-8-2
ピタットハウス上越店 日建不動産
72.73㎡
(22坪)
-
1階
57年
-
13.31
万円
なし
あり
3ヶ月
なし
なし
事務所
鉄骨
柏崎市城塚貸事務所
101号室
新潟県柏崎市城塚2-31
有限会社 不動産情報
176.64㎡
(53.43坪)
-
34年
-
14
万円
なし
なし
1ヶ月
なし
なし
事務所
木造
倉庫付き事務所(三交オフィス)
新潟県上越市新光町3丁目14-18
ピタットハウス上越店 日建不動産
78.43㎡
(23.72坪)
-
2階
51年
-
14.3
万円
6,000円/月
内訳:水道料3000円、下水道料3000円、CATV利用料2000円
2ヶ月
なし
なし
事務所
鉄骨
小野塚ビジネスセンター第2ビル、2F
新潟県長岡市三和3丁目123ー10
有限会社 原不動産
130.18㎡
(39.37坪)
-
2階
不詳
-
14.3
万円
なし
なし
2ヶ月
なし
なし
事務所
鉄骨
GrowINビル
B号室
新潟県長岡市東坂之上町1丁目2番地6
株式会社アールス
81.06㎡
(24.52坪)
-
3階
49年
-
14.3
万円
28,000円/月
なし
51.3万円
なし
なし
事務所
鉄骨鉄筋コン
信越ビル 2階
A号室
新潟県新潟市中央区東出来島3-16
株式会社 長陵エステート 長岡営業所
69.98㎡
(21.16坪)
-
2階
33年
-
14.8
万円
なし
16,500円
3ヶ月
なし
なし
事務所
鉄骨
平井ビル 4階事務所
新潟県長岡市今朝白1丁目10-7
佐藤リアルティ 株式会社
69.52㎡
(21.02坪)
-
4階
33年
-
14.85
万円
なし
あり
40.5万円
なし
なし
事務所
鉄骨
諏訪町3階建
新潟県柏崎市諏訪町1-20
リメイク株式会社
444.24㎡
(134.38坪)
-
55年
-
15
万円
なし
なし
6ヶ月
なし
なし
事務所
鉄骨
若草町 倉庫兼事務所
新潟県長岡市若草町2-3-15
有限会社 長井不動産
145.31㎡
(43.95坪)
-
27年
-
15
万円
なし
なし
3ヶ月
なし
なし
事務所
木造
常盤台 貸倉庫・事務所
新潟県柏崎市常盤台3番21号
株式会社裕建
496.22㎡
(150.1坪)
-
49年
-
15
万円
なし
なし
2ヶ月
なし
1ヶ月
事務所
鉄筋
割町新田事務所倉庫
新潟県刈羽郡刈羽村割町新田830-1
株式会社 ウェルネスホーム
316.71㎡
(95.8坪)
-
2階
42年
-
15
万円
なし
なし
3ヶ月
なし
なし
事務所
鉄骨
大同生命上越ビル6F
601号室
新潟県上越市西城町3丁目5番24号大同生命上越ビル601号
株式会社阿部建設 上越支店
90.91㎡
(27.5坪)
-
6階
41年
-
15.125
万円
なし
冷・暖房費は各フロア毎に負担
6ヶ月
なし
なし
事務所
鉄骨鉄筋コンクリート・鉄筋コンクリート造陸屋根
太刀川写真館貸事務所
新潟県長岡市上除町西52-2
青旺不動産 株式会社
85㎡
(25.71坪)
-
2階
38年
-
15.2
万円
なし
なし
2ヶ月
なし
なし
事務所
鉄骨
表示切替:
一覧表示
/
間取り表示
/
地図表示
並び替え:
家賃が安い順
家賃が高い順
築年数が新しい順
新着順
161件
該当しました。
<前のページ
1
2
3
4
5
6
7
8
9
次のページ>
0件
がマッチ
基本条件
物件種別
事務所
賃料
下限なし
0.5万円
1.0万円
1.5万円
2.0万円
2.5万円
3.0万円
3.5万円
4.0万円
4.5万円
5.0万円
5.5万円
6.0万円
6.5万円
7.0万円
7.5万円
8.0万円
8.5万円
9.0万円
9.5万円
10万円
11万円
12万円
13万円
14万円
15万円
16万円
17万円
18万円
19万円
20万円
30万円
40万円
50万円
100万円
~
上限なし
0.5万円
1.0万円
1.5万円
2.0万円
2.5万円
3.0万円
3.5万円
4.0万円
4.5万円
5.0万円
5.5万円
6.0万円
6.5万円
7.0万円
7.5万円
8.0万円
8.5万円
9.0万円
9.5万円
10万円
11万円
12万円
13万円
14万円
15万円
16万円
17万円
18万円
19万円
20万円
30万円
40万円
50万円
100万円
管理費を含む
礼金なし
敷金なし
間取り
ワンルーム
1K
1DK
1LDK
2K
2DK
2LDK
3K
3DK
3LDK
4K
4DK
4LDK以上
所在階
指定なし
1階
2階
3階
4階
5階以上
面積
下限なし
20㎡
30㎡
40㎡
50㎡
60㎡
70㎡
80㎡
90㎡
100㎡
~
上限なし
20㎡
30㎡
40㎡
50㎡
60㎡
70㎡
80㎡
90㎡
100㎡
築年数
指定なし
新築
3年以内
5年以内
10年以内
15年以内
20年以内
方位
北
北東
東
南東
南
南西
西
北西
おすすめ条件
女性限定
男性限定
学生可・相談
二人入居可・相談
シニア(60歳以上)入居可・相談
ペット可・相談
事務所利用可・相談
ルームシェア可・相談
情報公開日
指定なし
本日
3日以内
1週間以内
1ヶ月以内
0件
がマッチ
人気のあるこだわり条件
1階(44)
最上階(20)
2階以上(81)
融雪設備あり(42)
オートロック(5)
24時間セキュリティー(15)
防犯カメラ(2)
管理室あり(7)
光ファイバー(9)
エアコン(98)
男女トイレ別(46)
即引き渡し可(72)
フリーレント(詳細は備考欄)(1)
居抜き(9)
スケルトン(13)
エレベーター(39)
給湯(78)
OAフロア(6)
駐車場あり(109)
条件に合った物件数は、
0 件
です。
立地・環境
1階(44)
最上階(20)
2階以上(81)
駐車場・外部
融雪設備あり(42)
管理・防犯
オートロック(5)
24時間セキュリティー(15)
防犯カメラ(2)
管理室あり(7)
設備
光ファイバー(9)
エアコン(98)
男女トイレ別(46)
入居・費用・引渡・条件
即引き渡し可(72)
フリーレント(詳細は備考欄)(1)
居抜き(9)
スケルトン(13)
その他
エレベーター(39)
給湯(78)
OAフロア(6)
駐車場あり(109)
条件に合った物件数は、
0 件
です。
アパート・マンション・一戸建て
/
駐車場
/
貸土地
/
店舗
/
事務所
/
倉庫・工場
新築分譲マンション
/
中古マンション
/
新築一戸建て
/
中古一戸建て
/
売土地
/
投資物件・その他
マンション
/
一戸建て
/
土地
建てる・リフォーム
物件掲載企業一覧
掲載希望の企業様へ
新潟の不動産情報サイト
サービス利用規約
運営会社
サイトマップ
プライバシーポリシー
お問い合わせ
リンク
Copyright (C)
株式会社 コモンライフ・コーポレーション
. All Rights Reserved.
新潟・長岡・柏崎の賃貸・マンション・アパート・住宅の不動産物件情報サイト
不動産検索サイト「らくすむ」及び関連サイトに記載の不動産情報は、会員規約に則り、情報提供会社様の責任のもとに発信されております。
不動産の賃借、購入に関しては賃借者、購入者ご自身が情報を確認され、会社企業様から説明を受けられたうえで判断をお願いいたします。
不動産検索サイト「らくすむ」及び関連サイトに記載の不動産情報、写真、デザイン、コンテンツなどの
無断転載・転用・複製
など禁止します。