1
物件掲載企業数:
297
社
|賃貸物件:
3,624
件|売買物件:
3,288
件|今週の登録物件:
276
件
閲覧中のブラウザ(インターネットエクスプローラー)は非推奨ブラウザです。
物件が正しく表示されなかったり、正しく検索されない場合があります。最新のブラウザ(Google Chrome・Edgeなど)にてご利用お願いいたします。
Google Chrome
Microsoft Edge
アパート・マンション・一戸建て
駐車場
貸土地
店舗
事務所
倉庫・工場
新築分譲マンション
中古マンション
新築一戸建て
中古一戸建て
売土地・分譲地
その他(投資物件など)
マンション
一戸建て
土地
ホーム
>
検索方法選択
>
エリア選択
> 物件一覧
青葉台小学校区
の
新築一戸建て
一覧
16件
該当しました。
表示切替:
一覧表示
/
地図表示
並び替え:
指定なし
新着順
価格が安い順
価格が高い順
画像
物件名/所在地/取扱店
詳細
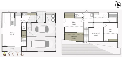
【長岡市陽光台】新価格2580万円! ◆空間を有効活用できる3層のスキップフロアのある家♪ ◆南向きの片流れ屋根には太陽光パネルを搭載! ◆嬉しいエアコン3台&カップボード&カーテン付き♪ ◆2台分のインナーガレージを完備!
(新築住宅)長岡市陽光台
新潟県長岡市陽光台4丁目1379-130付近
新潟土地建物販売センター 株式会社
価格
:
25,800,000
円
土地面積
:205.22㎡ /62.07坪
建物面積
:115.09㎡ /34.81坪
間取り
:3LDK
築年月
:2024年4月
太陽光パネル搭載で電気代を節約できるオール電化住宅。インナーガレージ2台分を備え、1階+1.5階+2階の立体的な3層設計で、限られた空間を無駄なく活かした快適な住まいです。
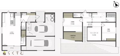
陽光台4丁目 未入居戸建
新潟県長岡市陽光台4丁目1379-167
有限会社 ブライトサクセス
価格
:
25,800,000
円
土地面積
:205.22㎡ /62.07坪
建物面積
:115.09㎡ /34.81坪
間取り
:2LDK
築年月
:2024年4月
【9/2 価格改定しました!】太陽光パネル搭載で電気代がお得に!インナーガレージ2台分、雪の日の乗り降りもストレスフリーで生活できます。自然落雪の屋根だから雪下ろしをしなくても安心!
陽光台 3層階のデザイン住宅
新潟県長岡市陽光台4丁目1379-167
ダイエープロビス株式会社
価格
:
25,800,000
円
土地面積
:205.22㎡ /62.07坪
建物面積
:115.09㎡ /34.81坪
間取り
:2LDK
築年月
:2024年4月
【期間限定公開!12/7迄】あえて“余白”を残すことで、暮らしにゆとりと豊かさを。シンプルに整えたナチュラルヴィンテージな住まい。
グリーンガーデン長岡丘陵公園モデルハウス
新潟県長岡市陽光台4丁目1379番165
橋本建設 株式会社
価格
:
27,900,000
円
土地面積
:205.25㎡ /62.08坪
建物面積
:96.88㎡ /29.3坪
間取り
:3LDK
築年月
:2024年3月
インナーガレージ2台分+自転車置きスペースあり
長岡市陽光台 3LDK
新潟県長岡市陽光台4-1379-167
ハウスドゥ 長岡中央店
価格
:
31,000,000
円
土地面積
:205.22㎡ /62.07坪
建物面積
:115.09㎡ /34.81坪
間取り
:3LDK
築年月
:2024年4月
☆内見でQUOカードプレゼント☆スキップフロア3層階のデザイン住宅 太陽光パネル搭載、月々の電気代をお得に。インナーガレージ住宅につき、雨でも安心。
長岡市陽光台4丁目 スキップフロア3層階のデザイン住宅
新潟県長岡市陽光台4丁目1379番167
株式会社 エヌ・アール・ケー総合企画
価格
:
31,000,000
円
土地面積
:205.22㎡ /62.07坪
建物面積
:115.09㎡ /34.81坪
間取り
:3LDK
築年月
:2024年4月
公開期間終了につき、価格改定しました。☆内見でQUOカードプレゼント☆広々敷地79.37坪、平屋住宅25.05坪。3LDK、駐車2台可。家具付き住宅
陽光台モデルハウス
新潟県長岡市陽光台4丁目
株式会社 エヌ・アール・ケー総合企画
価格
:
31,800,000
円
土地面積
:262.39㎡ /79.37坪
建物面積
:82.81㎡ /25.05坪
間取り
:3LDK
築年月
:2024年4月
【子育てグリーン住宅補助金対象】周辺より広い74坪区画割でゆったりとお過ごしいただけます♪<事前予約でQUOカード3,000円プレゼント>
≪ミサワホーム≫【補助金対象】 丘陵公園分譲E棟
新潟県長岡市陽光台4丁目1379番153
ミサワホーム北越 株式会社
価格
:
36,800,000
円
土地面積
:246.13㎡ /74.45坪
建物面積
:86.12㎡ /26.05坪
間取り
:3LDK
築年月
:2025年7月
\仲介手数料不要!ミサワホーム施工の嬉しい設備が充実した家/■人気のガス乾燥機やエアコンが設置済■全室南向き■駐車3台可能
(新築住宅)長岡市丘陵公園プラザE棟
新潟県長岡市陽光台4丁目1379付近
新潟土地建物販売センター 株式会社
価格
:
36,800,000
円
土地面積
:246.13㎡ /74.45坪
建物面積
:93.57㎡ /28.3坪
間取り
:2LDK
築年月
:2025年7月
☆内見でQUOカードプレゼント☆広々敷地95.25坪、2階建て住宅45.39坪。3LDK、インナーガレージ付き住宅
長岡市陽光台モデルハウス(家具家電付き)
新潟県長岡市陽光台4丁目1379番157
株式会社 エヌ・アール・ケー総合企画
価格
:
37,000,000
円
土地面積
:314.89㎡ /95.25坪
建物面積
:150.05㎡ /45.39坪
間取り
:3LDK
築年月
:2024年4月
【R7年10月価格改定!4,090万円→3,900万円】≪事前の見学予約でQUOカード3,000円分プレゼント!≫◎中と外をつなぐアウトドアリビングテラス ◎自分らくしく暮らせるオシャレなLDK ◎収納たっぷり ◎家具、かん太くん付き!
【価格改定】≪ミサワホーム≫ 丘陵公園分譲MJ棟
新潟県長岡市陽光台4丁目1379-161他
ミサワホーム北越 株式会社
価格
:
39,000,000
円
土地面積
:210.97㎡ /63.81坪
建物面積
:120.06㎡ /36.31坪
間取り
:3LDK
築年月
:2024年3月
\仲介手数料不要!ミサワホーム施工の高性能住宅/ ◆LDKには温水床暖房!足元からあったか ◆ファミリークローゼット・納戸でお部屋スッキリ ◆人気のガス乾燥機設置済
(新築住宅)長岡市丘陵公園MJプラザ
新潟県長岡市陽光台4丁目1379付近
新潟土地建物販売センター 株式会社
価格
:
39,000,000
円
土地面積
:210.97㎡ /63.81坪
建物面積
:120.06㎡ /36.31坪
間取り
:3LDK
築年月
:2024年3月
≪事前の見学予約でQUOカード3,000円分プレゼント!≫◎他区画より広めの74坪区画割り ◎高天井&ハイサッシで開放的な18帖LDK ◎木目天井と間接照明が柔らかな雰囲気を演出 ◎家事らくアイテム『かん太くん』も設置済み! ◎おしゃれなワイドカウンター洗面化粧台
≪ミサワホームの分譲住宅≫ 丘陵公園分譲D棟
新潟県長岡市陽光台4丁目
ミサワホーム北越 株式会社
価格
:
39,900,000
円
土地面積
:246.14㎡ /74.45坪
建物面積
:108.47㎡ /32.81坪
間取り
:4LDK
築年月
:2024年10月
☆内見でQUOカードプレゼント☆◎開いてつながり、楽しみをシェアする住まい。◎コミュニケーションの場になるアウトリビング「ウチニワコート」◎子供の学びを育む「ホームコモンズ設計」◎頑張らなくても無理なくすっきり片付く「適所収納」
丘陵公園MJ棟 新築住宅
新潟県長岡市陽光台4丁目1379番161他
株式会社 エヌ・アール・ケー総合企画
価格
:
40,900,000
円
土地面積
:210.97㎡ /63.81坪
建物面積
:120.06㎡ /36.31坪
間取り
:3LDK
築年月
:2023年12月
【10/1~大幅価格改定!!】4,800万円→4,300万円 ◆形態と機能がひとつになった、シンプルで美しい住まい
陽光台モデルハウス【ホリゾンタル】見学可
新潟県長岡市陽光台4丁目1379-118
株式会社 空間クリエイティブ
価格
:
43,000,000
円
土地面積
:205.97㎡ /62.3坪
建物面積
:118.7㎡ /35.9坪
間取り
:3LDK
築年月
:2021年10月
2台分のインナーガレージと2つの坪庭のある邸宅です。 広いバルコニーは贅沢なひとときを過ごせる特別な空間です。
【新築】丘陵公園モデルハウス
新潟県長岡市陽光台4丁目1379番地164
株式会社 島岡不動産企画
価格
:
45,000,000
円
土地面積
:205.22㎡ /62.07坪
建物面積
:107.64㎡ /32.56坪
間取り
:2LDK
築年月
:2024年12月
表示切替:
一覧表示
/
地図表示
並び替え:
指定なし
新着順
価格が安い順
価格が高い順
価格は物件の代金総額を表示しており、消費税が課税される場合は税込み価格です。
建築条件付き土地価格には、建物価格は含まれません。
物件情報の詳細については取り扱い店までお問い合わせください。
完成予想図はいずれも外構・植栽・外観等実際のものと異なることが多少あります。
CG合成の画像の場合実際と異なることが多少あります。
完成後1年以上経過したものが未入居として記載される場合があります。ご了承ください。
販売予定物件は販売開始するまで契約または予約の申し込みはできません。
ご購入の場合物件詳細や契約内容についてご自身で十分ご確認いただきますようよろしく御願いします。
建築条件付きとは…その土地に建築する建物の建築請負契約が、一定期間内に成立することを条件として売買される土地のことをいいます。請負契約成立に向けて設計プランを協議するため、土地購入者が希望する建物にするために一定の期間(概ね3ヶ月)交渉期間としその期間内に希望するプランが実現できたかどうかによって土地の購入の判断をします。納得のいくプランができず請負契約が未成立になった場合、土地契約にかかった代金(手付金など)は、すべて返却されます。
16件
該当しました。
0件
がマッチ
基本条件
物件種別
新築一戸建て
価格
下限なし
100万円
250万円
500万円
1000万円
1500万円
2000万円
2500万円
3000万円
3500万円
4000万円
4500万円
5000万円
5500万円
6000万円
6500万円
7000万円
7500万円
8000万円
8500万円
9000万円
9500万円
1億円
~
上限なし
100万円
250万円
500万円
1000万円
1500万円
2000万円
2500万円
3000万円
3500万円
4000万円
4500万円
5000万円
5500万円
6000万円
6500万円
7000万円
7500万円
8000万円
8500万円
9000万円
9500万円
1億円
間取り
ワンルーム
1K
1DK
1LDK
2K
2DK
2LDK
3K
3DK
3LDK
4K
4DK
4LDK以上
専有面積
下限なし
20㎡
30㎡
40㎡
50㎡
60㎡
70㎡
80㎡
90㎡
100㎡
~
上限なし
20㎡
30㎡
40㎡
50㎡
60㎡
70㎡
80㎡
90㎡
100㎡
土地面積
下限なし
60㎡ (約18坪)
70㎡ (約21坪)
80㎡ (約24坪)
90㎡ (約27坪)
100㎡ (約30坪)
110㎡ (約33坪)
120㎡ (約36坪)
130㎡ (約39坪)
140㎡ (約42坪)
150㎡ (約45坪)
160㎡ (約48坪)
170㎡ (約51坪)
180㎡ (約54坪)
190㎡ (約57坪)
200㎡ (約60坪)
250㎡ (約75坪)
300㎡ (約90坪)
~
上限なし
60㎡ (約18坪)
70㎡ (約21坪)
80㎡ (約24坪)
90㎡ (約27坪)
100㎡ (約30坪)
110㎡ (約33坪)
120㎡ (約36坪)
130㎡ (約39坪)
140㎡ (約42坪)
150㎡ (約45坪)
160㎡ (約48坪)
170㎡ (約51坪)
180㎡ (約54坪)
190㎡ (約57坪)
200㎡ (約60坪)
250㎡ (約75坪)
300㎡ (約90坪)
建物面積
下限なし
60㎡ (約18坪)
70㎡ (約21坪)
80㎡ (約24坪)
90㎡ (約27坪)
100㎡ (約30坪)
110㎡ (約33坪)
120㎡ (約36坪)
130㎡ (約39坪)
140㎡ (約42坪)
150㎡ (約45坪)
160㎡ (約48坪)
170㎡ (約51坪)
180㎡ (約54坪)
190㎡ (約57坪)
200㎡ (約60坪)
250㎡ (約75坪)
300㎡ (約90坪)
~
上限なし
60㎡ (約18坪)
70㎡ (約21坪)
80㎡ (約24坪)
90㎡ (約27坪)
100㎡ (約30坪)
110㎡ (約33坪)
120㎡ (約36坪)
130㎡ (約39坪)
140㎡ (約42坪)
150㎡ (約45坪)
160㎡ (約48坪)
170㎡ (約51坪)
180㎡ (約54坪)
190㎡ (約57坪)
200㎡ (約60坪)
250㎡ (約75坪)
300㎡ (約90坪)
坪単価
下限なし
5万円
10万円
15万円
20万円
25万円
30万円
35万円
40万円
45万円
50万円
~
上限なし
5万円
10万円
15万円
20万円
25万円
30万円
35万円
40万円
45万円
50万円
築年数
指定なし
新築
3年以内
5年以内
10年以内
15年以内
20年以内
方位
北
北東
東
南東
南
南西
西
北西
おすすめ条件
ペット可・相談
楽器可・相談
情報公開日
指定なし
本日
3日以内
1週間以内
1ヶ月以内
0件
がマッチ
人気のあるこだわり条件
角地(1)
高台に立地(11)
整形地(15)
前面道路6m以上(16)
日当り良好(15)
閑静な住宅街(16)
長期優良住宅(4)
設計住宅性能評価付き(4)
耐震構造(7)
BELS/省エネ基準適合認定建物(5)
瑕疵担保保険付き(3)
建物確認・完了検査済証あり(8)
フラット35S適合(1)
LDK15畳以上(11)
全室フローリング(12)
天井高2.5m以上(4)
駐車場2台以上(11)
駐車場3台以上(8)
南向き(6)
庭あり(16)
TVインターホン(14)
複層ガラス(13)
ディンプルキー(8)
システムキッチン(13)
カウンターキッチン(11)
IHクッキングヒーター(13)
浄水器(5)
食器洗浄乾燥機(12)
3口コンロ(7)
追いだき機能付き(16)
浴室暖房乾燥機(2)
バス1坪以上(16)
温水洗浄便座(16)
シャワー付き洗面台(14)
エアコン(16)
床暖房(4)
24時間換気システム(12)
オール電化(5)
太陽光発電システム(5)
省エネ給湯(8)
高気密高断熱住宅(7)
ウッドデッキ・テラス(8)
ルーフバルコニー(1)
都市ガス(9)
上水道(16)
下水道(16)
電気(15)
ウォークインクローゼット(7)
全居室収納あり(9)
床下収納(5)
シューズインクローゼット(5)
シューズBOX(9)
BS端子(4)
LAN端子(5)
照明器具付き(9)
即引き渡し可能(12)
バリアフリー(5)
条件に合った物件数は、
0 件
です。
立地・環境
角地(1)
高台に立地(11)
整形地(15)
前面道路6m以上(16)
日当り良好(15)
閑静な住宅街(16)
構造・工法・仕様
長期優良住宅(4)
設計住宅性能評価付き(4)
耐震構造(7)
BELS/省エネ基準適合認定建物(5)
瑕疵担保保険付き(3)
建物確認・完了検査済証あり(8)
フラット35S適合(1)
面積・間取り
LDK15畳以上(11)
全室フローリング(12)
天井高2.5m以上(4)
駐車・駐輪
駐車場2台以上(11)
駐車場3台以上(8)
採光・向き
南向き(6)
ガーデン
庭あり(16)
管理・防犯
TVインターホン(14)
複層ガラス(13)
ディンプルキー(8)
キッチン
システムキッチン(13)
カウンターキッチン(11)
IHクッキングヒーター(13)
浄水器(5)
食器洗浄乾燥機(12)
3口コンロ(7)
浴室
追いだき機能付き(16)
浴室暖房乾燥機(2)
バス1坪以上(16)
トイレ
温水洗浄便座(16)
洗面所
シャワー付き洗面台(14)
冷暖房・空調
エアコン(16)
床暖房(4)
24時間換気システム(12)
光熱設備
オール電化(5)
太陽光発電システム(5)
省エネ給湯(8)
高気密高断熱住宅(7)
バルコニー・テラス
ウッドデッキ・テラス(8)
ルーフバルコニー(1)
室内仕様・設備
都市ガス(9)
上水道(16)
下水道(16)
電気(15)
収納
ウォークインクローゼット(7)
全居室収納あり(9)
床下収納(5)
シューズインクローゼット(5)
シューズBOX(9)
電気設備
BS端子(4)
LAN端子(5)
照明器具付き(9)
費用・入居・引渡・条件
即引き渡し可能(12)
その他
バリアフリー(5)
条件に合った物件数は、
0 件
です。
アパート・マンション・一戸建て
/
駐車場
/
貸土地
/
店舗
/
事務所
/
倉庫・工場
新築分譲マンション
/
中古マンション
/
新築一戸建て
/
中古一戸建て
/
売土地
/
投資物件・その他
マンション
/
一戸建て
/
土地
建てる・リフォーム
物件掲載企業一覧
掲載希望の企業様へ
新潟の不動産情報サイト
サービス利用規約
運営会社
サイトマップ
プライバシーポリシー
お問い合わせ
リンク
Copyright (C)
株式会社 コモンライフ・コーポレーション
. All Rights Reserved.
新潟・長岡・柏崎の賃貸・マンション・アパート・住宅の不動産物件情報サイト
不動産検索サイト「らくすむ」及び関連サイトに記載の不動産情報は、会員規約に則り、情報提供会社様の責任のもとに発信されております。
不動産の賃借、購入に関しては賃借者、購入者ご自身が情報を確認され、会社企業様から説明を受けられたうえで判断をお願いいたします。
不動産検索サイト「らくすむ」及び関連サイトに記載の不動産情報、写真、デザイン、コンテンツなどの
無断転載・転用・複製
など禁止します。