1
物件掲載企業数:
297
社
|賃貸物件:
3,624
件|売買物件:
3,288
件|今週の登録物件:
276
件
閲覧中のブラウザ(インターネットエクスプローラー)は非推奨ブラウザです。
物件が正しく表示されなかったり、正しく検索されない場合があります。最新のブラウザ(Google Chrome・Edgeなど)にてご利用お願いいたします。
Google Chrome
Microsoft Edge
アパート・マンション・一戸建て
駐車場
貸土地
店舗
事務所
倉庫・工場
新築分譲マンション
中古マンション
新築一戸建て
中古一戸建て
売土地・分譲地
その他(投資物件など)
マンション
一戸建て
土地
ホーム
>
検索方法選択
>
エリア選択
> 物件一覧
大島小学校区
の
新築一戸建て
一覧
10件
該当しました。
表示切替:
一覧表示
/
地図表示
並び替え:
指定なし
新着順
価格が安い順
価格が高い順
画像
物件名/所在地/取扱店
詳細
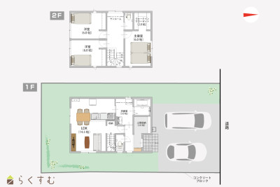
徒歩1分の土手で長岡花火を満喫!渋滞知らずで夏の夜空を楽しめます。アピタ・イオン・リバーサイド千秋が車で5分圏内、買い物や外出の利便性◎
大島新町1 新築戸建
新潟県長岡市大島新町1丁目
有限会社 ブライトサクセス
価格
:
24,900,000
円
土地面積
:165.28㎡ /49.99坪
建物面積
:87.77㎡ /26.55坪
間取り
:3LDK
築年月
:2025年3月
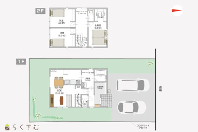
【10/2価格改定しました】 徒歩1分の土手から長岡花火が見えます!アピタやイオンまで車で5分圏内!買い物に便利な立地です!大島小学校区です。前面道路は消雪パイプがあり冬場も安心!
長岡市 大島新町1丁目新築分譲住宅
新潟県長岡市大島新町1丁目2046番1、2046番2
ダイエープロビス株式会社
価格
:
24,900,000
円
土地面積
:165.28㎡ /49.99坪
建物面積
:87.77㎡ /26.55坪
間取り
:3LDK
築年月
:2025年3月
\暮らしやすさを追求した住み心地の良い住宅/■徒歩1分の土手から長岡花火を楽しめます■大型商業施設まで車で5分圏内で利便性■保育園・小学校が徒歩10分圏内
(新築住宅)長岡市大島新町
新潟県長岡市大島新町1丁目甲1479付近
新潟土地建物販売センター 株式会社
価格
:
24,900,000
円
土地面積
:165.28㎡ /49.99坪
建物面積
:87.77㎡ /26.55坪
間取り
:3LDK
築年月
:2025年3月
クスリのアオキ徒歩3分!大島小徒歩9分!バス停徒歩4分!前面道路は消雪パイプがあり!
長岡市大島本町 A棟 分譲住宅
新潟県長岡市大島本町2丁目6番4
ダイエープロビス株式会社
価格
:
27,300,000
円
土地面積
:133.12㎡ /40.26坪
建物面積
:92.74㎡ /28.05坪
間取り
:3LDK
築年月
:2025年9月
通学・遊びに安心!こどもえん・小学校・公園が徒歩10分圏内の便利な立地。
大島本町 新築戸建
新潟県長岡市大島本町2丁目
有限会社 ブライトサクセス
価格
:
27,300,000
円
土地面積
:133.12㎡ /40.26坪
建物面積
:92.74㎡ /28.05坪
間取り
:3LDK
築年月
:2025年9月
【ファミリークロークや土間収納などの多彩な収納がある家】 ■カーテン・LDKエアコン付き ■幼稚園から高校まで通学に便利な立地 ■イオンやアピタがお車約6分圏内
(新築住宅)長岡市大島本町 A棟
新潟県長岡市大島本町2丁目6-4付近
新潟土地建物販売センター 株式会社
価格
:
27,300,000
円
土地面積
:133.12㎡ /40.26坪
建物面積
:92.74㎡ /28.05坪
間取り
:3LDK
築年月
:2025年9月
【大島小がすぐ目の前の立地に3LDK平屋住宅】■前面道路に消雪パイプ完備■駐車2台可■熱交換換気扇&二重断熱で快適な住まい■エアコン2台完備■2箇所に洗面台設置
( 新築住宅)長岡市大島新町 平屋住宅
新潟県長岡市大島新町3丁目甲1189-1付近
新潟土地建物販売センター 株式会社
価格
:
33,800,000
円
土地面積
:175.2㎡ /52.99坪
建物面積
:82.81㎡ /25.05坪
間取り
:3LDK
築年月
:2025年12月
キッチンぐるぐる回遊動線で家事楽間取り!1Fにランドリールーム付きでお洗濯がここで完結!3帖のウォークインクロークで家族みんなの収納バッチリ!
大島新町 新築デザイン住宅
新潟県長岡市大島新町1丁目2045番
ダイエープロビス株式会社
価格
:
34,500,000
円
土地面積
:165.43㎡ /50.04坪
建物面積
:91.08㎡ /27.55坪
間取り
:3LDK
築年月
:2025年10月
R7年10月完成!≪事前の見学予約でQUOカード3,000円分プレゼント!≫・学校や商業施設近くの高級住宅街 ・高天井&ハイサッシによる開放的なLDK ・ワンランク上のラグジュアリーな仕様設備 ・4人暮らしを想定した収納充実設計 ・広いお庭でガーデンライフも楽しめます!
≪ミサワホームの分譲住宅≫ 古正寺1丁目分譲A棟
新潟県長岡市古正寺1丁目3026番2
ミサワホーム北越 株式会社
価格
:
58,600,000
円
土地面積
:232.7㎡ /70.39坪
建物面積
:111.78㎡ /33.81坪
間取り
:3LDK
築年月
:2025年10月
【長岡市古正寺に佇む、ミサワホーム施工の高品質住宅】 ■仲介手数料不要 ■前面道路8m、消雪パイプ完備 ■駐車3台可能 ■ファミクロや納戸など豊富な収納あり ■教育・生活環境も良好
(新築住宅)長岡市古正寺プラザA棟
新潟県長岡市古正寺1丁目3027付近
新潟土地建物販売センター 株式会社
価格
:
58,600,000
円
土地面積
:232.7㎡ /70.39坪
建物面積
:111.78㎡ /33.81坪
間取り
:3LDK
築年月
:2025年10月
表示切替:
一覧表示
/
地図表示
並び替え:
指定なし
新着順
価格が安い順
価格が高い順
価格は物件の代金総額を表示しており、消費税が課税される場合は税込み価格です。
建築条件付き土地価格には、建物価格は含まれません。
物件情報の詳細については取り扱い店までお問い合わせください。
完成予想図はいずれも外構・植栽・外観等実際のものと異なることが多少あります。
CG合成の画像の場合実際と異なることが多少あります。
完成後1年以上経過したものが未入居として記載される場合があります。ご了承ください。
販売予定物件は販売開始するまで契約または予約の申し込みはできません。
ご購入の場合物件詳細や契約内容についてご自身で十分ご確認いただきますようよろしく御願いします。
建築条件付きとは…その土地に建築する建物の建築請負契約が、一定期間内に成立することを条件として売買される土地のことをいいます。請負契約成立に向けて設計プランを協議するため、土地購入者が希望する建物にするために一定の期間(概ね3ヶ月)交渉期間としその期間内に希望するプランが実現できたかどうかによって土地の購入の判断をします。納得のいくプランができず請負契約が未成立になった場合、土地契約にかかった代金(手付金など)は、すべて返却されます。
10件
該当しました。
0件
がマッチ
基本条件
物件種別
新築一戸建て
価格
下限なし
100万円
250万円
500万円
1000万円
1500万円
2000万円
2500万円
3000万円
3500万円
4000万円
4500万円
5000万円
5500万円
6000万円
6500万円
7000万円
7500万円
8000万円
8500万円
9000万円
9500万円
1億円
~
上限なし
100万円
250万円
500万円
1000万円
1500万円
2000万円
2500万円
3000万円
3500万円
4000万円
4500万円
5000万円
5500万円
6000万円
6500万円
7000万円
7500万円
8000万円
8500万円
9000万円
9500万円
1億円
間取り
ワンルーム
1K
1DK
1LDK
2K
2DK
2LDK
3K
3DK
3LDK
4K
4DK
4LDK以上
専有面積
下限なし
20㎡
30㎡
40㎡
50㎡
60㎡
70㎡
80㎡
90㎡
100㎡
~
上限なし
20㎡
30㎡
40㎡
50㎡
60㎡
70㎡
80㎡
90㎡
100㎡
土地面積
下限なし
60㎡ (約18坪)
70㎡ (約21坪)
80㎡ (約24坪)
90㎡ (約27坪)
100㎡ (約30坪)
110㎡ (約33坪)
120㎡ (約36坪)
130㎡ (約39坪)
140㎡ (約42坪)
150㎡ (約45坪)
160㎡ (約48坪)
170㎡ (約51坪)
180㎡ (約54坪)
190㎡ (約57坪)
200㎡ (約60坪)
250㎡ (約75坪)
300㎡ (約90坪)
~
上限なし
60㎡ (約18坪)
70㎡ (約21坪)
80㎡ (約24坪)
90㎡ (約27坪)
100㎡ (約30坪)
110㎡ (約33坪)
120㎡ (約36坪)
130㎡ (約39坪)
140㎡ (約42坪)
150㎡ (約45坪)
160㎡ (約48坪)
170㎡ (約51坪)
180㎡ (約54坪)
190㎡ (約57坪)
200㎡ (約60坪)
250㎡ (約75坪)
300㎡ (約90坪)
建物面積
下限なし
60㎡ (約18坪)
70㎡ (約21坪)
80㎡ (約24坪)
90㎡ (約27坪)
100㎡ (約30坪)
110㎡ (約33坪)
120㎡ (約36坪)
130㎡ (約39坪)
140㎡ (約42坪)
150㎡ (約45坪)
160㎡ (約48坪)
170㎡ (約51坪)
180㎡ (約54坪)
190㎡ (約57坪)
200㎡ (約60坪)
250㎡ (約75坪)
300㎡ (約90坪)
~
上限なし
60㎡ (約18坪)
70㎡ (約21坪)
80㎡ (約24坪)
90㎡ (約27坪)
100㎡ (約30坪)
110㎡ (約33坪)
120㎡ (約36坪)
130㎡ (約39坪)
140㎡ (約42坪)
150㎡ (約45坪)
160㎡ (約48坪)
170㎡ (約51坪)
180㎡ (約54坪)
190㎡ (約57坪)
200㎡ (約60坪)
250㎡ (約75坪)
300㎡ (約90坪)
坪単価
下限なし
5万円
10万円
15万円
20万円
25万円
30万円
35万円
40万円
45万円
50万円
~
上限なし
5万円
10万円
15万円
20万円
25万円
30万円
35万円
40万円
45万円
50万円
築年数
指定なし
新築
3年以内
5年以内
10年以内
15年以内
20年以内
方位
北
北東
東
南東
南
南西
西
北西
おすすめ条件
ペット可・相談
楽器可・相談
情報公開日
指定なし
本日
3日以内
1週間以内
1ヶ月以内
0件
がマッチ
人気のあるこだわり条件
角地(3)
整形地(9)
前面道路6m以上(4)
日当り良好(9)
閑静な住宅街(10)
スーパー近く(3)
長期優良住宅(2)
設計住宅性能評価付き(2)
耐震構造(2)
BELS/省エネ基準適合認定建物(8)
瑕疵担保保険付き(3)
建物確認・完了検査済証あり(4)
フラット35S適合(3)
LDK15畳以上(7)
全室フローリング(10)
天井高2.5m以上(2)
駐車場2台以上(8)
駐車場3台以上(6)
南向き(7)
庭あり(6)
TVインターホン(10)
複層ガラス(10)
ディンプルキー(6)
システムキッチン(10)
カウンターキッチン(10)
IHクッキングヒーター(10)
浄水器(1)
食器洗浄乾燥機(4)
3口コンロ(3)
追いだき機能付き(9)
浴室暖房乾燥機(1)
バス1坪以上(10)
浴室TV(1)
温水洗浄便座(10)
シャワー付き洗面台(10)
エアコン(10)
床暖房(2)
24時間換気システム(9)
全室エアコン(2)
オール電化(8)
省エネ給湯(10)
高気密高断熱住宅(5)
ウッドデッキ・テラス(2)
都市ガス(2)
上水道(10)
下水道(10)
電気(10)
ウォークインクローゼット(10)
全居室収納あり(10)
床下収納(2)
シューズインクローゼット(8)
シューズBOX(8)
BS端子(2)
LAN端子(2)
照明器具付き(6)
即引き渡し可能(4)
バリアフリー(4)
条件に合った物件数は、
0 件
です。
立地・環境
角地(3)
整形地(9)
前面道路6m以上(4)
日当り良好(9)
閑静な住宅街(10)
スーパー近く(3)
構造・工法・仕様
長期優良住宅(2)
設計住宅性能評価付き(2)
耐震構造(2)
BELS/省エネ基準適合認定建物(8)
瑕疵担保保険付き(3)
建物確認・完了検査済証あり(4)
フラット35S適合(3)
面積・間取り
LDK15畳以上(7)
全室フローリング(10)
天井高2.5m以上(2)
駐車・駐輪
駐車場2台以上(8)
駐車場3台以上(6)
採光・向き
南向き(7)
ガーデン
庭あり(6)
管理・防犯
TVインターホン(10)
複層ガラス(10)
ディンプルキー(6)
キッチン
システムキッチン(10)
カウンターキッチン(10)
IHクッキングヒーター(10)
浄水器(1)
食器洗浄乾燥機(4)
3口コンロ(3)
浴室
追いだき機能付き(9)
浴室暖房乾燥機(1)
バス1坪以上(10)
浴室TV(1)
トイレ
温水洗浄便座(10)
洗面所
シャワー付き洗面台(10)
冷暖房・空調
エアコン(10)
床暖房(2)
24時間換気システム(9)
全室エアコン(2)
光熱設備
オール電化(8)
省エネ給湯(10)
高気密高断熱住宅(5)
バルコニー・テラス
ウッドデッキ・テラス(2)
室内仕様・設備
都市ガス(2)
上水道(10)
下水道(10)
電気(10)
収納
ウォークインクローゼット(10)
全居室収納あり(10)
床下収納(2)
シューズインクローゼット(8)
シューズBOX(8)
電気設備
BS端子(2)
LAN端子(2)
照明器具付き(6)
費用・入居・引渡・条件
即引き渡し可能(4)
その他
バリアフリー(4)
条件に合った物件数は、
0 件
です。
アパート・マンション・一戸建て
/
駐車場
/
貸土地
/
店舗
/
事務所
/
倉庫・工場
新築分譲マンション
/
中古マンション
/
新築一戸建て
/
中古一戸建て
/
売土地
/
投資物件・その他
マンション
/
一戸建て
/
土地
建てる・リフォーム
物件掲載企業一覧
掲載希望の企業様へ
新潟の不動産情報サイト
サービス利用規約
運営会社
サイトマップ
プライバシーポリシー
お問い合わせ
リンク
Copyright (C)
株式会社 コモンライフ・コーポレーション
. All Rights Reserved.
新潟・長岡・柏崎の賃貸・マンション・アパート・住宅の不動産物件情報サイト
不動産検索サイト「らくすむ」及び関連サイトに記載の不動産情報は、会員規約に則り、情報提供会社様の責任のもとに発信されております。
不動産の賃借、購入に関しては賃借者、購入者ご自身が情報を確認され、会社企業様から説明を受けられたうえで判断をお願いいたします。
不動産検索サイト「らくすむ」及び関連サイトに記載の不動産情報、写真、デザイン、コンテンツなどの
無断転載・転用・複製
など禁止します。