物件掲載企業数:301|賃貸物件:3,194件|売買物件:3,237件|今週の登録物件:240
閲覧中のブラウザ(インターネットエクスプローラー)は非推奨ブラウザです。
物件が正しく表示されなかったり、正しく検索されない場合があります。最新のブラウザ(Google Chrome・Edgeなど)にてご利用お願いいたします。
  

新潟県上越市木田1丁目1番14-11 新築一戸建て 3LDK 45,007,928円の物件情報

市役所徒歩5分、暮らしが整う立地。吹抜けのある開放的な3LDK、家具家電付きで“すぐ始まる新生活

物件名/所在地 詳細 価格
イイコトテラス木田分譲住宅
新潟県上越市木田1丁目1番14-11
  • 土地面積
    :244.43㎡ /73.94坪
  • 建物面積
    :103.28㎡ /31.24坪
  • 間取り
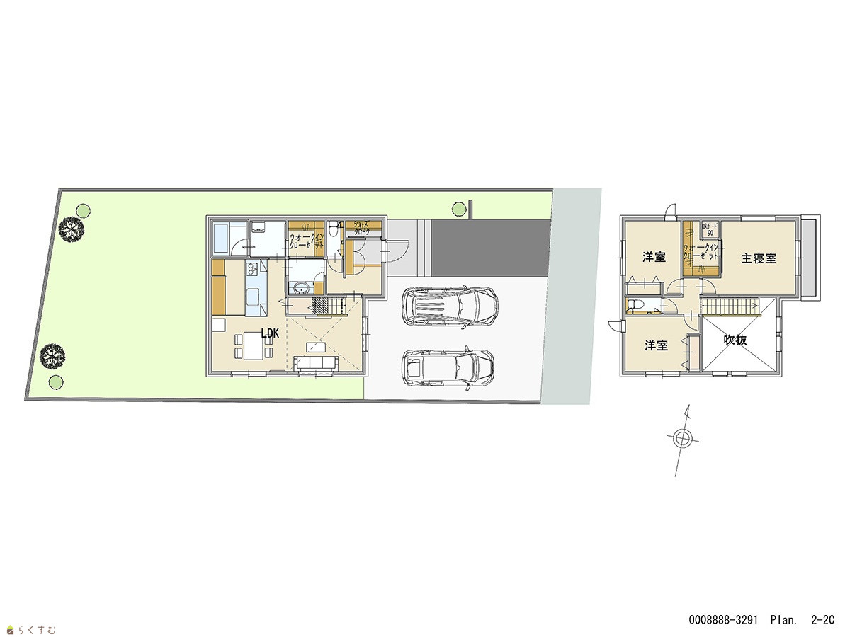
    :3LDK
  • 築年月
    :2025年5月
45,007,928
  • イイコトテラス木田分譲住宅
    株式会社一条工務店 新潟営業所
  • この物件を問い合わせる/無料
  • TEL: 0258-22-4871

物件画像

外観 間取り
物件画像
※画像クリックで拡大表示
外観
物件画像
※画像クリックで拡大表示
間取り
詳細画像


物件概要

物件コード 00389-200011
物件名 イイコトテラス木田分譲住宅
交通 駅:妙高はねうまライン 春日山駅から徒歩7分、バス:木田から徒歩6分
物件所在地 新潟県上越市木田1丁目1番14-11
物件種別 新築一戸建て
構造 木造 階建 地上2階建
建ぺい率/容積率 -
建物面積 1階 57.1㎡/ 2階 46.18㎡/ 計 103.28㎡ /31.24坪
土地面積 244.43㎡ /73.94坪
築年月 2025年5月(築11ヶ月)
入居(引き渡し)時期 2026年9月1日
用途地域 第1種住居地域 地目 -
都市計画 市街化区域 学校区 高志小学校(600m)・春日中学校(700m)
形状 間口 10.2m × 奥行 24m 道路 約11m
私道 - その他の制限 -
  • イイコトテラス木田分譲住宅
    株式会社一条工務店 新潟営業所
  • この物件を問い合わせる/無料
  • TEL: 0258-22-4871

物件詳細情報

所在階/階数 - 号室 -
販売価格 45,007,928円 方位
間取り 3LDK
専有面積 - バルコニー面積 -
その他面積 - 駐車場 -
管理費 - 修繕積立金 -
現況 指定なし
仲介手数料 なし
利用制限 -
設備 角地、整形地、前面道路6m以上、日当り良好、閑静な住宅街、長期優良住宅、設計住宅性能評価付き、瑕疵担保保険付き、建物確認・完了検査済証あり、LDK15畳以上、全室フローリング、駐車場3台以上、TVインターホン、複層ガラス、システムキッチン、カウンターキッチン、IHクッキングヒーター、食器洗浄乾燥機、3口コンロ、追いだき機能付き、バス1坪以上、温水洗浄便座、シャワー付き洗面台、エアコン、床暖房、24時間換気システム、全室エアコン、オール電化、高気密高断熱住宅、上水道、下水道、電気、ウォークインクローゼット、全居室収納あり、シューズインクローゼット、シューズBOX、BS端子、LAN端子、照明器具付き
取引態様 売主
備考 -
取り扱い会社

株式会社一条工務店 新潟営業所

新潟県長岡市千秋1-103-1日報+BSN住まいの広場 長岡東展示場

情報登録日 2026/04/13 次回更新予定日 2026/05/13
取引条件有効期限 2026/07/31
  • イイコトテラス木田分譲住宅
    株式会社一条工務店 新潟営業所
  • この物件を問い合わせる/無料
  • TEL: 0258-22-4871

この物件の地図・周辺情報・行政情報

この物件の周辺情報・行政情報を詳しく見る
【周辺情報】
物件の近くにあるコンビニや銀行・学校など、アイコン付のマップで詳しく表示できます!
【行政情報】
水道料や下水道料・ガス料金など、暮らしに関係のある情報を表示しています。

担当取扱い店舗情報

取扱い店舗画像
株式会社一条工務店 新潟営業所
TEL: 0258-22-4871
所在地: 新潟県長岡市千秋1-103-1日報+BSN住まいの広場 長岡東展示場
交通:
営業時間: 10:00~18:00/定休日:なし
免許番号: 国土交通大臣(7)第5369号 この会社の情報を詳しく見る
所属団体名: 公益社団法人首都圏不動産公正取引協議会加盟、一般社団法人全国住宅産業協会加盟
取引態様: 売主