物件掲載企業数:297|賃貸物件:3,624件|売買物件:3,288件|今週の登録物件:276
閲覧中のブラウザ(インターネットエクスプローラー)は非推奨ブラウザです。
物件が正しく表示されなかったり、正しく検索されない場合があります。最新のブラウザ(Google Chrome・Edgeなど)にてご利用お願いいたします。
  

新潟県長岡市新保1丁目8-35 新築一戸建て 4LDK 30,800,000円の物件情報

ゆとりある305.24㎡の広い敷地。駐車3台可。来客時にも安心です。

物件名/所在地 詳細 価格
新保1丁目 新築戸建
新潟県長岡市新保1丁目8-35
  • 土地面積
    :305.24㎡ /92.33坪
  • 建物面積
    :97.59㎡ /29.52坪
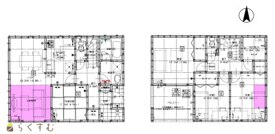
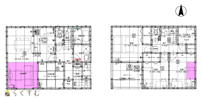
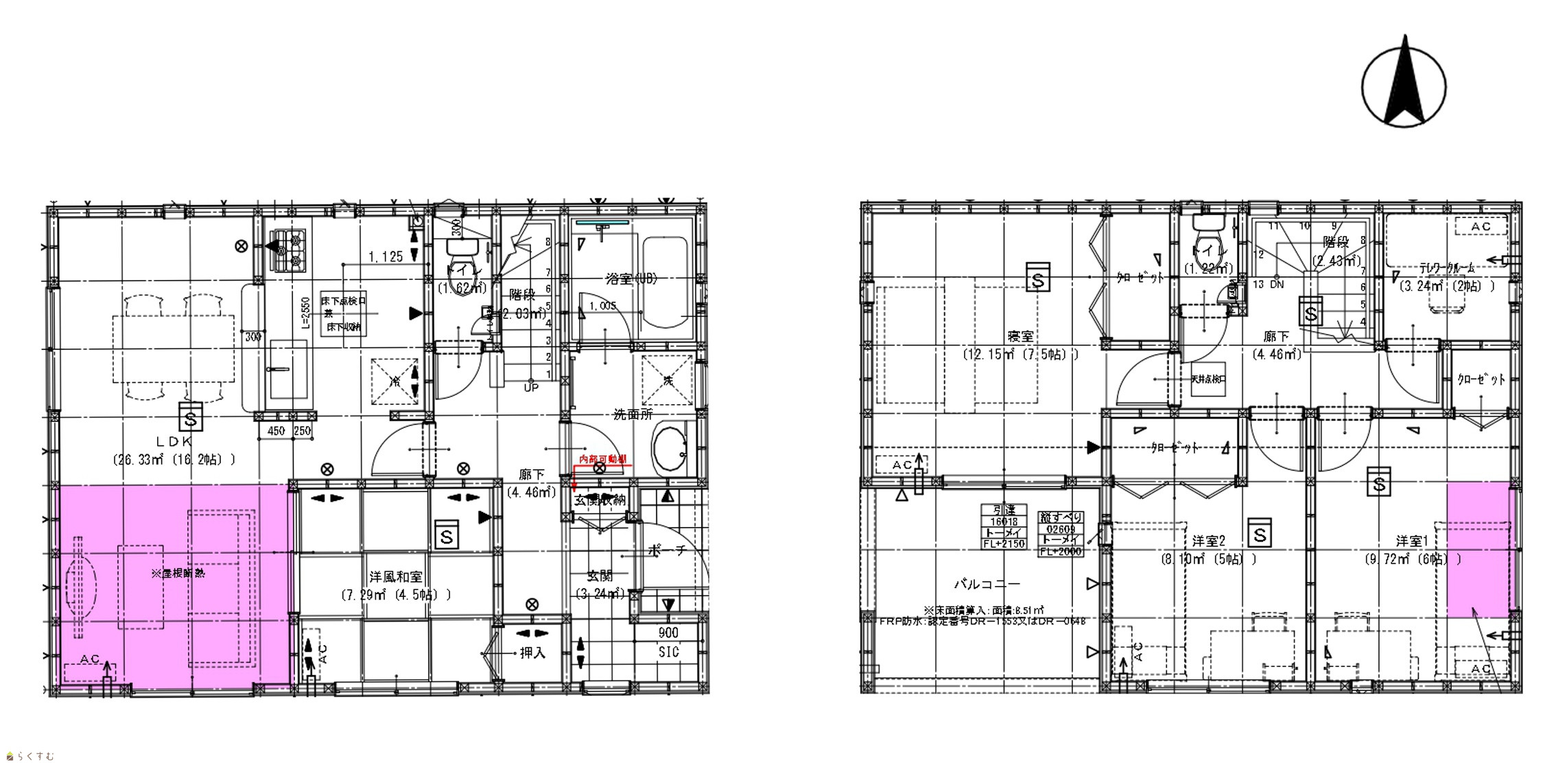
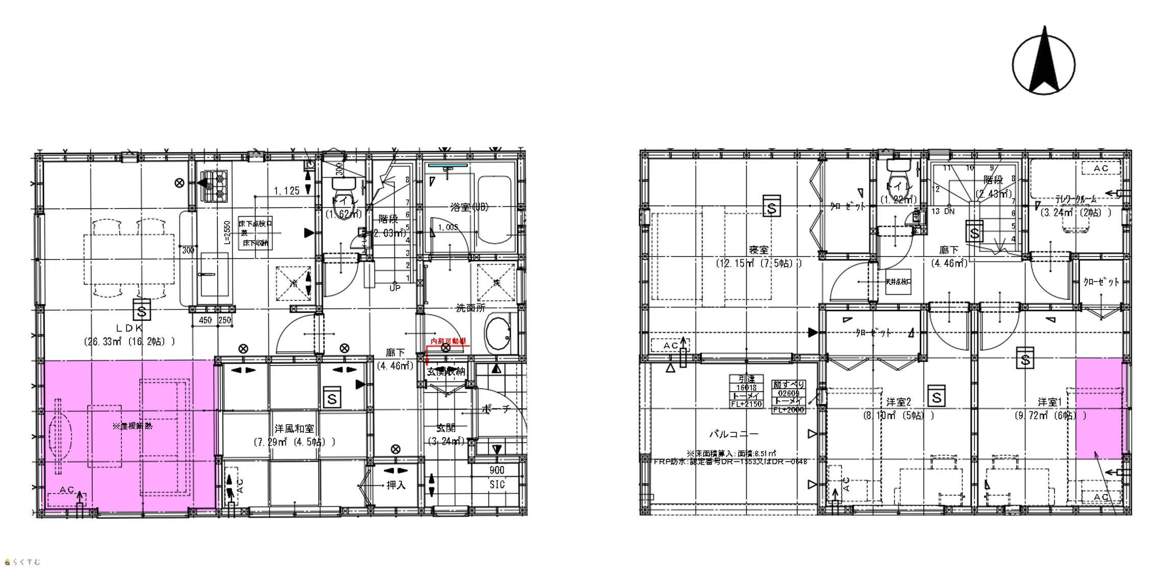
  • 間取り
    :4LDK
  • 築年月
    :2025年12月
30,800,000
  • 新保1丁目 新築戸建
    有限会社 ブライトサクセス
  • この物件を問い合わせる/無料
  • TEL: 0258-35-2220

物件画像

外観 間取り
物件画像
※画像クリックで拡大表示
外観パース:イメージです
物件画像
※画像クリックで拡大表示
間取り
詳細画像
動画


物件概要

1キロ圏内にはスーパー・ドラッグストア・コンビニ、小学校・中学校も近く、子育て世帯にも安心です。徒歩3分以内には郵便局と銀行も。玄関にはシューズインクロークがあり、靴や外遊び道具もしっかり収納。人感センサー付き玄関灯と防犯カメラで、防犯面にも配慮したつくりです。リビングには和室が隣接し、家族のくつろぎにぴったり。7.5帖の主寝室には8.51㎡のルーフバルコニーがつながり、ゆとりある時間を楽しめます。2階にもトイレ、全居室収納、2帖のテレワークルームなど、毎日の暮らしが快適になる工夫がつまった住まいです。
物件コード 00320-200223
物件名 新保1丁目 新築戸建
交通 駅:信越線 北長岡駅から徒歩15分、バス:新保1丁目から徒歩1分
物件所在地 新潟県長岡市新保1丁目8-35
物件種別 新築一戸建て
構造 木造 階建 地上2階建
建ぺい率/容積率 60%/200%
建物面積 計 97.59㎡ /29.52坪
土地面積 305.24㎡ /92.33坪
築年月 2025年12月完成予定
入居(引き渡し)時期 相談
用途地域 第1種中高層住居専用地域 地目 宅地
都市計画 市街化区域 学校区 富曾亀小学校(492m)・東北中学校(798m)
形状 間口 26.2m × 奥行 12.06m 道路 前面道路幅員約8.5m
私道 - その他の制限 第二種高度地区、建築基準法第22条第1項の規定により指定する区域、まちなか居住区域
  • 新保1丁目 新築戸建
    有限会社 ブライトサクセス
  • この物件を問い合わせる/無料
  • TEL: 0258-35-2220

物件詳細情報

所在階/階数 - 号室 -
販売価格 30,800,000円 方位
間取り 4LDK (和室:4.5畳) (洋室:7.5、6、5)
LDK16.2
2帖のテレワークルームあり
専有面積 - バルコニー面積 -
その他面積 8.51㎡ /2.57坪  ルーフバルコニー 駐車場 -
管理費 - 修繕積立金 -
現況 更地
仲介手数料 1,082,400円
利用制限 -
設備 整形地、前面道路6m以上、日当り良好、閑静な住宅街、スーパー近く、LDK15畳以上、駐車場3台以上、南向き、TVインターホン、複層ガラス、システムキッチン、カウンターキッチン、浴室暖房乾燥機、シャワー付き洗面台、ルーフバルコニー、都市ガス、上水道、下水道、全居室収納あり、シューズインクローゼット、シューズBOX
取引態様 仲介
備考 -
取り扱い会社

有限会社 ブライトサクセス

新潟県長岡市新町1-1-2

情報登録日 2025/11/21 次回更新予定日 2025/12/19
取引条件有効期限 2026/10/31
  • 新保1丁目 新築戸建
    有限会社 ブライトサクセス
  • この物件を問い合わせる/無料
  • TEL: 0258-35-2220

この物件の地図・周辺情報・行政情報

この物件の周辺情報・行政情報を詳しく見る
【周辺情報】
物件の近くにあるコンビニや銀行・学校など、アイコン付のマップで詳しく表示できます!
【行政情報】
水道料や下水道料・ガス料金など、暮らしに関係のある情報を表示しています。
ローソン 長岡新保店(コンビニ)まで270m
原信 新保店(スーパー)まで740m
ドラッグトップス 新保薬局(ドラッグストア)まで730m
大光銀行 新保支店(銀行)まで40m
長岡永田郵便局(郵便局)まで230m
セブン-イレブン 長岡永田店(コンビニ)までm

※カメラのアイコンがある場合は、マウスをポイントするとその施設の画像がご覧いただけます。


担当取扱い店舗情報

取扱い店舗画像
有限会社 ブライトサクセス
TEL: 0258-35-2220
所在地: 新潟県長岡市新町1-1-2
交通: 長岡駅
営業時間: 月~金:午前8時00分~午後6時 土日:午前10時00分~午後6時 /定休日:オンラインサービス:午前9時30分~午後9時
免許番号: 新潟県知事(1)第5629号 この会社の情報を詳しく見る
所属団体名: 公社 新潟県宅地建物取引協会 新潟支部
取引態様: 仲介
ホームページ: https://bright-success.net/