物件掲載企業数:301|賃貸物件:3,194件|売買物件:3,238件|今週の登録物件:241
閲覧中のブラウザ(インターネットエクスプローラー)は非推奨ブラウザです。
物件が正しく表示されなかったり、正しく検索されない場合があります。最新のブラウザ(Google Chrome・Edgeなど)にてご利用お願いいたします。
  

新潟県長岡市琴平3丁目3-31 新築一戸建て 2LDK 21,800,000円の物件情報

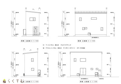
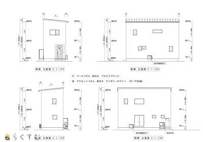
令和8年10月完成予定【完成前なので好みのデザイン選べます!】モダンな外観。駐車場2台利用可。ウォークインクローゼット等収納豊富。吹抜けで2階とつながるリビング、どこにいても家族の気配を感じられます。

物件名/所在地 詳細 価格
長岡市琴平3丁目 Bright新築戸建
新潟県長岡市琴平3丁目3-31
  • 土地面積
    :98.32㎡ /29.74坪
  • 建物面積
    :60.44㎡ /18.28坪
  • 間取り
    :2LDK
  • 築年月
    :2026年10月
21,800,000
  • 長岡市琴平3丁目 Bright新築戸建
    有限会社 ブライトサクセス
  • この物件を問い合わせる/無料
  • TEL: 0258-35-2220

物件画像

外観 間取り
物件画像
※画像クリックで拡大表示
完成予想外観
物件画像
※画像クリックで拡大表示
完成予想
詳細画像
動画


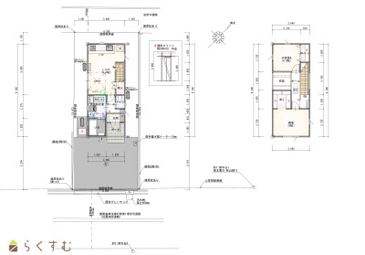
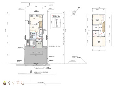
物件概要

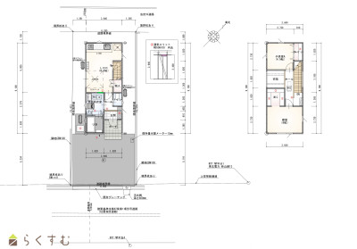
前面道路が広く(5.8m)、間口もゆったり(6.4m)。駐車が苦手なママもらくらく停められます。全室に物入れ、収納力の高いプラン。
物件コード 00320-200132
物件名 長岡市琴平3丁目 Bright新築戸建
交通 駅:信越線 北長岡駅から徒歩10分、バス:新町3丁目から徒歩7分
物件所在地 新潟県長岡市琴平3丁目3-31
物件種別 新築一戸建て
構造 木造 階建 地上2階建
建ぺい率/容積率 60%/200%
建物面積 計 60.44㎡ /18.28坪
土地面積 98.32㎡ /29.74坪
築年月 2026年10月完成予定
入居(引き渡し)時期 相談
用途地域 第1種住居地域 地目 宅地  (現状:宅地)
都市計画 市街化区域 学校区 新町小学校(478m)・北中学校(1,343m)
形状 間口 6.4m × 奥行 15.36m 道路 建築基準法第42条第1項第5号(位置指定道路) 幅員6m
私道 - その他の制限 第三種高度地区、建築基準法第22条指定区域、まちなか居住区域
  • 長岡市琴平3丁目 Bright新築戸建
    有限会社 ブライトサクセス
  • この物件を問い合わせる/無料
  • TEL: 0258-35-2220

物件詳細情報

所在階/階数 - 号室 -
販売価格 21,800,000円 方位 南東
間取り 2LDK (洋室:4.5、6)
LDK9.3
専有面積 - バルコニー面積 -
その他面積 - 駐車場 -
管理費 - 修繕積立金 -
現況 指定なし
仲介手数料 785,400円
利用制限 -
設備 前面道路6m以上、閑静な住宅街、スーパー近く、全室フローリング、駐車場2台以上、TVインターホン、複層ガラス、システムキッチン、IHクッキングヒーター、バス1坪以上、シャワー付き洗面台、オール電化、省エネ給湯、高気密高断熱住宅、上水道、下水道、ウォークインクローゼット、全居室収納あり
取引態様 一般
備考 町内会費、消雪組合費は現在調査中。
取り扱い会社

有限会社 ブライトサクセス

新潟県長岡市新町1-1-2

情報登録日 2026/04/20 次回更新予定日 2026/05/13
取引条件有効期限 2026/09/28
  • 長岡市琴平3丁目 Bright新築戸建
    有限会社 ブライトサクセス
  • この物件を問い合わせる/無料
  • TEL: 0258-35-2220

この物件の地図・周辺情報・行政情報

この物件の周辺情報・行政情報を詳しく見る
【周辺情報】
物件の近くにあるコンビニや銀行・学校など、アイコン付のマップで詳しく表示できます!
【行政情報】
水道料や下水道料・ガス料金など、暮らしに関係のある情報を表示しています。
ファミリーマート 長岡新町二丁目店(コンビニ)まで460m
チャレンジャー 北長岡店(スーパー)まで780m
長岡信用金庫 新町支店(銀行)まで450m
長岡新町郵便局(郵便局)まで590m

※カメラのアイコンがある場合は、マウスをポイントするとその施設の画像がご覧いただけます。


担当取扱い店舗情報

取扱い店舗画像
有限会社 ブライトサクセス
TEL: 0258-35-2220
所在地: 新潟県長岡市新町1-1-2
交通: 長岡駅
営業時間: 午前10時00分~午後7時 /定休日:オンラインサービス:午前9時30分~午後9時
免許番号: 新潟県知事(1)第5629号 この会社の情報を詳しく見る
所属団体名: 公社 新潟県宅地建物取引協会 新潟支部
取引態様: 一般
ホームページ: https://bright-success.net/