物件掲載企業数:301|賃貸物件:3,172件|売買物件:3,243件|今週の登録物件:171
閲覧中のブラウザ(インターネットエクスプローラー)は非推奨ブラウザです。
物件が正しく表示されなかったり、正しく検索されない場合があります。最新のブラウザ(Google Chrome・Edgeなど)にてご利用お願いいたします。
  

新潟県上越市滝寺2444-18 新築一戸建て 3LDK 29,500,000円の物件情報

南向き・角地の新築戸建てです! 1部ご希望クロス貼替可能です。

物件名/所在地 詳細 価格
滝寺建売
新潟県上越市滝寺2444-18
  • 土地面積
    :191㎡ /57.77坪
  • 建物面積
    :135.2㎡ /40.89坪
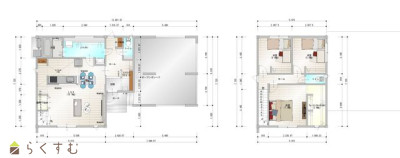
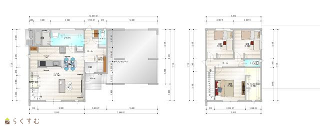
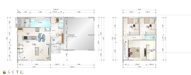
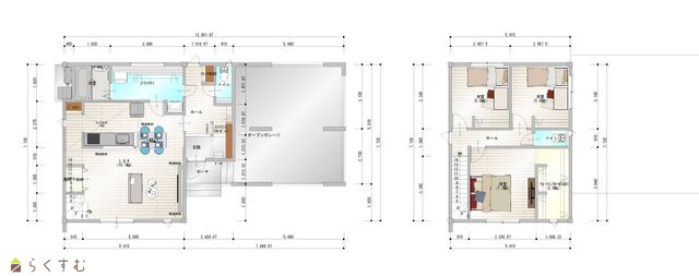
  • 間取り
    :3LDK
  • 築年月
    :2025年9月
29,500,000
  • 滝寺建売
    ミニミニFC上越店 ㈱インカムハウジング
  • この物件を問い合わせる/無料
  • TEL: 025-525-8112

物件画像

外観 間取り
物件画像
※画像クリックで拡大表示
外観
物件画像
※画像クリックで拡大表示
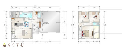
間取り
詳細画像
動画


物件概要

ルームツアー動画公開中 https://www.instagram.com/p/DPnuADfkTDD/
物件コード 00282-200017
物件名 滝寺建売
交通 駅:妙高はねうまライン 春日山駅から徒歩33分、バス:上越自動車学校前から徒歩4分
物件所在地 新潟県上越市滝寺2444-18
物件種別 新築一戸建て
構造 木造 階建 地上2階建
建ぺい率/容積率 60%/200%
建物面積 計 135.2㎡ /40.89坪
土地面積 191㎡ /57.77坪
築年月 2025年9月(築8ヶ月)
入居(引き渡し)時期 随時入居(引き渡し)可
用途地域 第1種中高層住居専用地域 地目 宅地
都市計画 市街化区域 学校区 高志小学校(1,378m)・春日中学校(2,263m)
形状 - 道路 東側:幅員5.9m 南側:幅員6.0m
私道 - その他の制限 -
  • 滝寺建売
    ミニミニFC上越店 ㈱インカムハウジング
  • この物件を問い合わせる/無料
  • TEL: 025-525-8112

物件詳細情報

所在階/階数 - 号室 -
販売価格 29,500,000円 方位
間取り 3LDK (洋室:5.6、5.6、7.3)
LDK19.7
ウォークインクローゼット3.6帖
専有面積 - バルコニー面積 -
その他面積 - 駐車場 -
管理費 - 修繕積立金 -
現況 空家
仲介手数料 なし
利用制限 -
設備 角地、前面道路6m以上、日当り良好、閑静な住宅街、瑕疵担保保険付き、建物確認・完了検査済証あり、LDK15畳以上、全室フローリング、駐車場2台以上、南向き、TVインターホン、複層ガラス、ディンプルキー、システムキッチン、カウンターキッチン、IHクッキングヒーター、食器洗浄乾燥機、3口コンロ、追いだき機能付き、バス1坪以上、温水洗浄便座、シャワー付き洗面台、エアコン、オール電化、上水道、下水道、電気、ウォークインクローゼット、全居室収納あり、シューズインクローゼット、即引き渡し可能
取引態様 売主
備考 オープンガレージ・オール電化・アイランドキッチン・ランドリースペース・ウォークインクローゼット・シューズクローク・パントリー
取り扱い会社

ミニミニFC上越店 ㈱インカムハウジング

新潟県上越市大学前54-2

情報登録日 2026/04/25 次回更新予定日 2026/05/17
取引条件有効期限 2026/12/30
  • 滝寺建売
    ミニミニFC上越店 ㈱インカムハウジング
  • この物件を問い合わせる/無料
  • TEL: 025-525-8112

この物件の地図・周辺情報・行政情報

この物件の周辺情報・行政情報を詳しく見る
【周辺情報】
物件の近くにあるコンビニや銀行・学校など、アイコン付のマップで詳しく表示できます!
【行政情報】
水道料や下水道料・ガス料金など、暮らしに関係のある情報を表示しています。

担当取扱い店舗情報

取扱い店舗画像
ミニミニFC上越店 ㈱インカムハウジング
TEL: 025-525-8112
所在地: 新潟県上越市大学前54-2
交通:
営業時間: /定休日:
免許番号: 新潟県知事(4)第4953号 この会社の情報を詳しく見る
所属団体名: 公社 新潟県宅地建物取引協会 上越支部
取引態様: 売主
ホームページ: http://incomehouse.jp/