物件掲載企業数:300|賃貸物件:3,168件|売買物件:3,231件|今週の登録物件:410
閲覧中のブラウザ(インターネットエクスプローラー)は非推奨ブラウザです。
物件が正しく表示されなかったり、正しく検索されない場合があります。最新のブラウザ(Google Chrome・Edgeなど)にてご利用お願いいたします。
  

新潟県妙高市朝日町1丁目2-7 中古一戸建て 4LDK 28,000,000円の物件情報

新井駅から徒歩1分の好立地。住居&収益物件でもあるので用途の幅が広がります。

物件名/所在地 詳細 価格
新井駅から徒歩1分の住居&収益物件
新潟県妙高市朝日町1丁目2-7
  • 土地面積
    :275.52㎡ /83.34坪
  • 建物面積
    :375.51㎡ /113.59坪
  • 間取り
    :4LDK
  • 築年月
    :1978年8月
28,000,000
  • 新井駅から徒歩1分の住居&収益物件
    楽栄不動産株式会社
  • この物件を問い合わせる/無料
  • TEL: 0255-72-0003

物件画像

外観 間取り
物件画像
※画像クリックで拡大表示
外観
物件画像
※画像クリックで拡大表示
間取り
詳細画像


物件概要

毎月家賃収入を得ながら住まうワンランク上のライフプラン♪
物件コード 00265-200188
物件名 新井駅から徒歩1分の住居&収益物件
交通 駅:妙高はねうまライン 新井駅から徒歩1分、バス:朝日町ショッピングプラザ前から徒歩2分
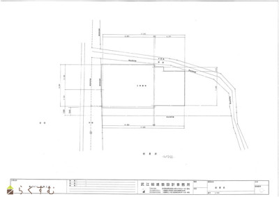
物件所在地 新潟県妙高市朝日町1丁目2-7
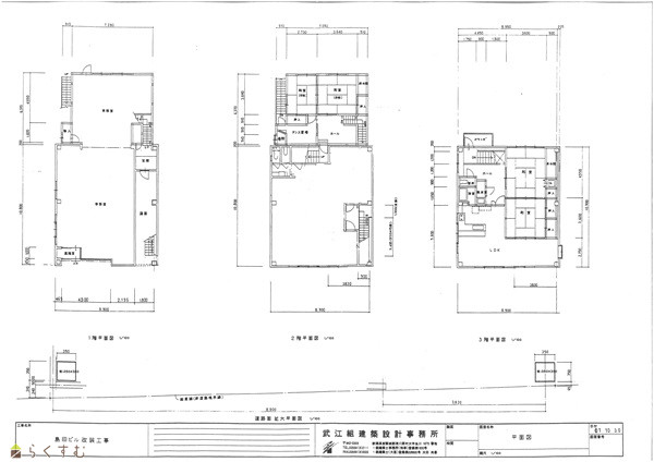
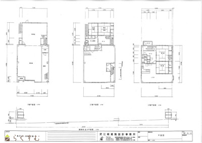
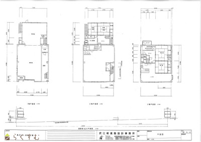
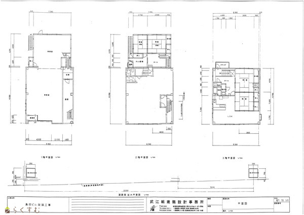
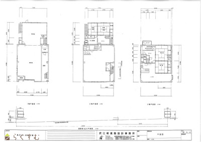
物件種別 中古一戸建て
構造 鉄骨 階建 地上3階建
建ぺい率/容積率 80%/400%
建物面積 1階 130.04㎡/ 2階 144.5㎡/ 3階 100.97㎡/ 計 375.51㎡ /113.59坪
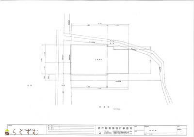
土地面積 275.52㎡ /83.34坪
築年月 1978年8月(築47年)
入居(引き渡し)時期 相談
用途地域 商業地域 地目 宅地  (現状:宅地)
都市計画 非線引き都市計画区域 学校区 新井中央小学校(478m)・新井中学校(1,495m)
形状 間口 12m × 奥行 27m 道路 市道/幅員歩道3.5m+車道9.0m+歩道3.5m/除雪道
私道 - その他の制限 1階テナント賃貸中、2階スケルトン空き/景観法
  • 新井駅から徒歩1分の住居&収益物件
    楽栄不動産株式会社
  • この物件を問い合わせる/無料
  • TEL: 0255-72-0003

物件詳細情報

所在階/階数 - 号室 -
販売価格 28,000,000円 方位
間取り 4LDK (和室:10畳、8畳、8畳、6畳)
専有面積 - バルコニー面積 -
その他面積 - 駐車場 -
管理費 - 修繕積立金 -
現況 空家
仲介手数料 990,000円
利用制限 -
設備 システムキッチン、IHクッキングヒーター、ルーフバルコニー、都市ガス、上水道、下水道、事業向け
取引態様 一般
備考 ■家賃収入あり。60年以上変わらず借主様が賃貸中の安定物件です。
■駐車場は周辺駐車場を賃貸していただきます。
取り扱い会社

楽栄不動産株式会社

新潟県妙高市雪森645-1

情報登録日 2026/02/27 次回更新予定日 2026/04/26
取引条件有効期限 2026/03/31
  • 新井駅から徒歩1分の住居&収益物件
    楽栄不動産株式会社
  • この物件を問い合わせる/無料
  • TEL: 0255-72-0003

この物件の地図・周辺情報・行政情報

この物件の周辺情報・行政情報を詳しく見る
【周辺情報】
物件の近くにあるコンビニや銀行・学校など、アイコン付のマップで詳しく表示できます!
【行政情報】
水道料や下水道料・ガス料金など、暮らしに関係のある情報を表示しています。

担当取扱い店舗情報

取扱い店舗画像
楽栄不動産株式会社
TEL: 0255-72-0003
所在地: 新潟県妙高市雪森645-1
交通: 妙高はねうまライン北井駅
営業時間: 8時~17時/定休日:土・日・祝日、その他夏季・年末年始
免許番号: 新潟県知事(12)第2463号 この会社の情報を詳しく見る
所属団体名: 公社 新潟県宅地建物取引協会 上越支部
取引態様: 一般
ホームページ: https://rakuei.info/