物件掲載企業数:297|賃貸物件:3,624件|売買物件:3,313件|今週の登録物件:281
閲覧中のブラウザ(インターネットエクスプローラー)は非推奨ブラウザです。
物件が正しく表示されなかったり、正しく検索されない場合があります。最新のブラウザ(Google Chrome・Edgeなど)にてご利用お願いいたします。
  

新潟県妙高市朝日町1丁目5番1号 中古一戸建て 6LDK 34,000,000円の物件情報

ゲストハウス・別荘・住居兼店舗をお探しの方に!ロッテ新井リゾートまで車で13分!

物件名/所在地 詳細 価格
朝日町1丁目 新井駅近 395坪
新潟県妙高市朝日町1丁目5番1号
  • 土地面積
    :1,307.79㎡ /395.6坪
  • 建物面積
    :320.97㎡ /97.09坪
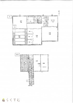
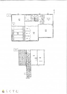
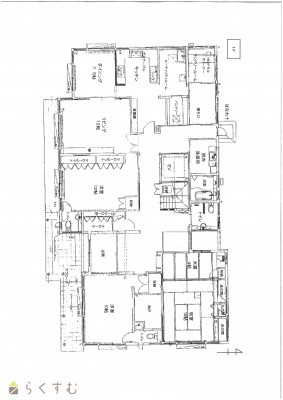
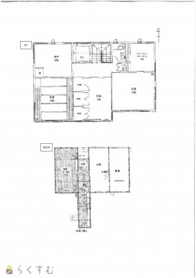
  • 間取り
    :6LDK
  • 築年月
    :1997年5月
34,000,000
  • 朝日町1丁目 新井駅近 395坪
    楽栄不動産株式会社
  • この物件を問い合わせる/無料
  • TEL: 0255-72-0003

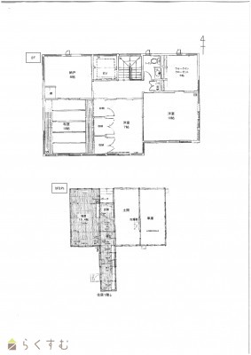
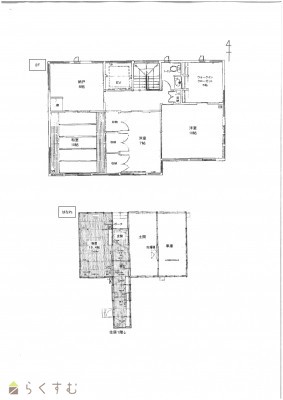
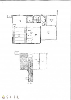
物件画像

外観 間取り
物件画像
※画像クリックで拡大表示
南面道路から
物件画像
※画像クリックで拡大表示
玄関(外から)
詳細画像


物件概要

駅近!商業地域!街中の豪邸✨
物件コード 00265-200062
物件名 朝日町1丁目 新井駅近 395坪
交通 駅:妙高はねうまライン 新井駅から徒歩4分、バス:朝日町ショッピングプラザ前から徒歩3分
物件所在地 新潟県妙高市朝日町1丁目5番1号
物件種別 中古一戸建て
構造 軽量鉄骨 階建 地上2階建
建ぺい率/容積率 80%/400%
建物面積 1階 224.24㎡/ 2階 96.73㎡/ 計 320.97㎡ /97.09坪
土地面積 1,307.79㎡ /395.6坪
築年月 1997年5月(築28年)
入居(引き渡し)時期 随時入居(引き渡し)可
用途地域 商業地域 地目 宅地  (現状:宅地)
都市計画 非線引き都市計画区域 学校区 新井中央小学校(631m)・新井中学校(1,306m)
形状 間口 25m × 奥行 40m 道路 前面道路:市道/消雪パイプ有
私道 - その他の制限 建築基準法第22条
  • 朝日町1丁目 新井駅近 395坪
    楽栄不動産株式会社
  • この物件を問い合わせる/無料
  • TEL: 0255-72-0003

物件詳細情報

所在階/階数 - 号室 -
販売価格 34,000,000円 方位
間取り 6LDK
LDK17帖
専有面積 - バルコニー面積 -
その他面積 - 駐車場 -
管理費 - 修繕積立金 -
現況 空家
仲介手数料 1,188,000円
利用制限 -
設備 日当り良好、閑静な住宅街、新築時図面あり、LDK15帖以上、駐車3台以上可能、南向き、TVインターホン、システムキッチン、IHクッキングヒーター、追いだき機能付き、浴室乾燥機、バス1坪以上、温水洗浄便座、トイレ2か所以上、シャワー付き洗面台、エアコンあり、床暖房、24時間換気システム、ウッドデッキ・テラス、都市ガス、上水道、下水道、ウォークインクローゼット、全居室収納あり、2世帯向き、即引き渡し可能、別荘、事業向け
取引態様 一般
備考 妙高はねうまライン新井駅から徒歩4分の商業地域。以前は街の病院兼住居として利用していました。敷地500坪と広く、設備も充実したお宅です。住居用としてはもちろんですが、ゲストハウスや店舗兼住宅などの事業用としてもおすすめの物件です。ご興味ある方は一度ご内覧下さい。
取り扱い会社

楽栄不動産株式会社

新潟県妙高市雪森645-1

情報登録日 2025/04/08 次回更新予定日 2025/12/29
取引条件有効期限 2024/03/31
  • 朝日町1丁目 新井駅近 395坪
    楽栄不動産株式会社
  • この物件を問い合わせる/無料
  • TEL: 0255-72-0003

この物件の地図・周辺情報・行政情報

この物件の周辺情報・行政情報を詳しく見る
【周辺情報】
物件の近くにあるコンビニや銀行・学校など、アイコン付のマップで詳しく表示できます!
【行政情報】
水道料や下水道料・ガス料金など、暮らしに関係のある情報を表示しています。
セブン-イレブン 妙高下町店(コンビニ)まで800m
イチコスーパー 新井店(スーパー)まで970m
自然堂つるや薬局 新井店(ドラッグストア)まで200m

※カメラのアイコンがある場合は、マウスをポイントするとその施設の画像がご覧いただけます。


担当取扱い店舗情報

取扱い店舗画像
楽栄不動産株式会社
TEL: 0255-72-0003
所在地: 新潟県妙高市雪森645-1
交通: 妙高はねうまライン北井駅
営業時間: 8時~17時/定休日:土・日・祝日、その他夏季・年末年始
免許番号: 新潟県知事(12)第2463号 この会社の情報を詳しく見る
所属団体名: 公社 新潟県宅地建物取引協会 上越支部
取引態様: 一般
ホームページ: https://rakuei.info/