物件掲載企業数:301|賃貸物件:3,194件|売買物件:3,237件|今週の登録物件:240
閲覧中のブラウザ(インターネットエクスプローラー)は非推奨ブラウザです。
物件が正しく表示されなかったり、正しく検索されない場合があります。最新のブラウザ(Google Chrome・Edgeなど)にてご利用お願いいたします。
  

新潟県長岡市三和三丁目2番1他9筆の一部 新築一戸建て 3LDK 36,400,000円の物件情報

《★完成前ご契約特典アリ》 家具、カーテンをプレゼント!勾配天井×間接照明で魅せる快適な住まい

物件名/所在地 詳細 価格
長岡市三和A 新築戸建住宅
新潟県長岡市三和三丁目2番1他9筆の一部
  • 土地面積
    :168.4㎡ /50.94坪
  • 建物面積
    :92.68㎡ /28.03坪
  • 間取り
    :3LDK
  • 築年月
    :2026年5月
36,400,000
  • 長岡市三和A 新築戸建住宅
    株式会社 ステーツ
  • この物件を問い合わせる/無料
  • TEL: 080-8755-4353

物件画像

外観 間取り
物件画像
※画像クリックで拡大表示
外観
物件画像
※画像クリックで拡大表示
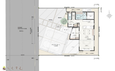
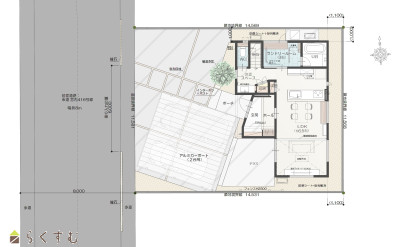
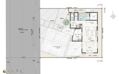
間取り
詳細画像


物件概要

2026年5月完成予定!市立劇場、さいわいプラザまで徒歩5分。 子育て世帯にぴったりの暮らしやすい環境です。
物件コード 00243-200020
物件名 長岡市三和A 新築戸建住宅
交通 駅:信越線 宮内駅から徒歩24分、バス:三和町から徒歩4分
物件所在地 新潟県長岡市三和三丁目2番1他9筆の一部
物件種別 新築一戸建て
構造 木造 階建 地上2階建
建ぺい率/容積率 60%/200%
建物面積 1階 50.17㎡/ 2階 42.51㎡/ 計 92.68㎡ /28.03坪
土地面積 168.4㎡ /50.94坪
築年月 2026年5月完成予定
入居(引き渡し)時期 2026年10月末 予定
用途地域 第2種中高層住居専用地域 地目
都市計画 市街化区域 学校区 宮内小学校(1,200m)・宮内中学校(1,600m)
形状 - 道路 西 8.0m 公道 接面11.5m
私道 - その他の制限 -
  • 長岡市三和A 新築戸建住宅
    株式会社 ステーツ
  • この物件を問い合わせる/無料
  • TEL: 080-8755-4353

物件詳細情報

所在階/階数 - 号室 -
販売価格 36,400,000円 方位
間取り 3LDK (洋室:6.1、4.9、4.9)
LDK 16.6
■土地+建物+外構 セットの価格です。
専有面積 - バルコニー面積 -
その他面積 - 駐車場 -
管理費 - 修繕積立金 -
現況 指定なし
仲介手数料 なし
利用制限 -
設備 前面道路6m以上、閑静な住宅街、スーパー近く、設計住宅性能評価付き、耐震構造、瑕疵担保保険付き、LDK15畳以上、全室フローリング、駐車場3台以上、TVインターホン、複層ガラス、ディンプルキー、システムキッチン、IHクッキングヒーター、食器洗浄乾燥機、追いだき機能付き、浴室暖房乾燥機、バス1坪以上、温水洗浄便座、シャワー付き洗面台、エアコン、24時間換気システム、オール電化、省エネ給湯、高気密高断熱住宅、ウッドデッキ・テラス、都市ガス、上水道、下水道、電気、ウォークインクローゼット、床下収納、照明器具付き
取引態様 売主
備考 ※引渡し時期について:完成後、しばらくの間、見学可能な展示場として公開予定です。引渡しは展示期間終了後(2026年10月末以降~)となります。

~建売のポイント~
(1.住みやすさ)
人気の宮内小学校エリア!静かな住宅街で、スーパーや商業施設等、子育てに嬉しい施設が集結。
日常や週末の買い物にとっても便利な生活環境。大きな公園も多く、子育てファミリーにおすすめです。
(2.交通環境)
車での出入りもスムーズ!歩道付き、8m幅の前面道路&駐車スペース3台分確保。
(3.物件の特長)
・木目柄の勾配天井を活かした、開放感あふれるリビング空間。
間接照明が、空間に上品な雰囲気と心地よさをプラス。
・30坪の家に、オシャレな造作TVボードや造作洗面台、天候に左右されないランドリールームなど、暮らしを便利にする設備が充実。
・ゆったりリラックス♪おうちアウトドア気分を満喫できる広いテラス。
・シューズクローク、パントリー、ウォークインクローゼットなど収納も豊富!

~ステーツの魅力~
◆ 最高ランク 「耐震等級3」 地震に強い家
◆ ZEHを超える高断熱性能「HEAT20 G1グレード」以上の高性能
◆ 「構造・雨漏り最長60年保証&無償定期点検」・「設備10年保証」など、建てた後も安心の住まい

-----■「長岡市三和A」建売 月々の返済例-----
 (2025年9月現在)

---------------
[月々の返済額]86,366円 
※ボーナス払いなしの場合
---------------
■諸条件
[価 格]  3,640万円
[頭 金]    100万円
[借入金]  3,540万円
[金利タイプ]変動金利
[金 利]  0.810%
[借入年数] 40年
※ローン諸費用別途
取り扱い会社

株式会社 ステーツ

新潟県新潟市江南区東早通1-1-40

情報登録日 2026/03/09 次回更新予定日 2026/05/13
取引条件有効期限 2026/09/30
  • 長岡市三和A 新築戸建住宅
    株式会社 ステーツ
  • この物件を問い合わせる/無料
  • TEL: 080-8755-4353

この物件の地図・周辺情報・行政情報

この物件の周辺情報・行政情報を詳しく見る
【周辺情報】
物件の近くにあるコンビニや銀行・学校など、アイコン付のマップで詳しく表示できます!
【行政情報】
水道料や下水道料・ガス料金など、暮らしに関係のある情報を表示しています。
長岡シビックコアショッピングセンター(デパート)まで900m
宮内ショッピングセンター(デパート)まで1900m
ウオロク 要町店(スーパー)まで1100m
原信シビックコア店(スーパー)まで900m
セブン-イレブン 長岡市立劇場前店(コンビニ)まで350m
ドラッグ・トップス千歳店(ドラッグストア)まで350m
長岡市立宮内小学校(学校)まで1200m
長岡市立宮内中学校(学校)まで1600m
三和保育園(市区町村機関)まで450m
野村こどもクリニック(病院)まで260m
立川綜合病院(病院)まで2200m
さいわいプラザ(市区町村機関)まで400m
長岡三和郵便局(郵便局)まで350m
幸町公園(市区町村機関)まで500m

※カメラのアイコンがある場合は、マウスをポイントするとその施設の画像がご覧いただけます。


担当取扱い店舗情報

取扱い店舗画像
株式会社 ステーツ
TEL: 025-383-3003
所在地: 新潟県新潟市江南区東早通1-1-40
交通:
営業時間: 10:00~18:00/定休日:水・木曜日
免許番号: 国土交通大臣(5)第6810号 この会社の情報を詳しく見る
所属団体名: 公社 新潟県宅地建物取引協会 新潟支部
取引態様: 売主
ホームページ: https://www.states.co.jp/