物件掲載企業数:299|賃貸物件:2,876件|売買物件:3,234件|今週の登録物件:344
閲覧中のブラウザ(インターネットエクスプローラー)は非推奨ブラウザです。
物件が正しく表示されなかったり、正しく検索されない場合があります。最新のブラウザ(Google Chrome・Edgeなど)にてご利用お願いいたします。
  

新潟県上越市南本町2-13-14 中古一戸建て 10DK 1,730,000円の物件情報

事務所、診療所、介護施設最適!

物件名/所在地 詳細 価格
南本町2丁目(売事務所、売ビル)
新潟県上越市南本町2-13-14
  • 土地面積
    :994.95㎡ /300.97坪
  • 建物面積
    :624.03㎡ /188.76坪
  • 間取り
    :10DK
  • 築年月
    :1973年10月
1,730,000
  • 南本町2丁目(売事務所、売ビル)
    日成商事株式会社
  • この物件を問い合わせる/無料
  • TEL: 025-524-6441

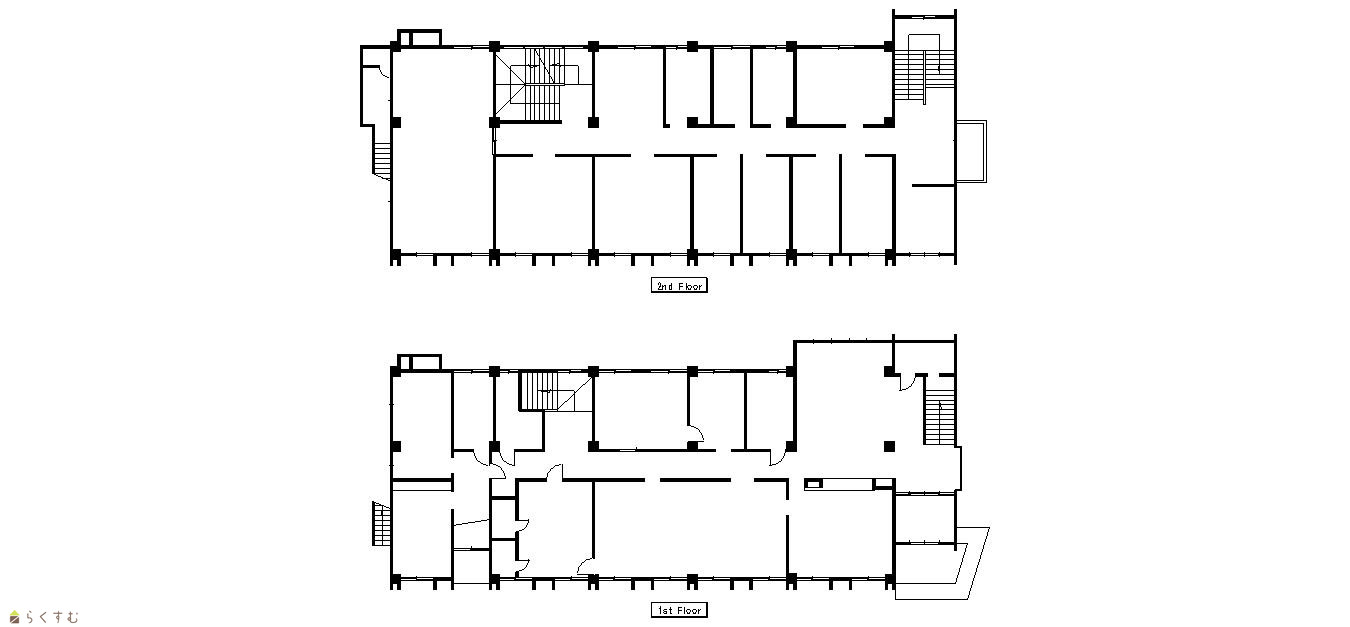
物件画像

外観 間取り
物件画像
※画像クリックで拡大表示
外観
物件画像
※画像クリックで拡大表示
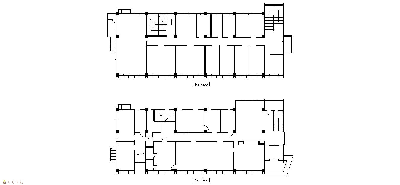
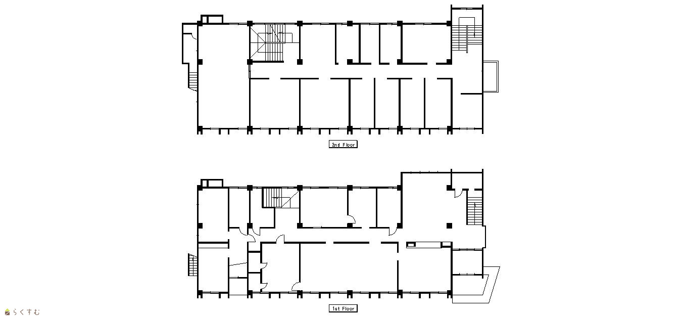
間取り
詳細画像


物件概要

物件コード 00238-200053
物件名 南本町2丁目(売事務所、売ビル)
交通 駅:妙高はねうまライン 南高田駅から徒歩11分、バス:医療センター入口から徒歩3分
物件所在地 新潟県上越市南本町2-13-14
物件種別 中古一戸建て
構造 鉄筋コン 階建 地上2階建
建ぺい率/容積率 60%/200%
建物面積 1階 313.95㎡/ 2階 310.08㎡/ 計 624.03㎡ /188.76坪
土地面積 994.95㎡ /300.97坪
築年月 1973年10月(築52年)
入居(引き渡し)時期 随時入居(引き渡し)可
用途地域 第1種住居地域 地目 宅地
都市計画 市街化区域 学校区 南本町小学校(847m)・城西中学校(529m)
形状 - 道路 南側9.2M上越市道
私道 - その他の制限 -
  • 南本町2丁目(売事務所、売ビル)
    日成商事株式会社
  • この物件を問い合わせる/無料
  • TEL: 025-524-6441

物件詳細情報

所在階/階数 - 号室 -
販売価格 1,730,000円 方位
間取り 10DK
専有面積 - バルコニー面積 -
その他面積 - 駐車場 -
管理費 - 修繕積立金 -
現況 居住中
仲介手数料 330,000円
利用制限 -
設備 南向き、都市ガス、上水道、下水道、即引き渡し可能
取引態様 専属専任
備考 -
取り扱い会社

日成商事株式会社

新潟県上越市木田1-8-11

情報登録日 2026/03/19 次回更新予定日 2026/04/04
取引条件有効期限 2026/04/29
  • 南本町2丁目(売事務所、売ビル)
    日成商事株式会社
  • この物件を問い合わせる/無料
  • TEL: 025-524-6441

この物件の地図・周辺情報・行政情報

この物件の周辺情報・行政情報を詳しく見る
【周辺情報】
物件の近くにあるコンビニや銀行・学校など、アイコン付のマップで詳しく表示できます!
【行政情報】
水道料や下水道料・ガス料金など、暮らしに関係のある情報を表示しています。

担当取扱い店舗情報

取扱い店舗画像
日成商事株式会社
TEL: 025-524-6441
所在地: 新潟県上越市木田1-8-11
交通: 妙高はねうまライン春日山駅徒歩10分
営業時間: 平日9:00~18:30 土9:00~18:00/定休日:日曜、祝日
免許番号: 新潟県知事(15)第861号 この会社の情報を詳しく見る
所属団体名: 公社 新潟県宅地建物取引協会 上越支部
取引態様: 専属専任
ホームページ: http://www.nissey.jp/