物件掲載企業数:297|賃貸物件:3,619件|売買物件:3,313件|今週の登録物件:270
閲覧中のブラウザ(インターネットエクスプローラー)は非推奨ブラウザです。
物件が正しく表示されなかったり、正しく検索されない場合があります。最新のブラウザ(Google Chrome・Edgeなど)にてご利用お願いいたします。
  

新潟県柏崎市北条1260-1 他 中古一戸建て 6DK 3,000,000円の物件情報

色々な用途に利用可能

物件名/所在地 詳細 価格
北条売り物件
新潟県柏崎市北条1260-1 他
  • 土地面積
    :819㎡ /247.74坪
  • 建物面積
    :328.64㎡ /99.41坪
  • 間取り
    :6DK
  • 築年月
    :1968年11月
3,000,000
  • 北条売り物件
    リメイク株式会社
  • この物件を問い合わせる/無料
  • TEL: 0257-41-6381

物件画像

外観 間取り
物件画像
※画像クリックで拡大表示
店舗・居宅 全景1
物件画像
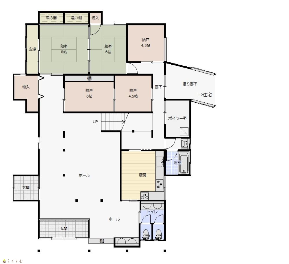
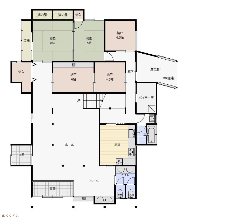
※画像クリックで拡大表示
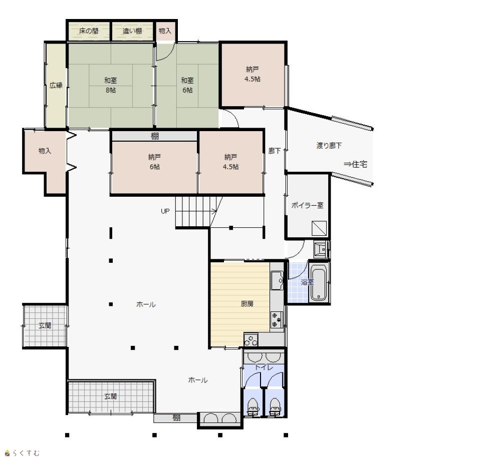
店舗・居宅 1F図面
詳細画像


物件概要

物件コード 00227-200068
物件名 北条売り物件
交通 駅:信越線 北条駅から徒歩3分、バス:北条駅から徒歩3分
物件所在地 新潟県柏崎市北条1260-1 他
物件種別 中古一戸建て
構造 木造 階建 地上2階建
建ぺい率/容積率 -
建物面積 1階 167.99㎡/ 2階 160.07㎡/ 計 328.64㎡ /99.41坪
土地面積 819㎡ /247.74坪
築年月 1968年11月(築57年)
入居(引き渡し)時期 随時入居(引き渡し)可
用途地域 用途の指定のない地域 地目 宅地・田  (現状:宅地)
都市計画 都市計画区域外 学校区 北条小学校(818m)・北条中学校(910m)
形状 - 道路 柏崎市道
私道 - その他の制限 -
  • 北条売り物件
    リメイク株式会社
  • この物件を問い合わせる/無料
  • TEL: 0257-41-6381

物件詳細情報

所在階/階数 - 号室 -
販売価格 3,000,000円 方位
間取り 6DK
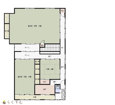
敷地内建物2棟 (①店舗・居宅 ②居宅)
専有面積 - バルコニー面積 -
その他面積 - 駐車場 -
管理費 - 修繕積立金 -
現況 空家
仲介手数料 154,000円
利用制限 -
設備 駐車3台以上可能、システムキッチン、バス1坪以上、トイレ2か所以上、都市ガス、上水道、下水道、即引き渡し可能、別荘、田舎暮らし、事業向け
取引態様 一般
備考 敷地内に建物が2棟あります。
①店舗・居宅 延べ面積328.64㎡ 仕出し・宴会場、居宅として以前使用 S.43新築
②居宅 延べ面積110.12㎡ S.52新築
*建物内残物は売主において処分します。
取り扱い会社

リメイク株式会社

新潟県柏崎市土合615番地

情報登録日 2024/01/10 次回更新予定日 2025/12/30
取引条件有効期限 2024/04/10
  • 北条売り物件
    リメイク株式会社
  • この物件を問い合わせる/無料
  • TEL: 0257-41-6381

この物件の地図・周辺情報・行政情報

この物件の周辺情報・行政情報を詳しく見る
【周辺情報】
物件の近くにあるコンビニや銀行・学校など、アイコン付のマップで詳しく表示できます!
【行政情報】
水道料や下水道料・ガス料金など、暮らしに関係のある情報を表示しています。

担当取扱い店舗情報

取扱い店舗画像
リメイク株式会社
TEL: 0257-41-6381
所在地: 新潟県柏崎市土合615番地
交通:
営業時間: 8:30~17:30/定休日:土日年末年始・夏季など
免許番号: 新潟県知事(2)第5472号 この会社の情報を詳しく見る
所属団体名: 公社新潟県宅地建物取引業協会 柏崎支部
取引態様: 一般
ホームページ: https://remake-kabu.com/