物件掲載企業数:301|賃貸物件:3,190件|売買物件:3,237件|今週の登録物件:227
閲覧中のブラウザ(インターネットエクスプローラー)は非推奨ブラウザです。
物件が正しく表示されなかったり、正しく検索されない場合があります。最新のブラウザ(Google Chrome・Edgeなど)にてご利用お願いいたします。
  

新潟県柏崎市米山台4丁目6-15 中古一戸建て 6LDK 6,280,000円の物件情報

閑静な住宅街、車庫付き、水回りリフォーム済

物件名/所在地 詳細 価格
米山台4丁目中古住宅
新潟県柏崎市米山台4丁目6-15
  • 土地面積
    :240.24㎡ /72.67坪
  • 建物面積
    :142.62㎡ /43.14坪
  • 間取り
    :6LDK
  • 築年月
    :1977年11月
6,280,000
  • 米山台4丁目中古住宅
    有限会社イッケン
  • この物件を問い合わせる/無料
  • TEL: 0257-22-1422

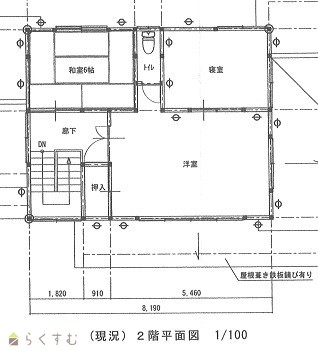
物件画像

外観 間取り
物件画像
※画像クリックで拡大表示
外観
物件画像
※画像クリックで拡大表示
車庫
詳細画像


物件概要

閑静な住宅街、車庫付き、水回りリフォーム済
物件コード 00205-200029
物件名 米山台4丁目中古住宅
交通 駅:信越線 柏崎駅から徒歩30分、バス:米山台第4公園から徒歩4分
物件所在地 新潟県柏崎市米山台4丁目6-15
物件種別 中古一戸建て
構造 木造 階建 地上2階建
建ぺい率/容積率 50%/100%
建物面積 1階 90.6㎡/ 2階 52.02㎡/ 計 142.62㎡ /43.14坪
土地面積 240.24㎡ /72.67坪
築年月 1977年11月(築48年)
入居(引き渡し)時期 随時入居(引き渡し)可
用途地域 第1種低層住居専用地域 地目 宅地
都市計画 非線引き都市計画区域 学校区 剣野小学校(794m)・第三中学校(499m)
形状 間口 13.4m × 奥行 17.93m 道路 南西側公道、幅5m
私道 - その他の制限 -
  • 米山台4丁目中古住宅
    有限会社イッケン
  • この物件を問い合わせる/無料
  • TEL: 0257-22-1422

物件詳細情報

所在階/階数 - 号室 -
販売価格 6,280,000円 方位 南西
間取り 6LDK (和室:8畳、6畳、6畳) (洋室:8、12、6)
9.5
専有面積 - バルコニー面積 -
その他面積 - 駐車場 -
管理費 - 修繕積立金 -
現況 空家
仲介手数料 330,000円
利用制限 -
設備 閑静な住宅街、駐車2台可能、システムキッチン、追いだき機能付き、温水洗浄便座、トイレ2か所以上、シャワー付き洗面台、都市ガス、即引き渡し可能、別荘、田舎暮らし
取引態様 専任
備考 閑静な住宅街、車庫付き、水回りリフォーム済
取り扱い会社

有限会社イッケン

新潟県柏崎市錦町8-29

情報登録日 2025/12/27 次回更新予定日 2026/05/14
取引条件有効期限 2026/12/31
  • 米山台4丁目中古住宅
    有限会社イッケン
  • この物件を問い合わせる/無料
  • TEL: 0257-22-1422

この物件の地図・周辺情報・行政情報

この物件の周辺情報・行政情報を詳しく見る
【周辺情報】
物件の近くにあるコンビニや銀行・学校など、アイコン付のマップで詳しく表示できます!
【行政情報】
水道料や下水道料・ガス料金など、暮らしに関係のある情報を表示しています。
エムケイ薬局 かしわざき店(ドラッグストア)まで1090m
国立病院機構 新潟病院(病院)まで1400m

※カメラのアイコンがある場合は、マウスをポイントするとその施設の画像がご覧いただけます。


担当取扱い店舗情報

取扱い店舗画像
有限会社イッケン
TEL: 0257-22-1422
所在地: 新潟県柏崎市錦町8-29
交通: 駅前公園、向かい♪
営業時間: 9:00~17:30 土曜日10:00~15:00/定休日:日曜・祝日
免許番号: 新潟県知事(8)第3675号 この会社の情報を詳しく見る
所属団体名: 公社 新潟県宅地建物取引業協会 柏崎支部
取引態様: 専任
ホームページ: https://www.ikken.co.jp/