物件掲載企業数:297|賃貸物件:3,624件|売買物件:3,288件|今週の登録物件:292
閲覧中のブラウザ(インターネットエクスプローラー)は非推奨ブラウザです。
物件が正しく表示されなかったり、正しく検索されない場合があります。最新のブラウザ(Google Chrome・Edgeなど)にてご利用お願いいたします。
  

新潟県長岡市栃尾原町3丁目11−28 投資物件・その他 9,800,000円の物件情報

【築浅物件!きれいな状態なのでそのままのご使用OK!リノベーションしてもOK!】

物件名/所在地 詳細 価格
表面利回り
栃尾原町事業用
新潟県長岡市栃尾原町3丁目11−28
  • 土地面積
    :624.58㎡ /188.93坪
  • 建ぺい率
    :60%
  • 容積率
    :200%
9,800,000
-
  • 栃尾原町事業用
    株式会社 悠久不動産
  • この物件を問い合わせる/無料
  • TEL: 0258-94-6123

物件画像

外観 間取り
物件画像
※画像クリックで拡大表示
外観
物件画像
※画像クリックで拡大表示
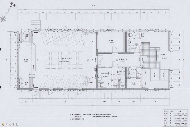
間取り
詳細画像


物件概要

駐車場16台。屋根融雪設備付きです。
物件コード 00201-200017
物件名 栃尾原町事業用
交通 駅:信越線 見附駅から徒歩171分、バス:巻渕から徒歩7分
物件所在地 新潟県長岡市栃尾原町3丁目11−28
物件種別 投資物件・その他
物件区分 その他
構造 木造 階建 地上1階建
建ぺい率/容積率 60%/200%
建物面積 1階 139.12㎡/ 計 139.12㎡ /42.08坪
土地面積 624.58㎡ /188.93坪
築年月 2012年11月(築13年)
入居(引き渡し)時期 相談
用途地域 第1種住居地域 地目 宅地
都市計画 市街化区域 学校区 栃尾東小学校(716m)・刈谷田中学校(626m)
形状 - 道路 市道栃尾原町29号
私道 - その他の制限 -
  • 栃尾原町事業用
    株式会社 悠久不動産
  • この物件を問い合わせる/無料
  • TEL: 0258-94-6123

物件詳細情報

所在階/階数 - 号室 -
販売価格 9,800,000円 方位 -
表面利回り(満室想定時) - 満室想定年収 - (想定月収: - )
現行利回り - 現行年間年収 -
住戸数 -
間取り -
専有面積 - バルコニー面積 -
その他面積 - 駐車場 16台
管理費 - 修繕積立金 -
現況 空家
仲介手数料 389,400円
利用制限 -
設備 駐車場(近隣含む)、事業向け
取引態様 一般
備考 R6.10.23に価格変更いたしました。約40畳の広々した空間があるので、オフィス、事務所、通所介護施設、児童支援施設、美容室,診療所,習い事スクール(教室)と幅広く活用していただけると思います!移動可能な連結椅子、作り付け書棚、温水給湯器(女子トイレのみ)、屋根融雪、床暖房、ミニステージ、玄関の手すりスロープ、車椅子対応多目的トイレ、2012年製エアコン6台、物置スペース、外灯あり、タイルカーペット貼り、花壇もあるので季節のお花を楽しめます。お気軽に内覧しに来てください♪
取り扱い会社

株式会社 悠久不動産

新潟県長岡市西神田町1丁目6-23 チサンマンション西神田1階

情報登録日 2024/10/24 次回更新予定日 2025/12/19
取引条件有効期限 2023/06/15
  • 栃尾原町事業用
    株式会社 悠久不動産
  • この物件を問い合わせる/無料
  • TEL: 0258-94-6123

この物件の地図・周辺情報・行政情報

この物件の周辺情報・行政情報を詳しく見る
【周辺情報】
物件の近くにあるコンビニや銀行・学校など、アイコン付のマップで詳しく表示できます!
【行政情報】
水道料や下水道料・ガス料金など、暮らしに関係のある情報を表示しています。
坂井医院(病院)まで380m

※カメラのアイコンがある場合は、マウスをポイントするとその施設の画像がご覧いただけます。


担当取扱い店舗情報

取扱い店舗画像
株式会社 悠久不動産
TEL: 0258-94-6123
所在地: 新潟県長岡市西神田町1丁目6-23 チサンマンション西神田1階
交通: 長岡駅
営業時間: 10:00~19:00/定休日:日曜:祝日
免許番号: 新潟県知事(2)第5322号 この会社の情報を詳しく見る
所属団体名: 公社新潟県宅地建物取引協会長岡支部
取引態様: 一般
ホームページ: http://yu-kyu-fudosan.co.jp/