物件掲載企業数:297|賃貸物件:3,624件|売買物件:3,288件|今週の登録物件:276
閲覧中のブラウザ(インターネットエクスプローラー)は非推奨ブラウザです。
物件が正しく表示されなかったり、正しく検索されない場合があります。最新のブラウザ(Google Chrome・Edgeなど)にてご利用お願いいたします。
  

新潟県長岡市大島新町1丁目2046番1、2046番2 新築一戸建て 3LDK 24,900,000円の物件情報

【10/2価格改定しました】 徒歩1分の土手から長岡花火が見えます!アピタやイオンまで車で5分圏内!買い物に便利な立地です!大島小学校区です。前面道路は消雪パイプがあり冬場も安心!

物件名/所在地 詳細 価格
長岡市 大島新町1丁目新築分譲住宅
新潟県長岡市大島新町1丁目2046番1、2046番2
  • 土地面積
    :165.28㎡ /49.99坪
  • 建物面積
    :87.77㎡ /26.55坪
  • 間取り
    :3LDK
  • 築年月
    :2025年3月
24,900,000
  • 長岡市 大島新町1丁目新築分譲住宅
    ダイエープロビス株式会社
  • この物件を問い合わせる/無料
  • TEL: 0258-24-1110

物件画像

外観 間取り
物件画像
※画像クリックで拡大表示
お家の外壁は、落ち着きのあるブラウン色に仕上げました。
物件画像
※画像クリックで拡大表示
家事をスムーズにするために、家事動線を1直線にまとめました!
詳細画像


物件概要

大島小学校まで徒歩7分、大島中学校まで徒歩15分、公園やこどもえんが徒歩10分!バス停徒歩5分!通学に便利な立地です。
物件コード 00101-200403
物件名 長岡市 大島新町1丁目新築分譲住宅
交通 駅:上越新幹線 長岡駅から徒歩35分、バス:長生橋西詰から徒歩5分
物件所在地 新潟県長岡市大島新町1丁目2046番1、2046番2
物件種別 新築一戸建て
構造 木造 階建 地上1階建
建ぺい率/容積率 60%/200%
建物面積 1階 43.06㎡/ 2階 44.71㎡/ 計 87.77㎡ /26.55坪
土地面積 165.28㎡ /49.99坪
築年月 2025年3月(築9ヶ月)
入居(引き渡し)時期 随時入居(引き渡し)可
用途地域 第1種中高層住居専用地域 地目 宅地  (現状:宅地)
都市計画 市街化区域 学校区 大島小学校(500m)・大島中学校(1,200m)
形状 間口 9.1m × 奥行 18.1m 道路 北側 市道 幅員5.7m 消雪パイプ有
私道 - その他の制限 -
  • 長岡市 大島新町1丁目新築分譲住宅
    ダイエープロビス株式会社
  • この物件を問い合わせる/無料
  • TEL: 0258-24-1110

物件詳細情報

所在階/階数 - 号室 -
販売価格 24,900,000円 方位
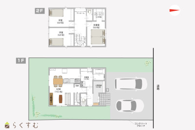
間取り 3LDK (洋室:6、6、6)
LDK14.5帖
洗面室3帖、土間収納2帖、WIC2帖
専有面積 - バルコニー面積 -
その他面積 - 駐車場 -
管理費 - 修繕積立金 -
現況 指定なし
仲介手数料 なし
消雪組合加入金 200,000円
消雪組合費:10,000円/年
利用制限 -
設備 整形地、閑静な住宅街、BELS/省エネ基準適合認定建物、瑕疵担保保険付き、フラット35S適合、全室フローリング、駐車場2台以上、庭あり、TVインターホン、複層ガラス、ディンプルキー、システムキッチン、カウンターキッチン、IHクッキングヒーター、追いだき機能付き、バス1坪以上、温水洗浄便座、シャワー付き洗面台、エアコン、24時間換気システム、全室エアコン、オール電化、省エネ給湯、上水道、下水道、電気、ウォークインクローゼット、全居室収納あり、シューズインクローゼット、シューズBOX、照明器具付き
取引態様 売主
備考 ↓ おすすめポイント ↓

安心のご契約!
~ニコニコ住宅の建物価格について~

表示価格には、
「土地」「建物」
「瑕疵担保責任保険」
「長期保証」「クリーニング費用」
「建物内の展示物撤収費用」
がきちんと含まれますのでご安心ください。

家事の時間を短縮できるよう、
家事楽にこだわった間取りです。

アウトドア用品や除雪道具も収納できる!
1坪の広々土間収納があります。

長岡の夏といったら、長岡花火!
長岡花火が、徒歩1分の土手から見れちゃいます!

通学や買い物に便利な立地です!

・リバーサイド千秋 車4分
・イオン長岡 車3分
・原信古正寺店 車3分
・大島小学校 徒歩7分
・大島中学校 徒歩15分
・大島公園 徒歩5分
・大島こどもえん 徒歩8分

LDKエアコン、カーテン、2階トイレ付です!

建売とは思えない!
手厚いアフターサービスが自慢の家

最長60年長期保証の家:
地盤・基礎・構造・雨漏りは基本保証20年
メンテナンス実施で最長60年

設備保証10年:
ユニットバス・システムキッチン・給湯設備・多機能便座

無料点検:10年間で4回実施

緊急駆けつけサービス:24時間365日10年間家事の時間を短縮できるよう、
家事楽にこだわった間取りです。

建築確認番号 第R06-1799号
取り扱い会社

ダイエープロビス株式会社

新潟県長岡市宝4丁目2番地25

情報登録日 2025/11/28 次回更新予定日 2025/12/19
取引条件有効期限 2026/12/31
  • 長岡市 大島新町1丁目新築分譲住宅
    ダイエープロビス株式会社
  • この物件を問い合わせる/無料
  • TEL: 0258-24-1110

この物件の地図・周辺情報・行政情報

この物件の周辺情報・行政情報を詳しく見る
【周辺情報】
物件の近くにあるコンビニや銀行・学校など、アイコン付のマップで詳しく表示できます!
【行政情報】
水道料や下水道料・ガス料金など、暮らしに関係のある情報を表示しています。
クスリのアオキ 大島店(ドラッグストア)まで840m
第四北越銀行 大島支店(銀行)まで650m
長岡信用金庫 大島支店(銀行)まで660m
長岡大島郵便局(郵便局)まで620m

※カメラのアイコンがある場合は、マウスをポイントするとその施設の画像がご覧いただけます。


担当取扱い店舗情報

取扱い店舗画像
ダイエープロビス株式会社
TEL: 0258-24-1110
所在地: 新潟県長岡市宝4丁目2番地25
交通: 「宝4丁目」バス停より徒歩2分
営業時間: 8:30 ~ 17:30/定休日:土曜・日曜・祝日
免許番号: 新潟県知事(13)1619号 この会社の情報を詳しく見る
所属団体名: 新潟県宅地建物取引業協会 長岡支部
取引態様: 売主
ホームページ: https://www.daiei-probis.com