物件掲載企業数:301|賃貸物件:3,194件|売買物件:3,237件|今週の登録物件:227
閲覧中のブラウザ(インターネットエクスプローラー)は非推奨ブラウザです。
物件が正しく表示されなかったり、正しく検索されない場合があります。最新のブラウザ(Google Chrome・Edgeなど)にてご利用お願いいたします。
  

新潟県刈羽郡刈羽村黒川584-1 投資物件・その他 90,000,000円の物件情報

物件名/所在地 詳細 価格
表面利回り
売モーテル 愛花夢・長岡
新潟県刈羽郡刈羽村黒川584-1
  • 土地面積
    :3,330.98㎡ /1,007.62坪
  • 建ぺい率
    :70%
  • 容積率
    :200%
90,000,000
-
  • 売モーテル 愛花夢・長岡
    アキヤトッカくん柏崎店 テントホーム
  • この物件を問い合わせる/無料
  • TEL: 0257-24-3711

物件画像

外観 間取り
物件画像
※画像クリックで拡大表示
全景 長岡側より
物件画像
※画像クリックで拡大表示
間取
詳細画像


物件概要

物件コード 00090-200040
物件名 売モーテル 愛花夢・長岡
交通 駅:信越線 長鳥駅から徒歩110分、バス:田代から徒歩6分
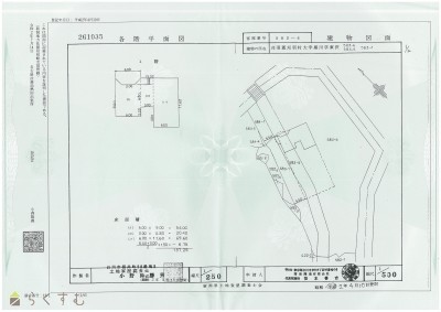
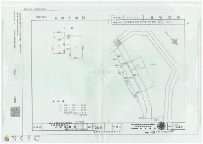
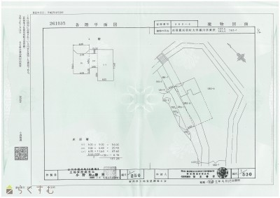
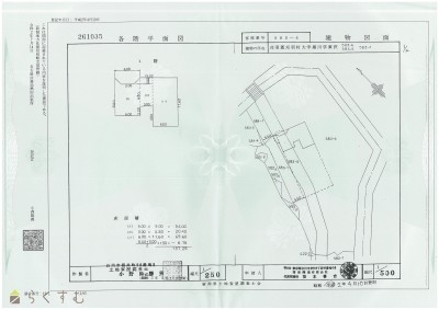
物件所在地 新潟県刈羽郡刈羽村黒川584-1
物件種別 投資物件・その他
物件区分 その他
構造 鉄筋コン 階建 地上3階建
建ぺい率/容積率 70%/200%
建物面積 1階 137.25㎡/ 2階 501.04㎡/ 3階 495㎡/ 計 1,133.29㎡ /342.82坪
土地面積 3,330.98㎡ /1,007.62坪
築年月 1990年2月(築36年)
入居(引き渡し)時期 随時入居(引き渡し)可
用途地域 無指定 地目 宅地  (現状:宅地)
都市計画 非線引き都市計画区域 学校区 刈羽小学校(7,375m)・刈羽中学校(7,674m)
形状 間口 75m × 奥行 42m 道路 国道八号線
私道 - その他の制限 -
  • 売モーテル 愛花夢・長岡
    アキヤトッカくん柏崎店 テントホーム
  • この物件を問い合わせる/無料
  • TEL: 0257-24-3711

物件詳細情報

所在階/階数 - 号室 -
販売価格 90,000,000円 方位 -
表面利回り(満室想定時) - 満室想定年収 - (想定月収: - )
現行利回り - 現行年間年収 -
住戸数 -
間取り -
専有面積 - バルコニー面積 -
その他面積 - 駐車場 -
管理費 - 修繕積立金 -
現況 指定なし
仲介手数料 3,300,000円
利用制限 -
設備 事業向け
取引態様 一般
備考 売買価格は、ご相談に乗ります
オーナーチェンジ物件です。
取り扱い会社

アキヤトッカくん柏崎店 テントホーム

新潟県柏崎市北半田2丁目1番6号

情報登録日 2025/03/08 次回更新予定日 2026/05/14
取引条件有効期限 2025/04/04
  • 売モーテル 愛花夢・長岡
    アキヤトッカくん柏崎店 テントホーム
  • この物件を問い合わせる/無料
  • TEL: 0257-24-3711

この物件の地図・周辺情報・行政情報

この物件の周辺情報・行政情報を詳しく見る
【周辺情報】
物件の近くにあるコンビニや銀行・学校など、アイコン付のマップで詳しく表示できます!
【行政情報】
水道料や下水道料・ガス料金など、暮らしに関係のある情報を表示しています。

担当取扱い店舗情報

取扱い店舗画像
アキヤトッカくん柏崎店 テントホーム
TEL: 0257-24-3711
所在地: 新潟県柏崎市北半田2丁目1番6号
交通: 越後線 東柏崎駅 徒歩20分
営業時間: 10:00~18:00 事前予約で営業時間外でも相談可能/定休日:水曜日、日曜日(事前予約で内見及びご相談可能)
免許番号: 新潟県知事(12)第2490号 この会社の情報を詳しく見る
所属団体名: 新潟県宅地建物取引業協会 柏崎支部
取引態様: 一般
ホームページ: https://akiyatokka-kun.co.jp/