物件掲載企業数:299|賃貸物件:2,870件|売買物件:3,228件|今週の登録物件:302
閲覧中のブラウザ(インターネットエクスプローラー)は非推奨ブラウザです。
物件が正しく表示されなかったり、正しく検索されない場合があります。最新のブラウザ(Google Chrome・Edgeなど)にてご利用お願いいたします。
  

新潟県柏崎市半田3丁目6-14-4 投資物件・その他 15,000,000円の物件情報

物件名/所在地 詳細 価格
表面利回り
ビューティーライフ
新潟県柏崎市半田3丁目6-14-4
  • 土地面積
    :132.24㎡ /40坪
  • 建ぺい率
    :70%
  • 容積率
    :200%
15,000,000
-
  • ビューティーライフ
    株式会社 アイエステート
  • この物件を問い合わせる/無料
  • TEL: 0257-24-2545

物件画像

外観 間取り
物件画像
※画像クリックで拡大表示
外観
物件画像
※画像クリックで拡大表示
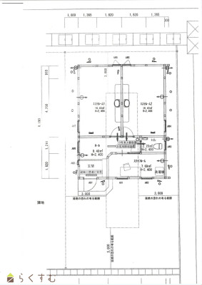
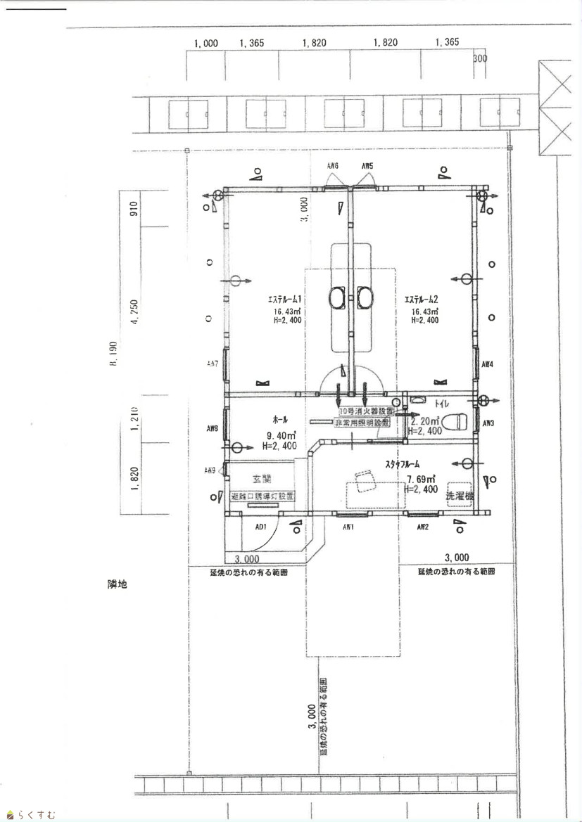
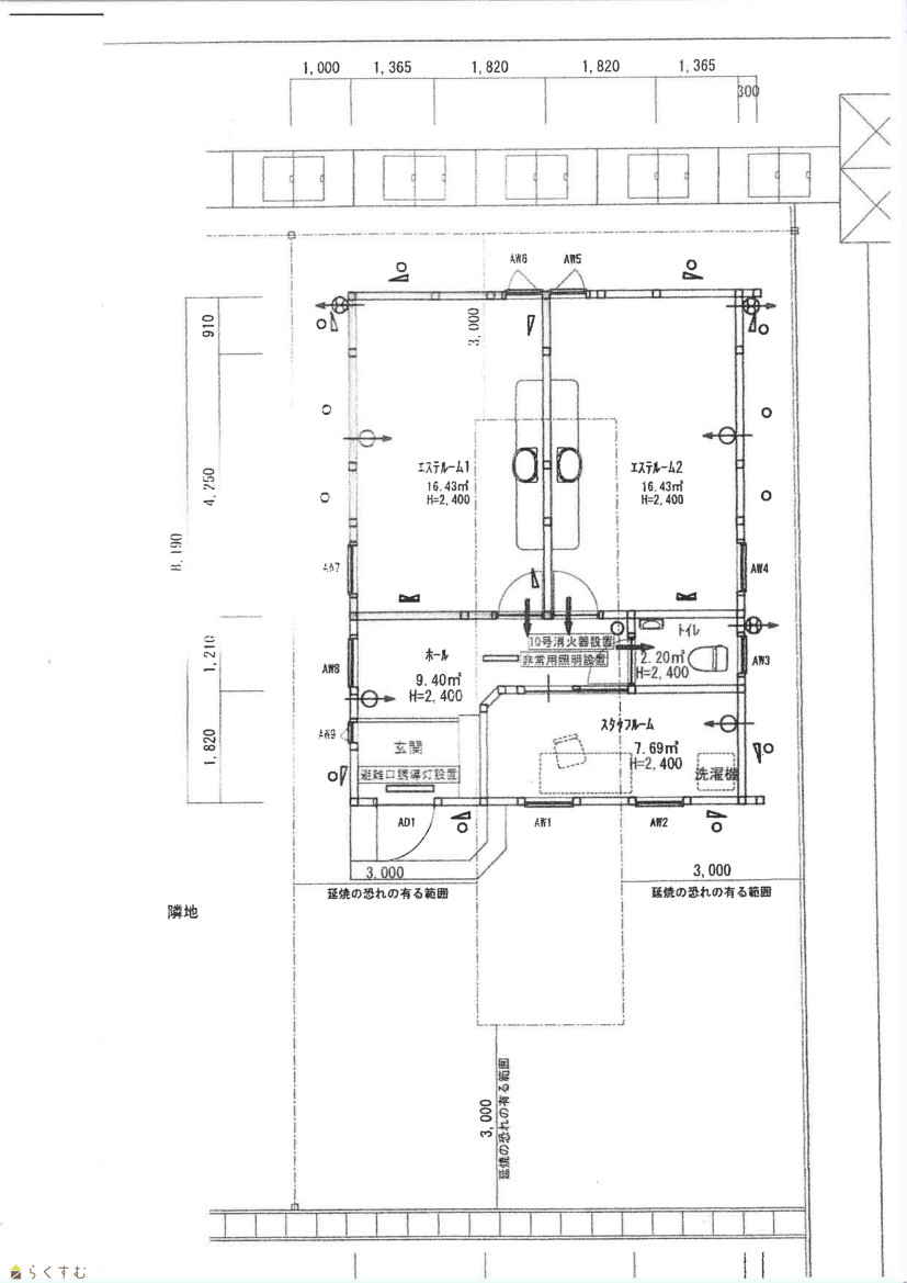
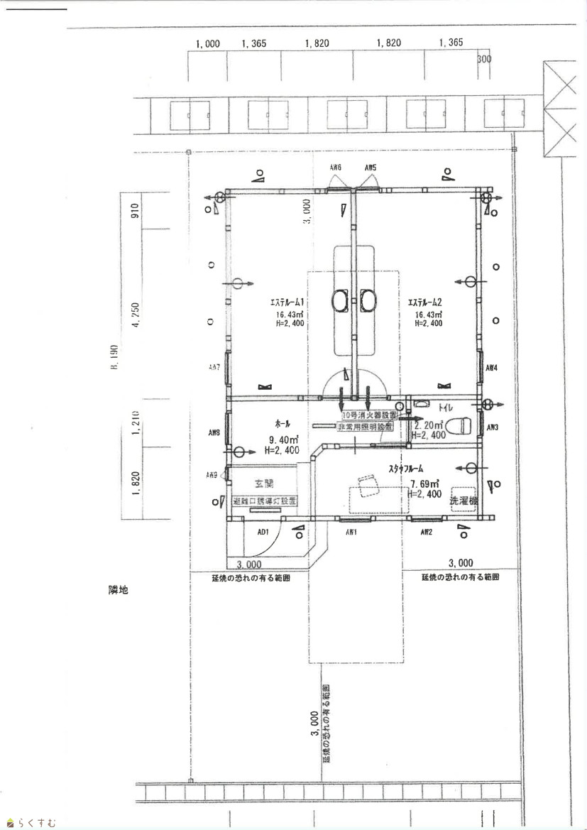
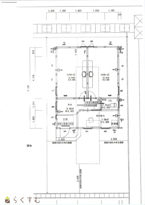
間取り
詳細画像


物件概要

物件コード 00083-200043
物件名 ビューティーライフ
交通 駅:信越線 茨目駅から徒歩15分、バス:半田コミュニティセンター前から徒歩4分
物件所在地 新潟県柏崎市半田3丁目6-14-4
物件種別 投資物件・その他
物件区分 その他
構造 木造 階建 地上1階建
建ぺい率/容積率 70%/200%
建物面積 -
土地面積 132.24㎡ /40坪
築年月 2012年12月(築13年)
入居(引き渡し)時期 随時入居(引き渡し)可
用途地域 用途の指定のない地域 地目 宅地
都市計画 非線引き都市計画区域 学校区 半田小学校(560m)・鏡が沖中学校(1,002m)
形状 - 道路 -
私道 - その他の制限 -
  • ビューティーライフ
    株式会社 アイエステート
  • この物件を問い合わせる/無料
  • TEL: 0257-24-2545

物件詳細情報

所在階/階数 - 号室 -
販売価格 15,000,000円 方位 -
表面利回り(満室想定時) - 満室想定年収 - (想定月収: - )
現行利回り - 現行年間年収 -
住戸数 -
間取り -
専有面積 - 52.17㎡ /15.78坪 バルコニー面積 -
その他面積 - 駐車場 2~3台
管理費 - 修繕積立金 -
現況 空家
仲介手数料 617,100円
利用制限 -
設備 公営水道、都市ガス、下水道、事業向け
取引態様 一般
備考 家具等は付きません。
取り扱い会社

株式会社 アイエステート

新潟県柏崎市東港町4番1号

情報登録日 2025/12/17 次回更新予定日 2026/04/05
取引条件有効期限 2026/03/31
  • ビューティーライフ
    株式会社 アイエステート
  • この物件を問い合わせる/無料
  • TEL: 0257-24-2545

この物件の地図・周辺情報・行政情報

この物件の周辺情報・行政情報を詳しく見る
【周辺情報】
物件の近くにあるコンビニや銀行・学校など、アイコン付のマップで詳しく表示できます!
【行政情報】
水道料や下水道料・ガス料金など、暮らしに関係のある情報を表示しています。
セブン-イレブン 柏崎半田3丁目店(コンビニ)まで320m
ファミリーマート 柏崎城塚店(コンビニ)まで550m
原信 岩上店(スーパー)まで970m
ピアレマート 柏崎店(スーパー)まで1050m
クスリのアオキ 半田店(ドラッグストア)まで350m

※カメラのアイコンがある場合は、マウスをポイントするとその施設の画像がご覧いただけます。


担当取扱い店舗情報

取扱い店舗画像
株式会社 アイエステート
TEL: 0257-24-2545
所在地: 新潟県柏崎市東港町4番1号
交通: 柏崎駅
営業時間: 9:00~17:00/定休日:日曜日・祝日
免許番号: 新潟県知事(3)第5068号 この会社の情報を詳しく見る
所属団体名: 新潟県宅地建物取引協会 柏崎支部
取引態様: 一般
ホームページ: http://www.aiestate.co.jp/