物件掲載企業数:301|賃貸物件:3,190件|売買物件:3,237件|今週の登録物件:227
閲覧中のブラウザ(インターネットエクスプローラー)は非推奨ブラウザです。
物件が正しく表示されなかったり、正しく検索されない場合があります。最新のブラウザ(Google Chrome・Edgeなど)にてご利用お願いいたします。
  

新潟県柏崎市半田2丁目27番17号 中古一戸建て 2LDK 28,000,000円の物件情報

2021年10月新築!オール電化の住宅です。

物件名/所在地 詳細 価格
柏崎市半田2丁目中古住宅
新潟県柏崎市半田2丁目27番17号
  • 土地面積
    :217.22㎡ /65.7坪
  • 建物面積
    :100.19㎡ /30.3坪
  • 間取り
    :2LDK
  • 築年月
    :2021年10月
28,000,000
  • 柏崎市半田2丁目中古住宅
    植木不動産株式会社
  • この物件を問い合わせる/無料
  • TEL: 0257-24-5506

物件画像

外観 間取り
物件画像
※画像クリックで拡大表示
外観写真
物件画像
※画像クリックで拡大表示
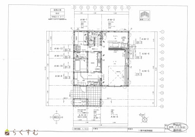
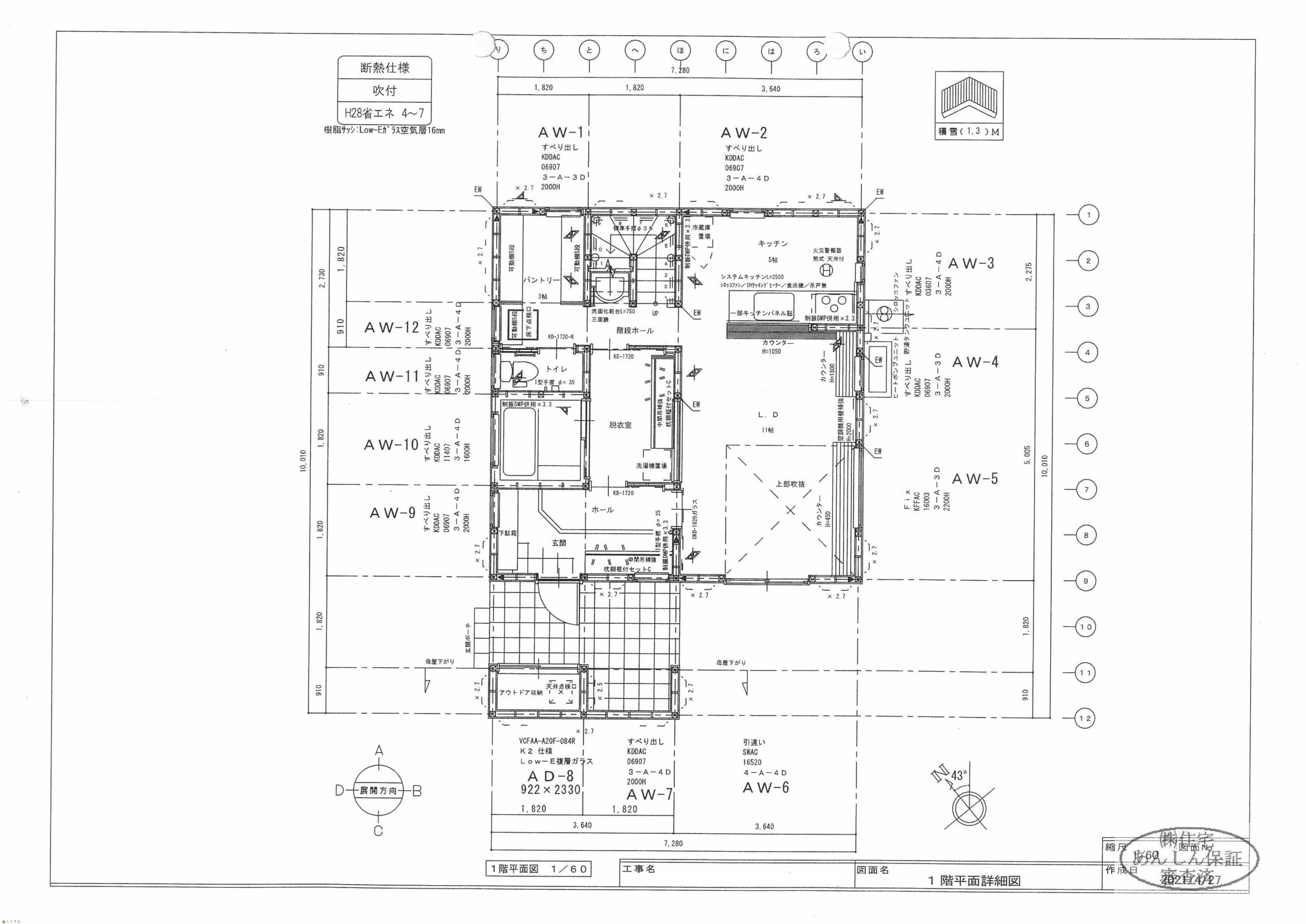
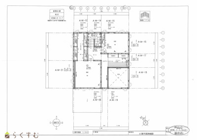
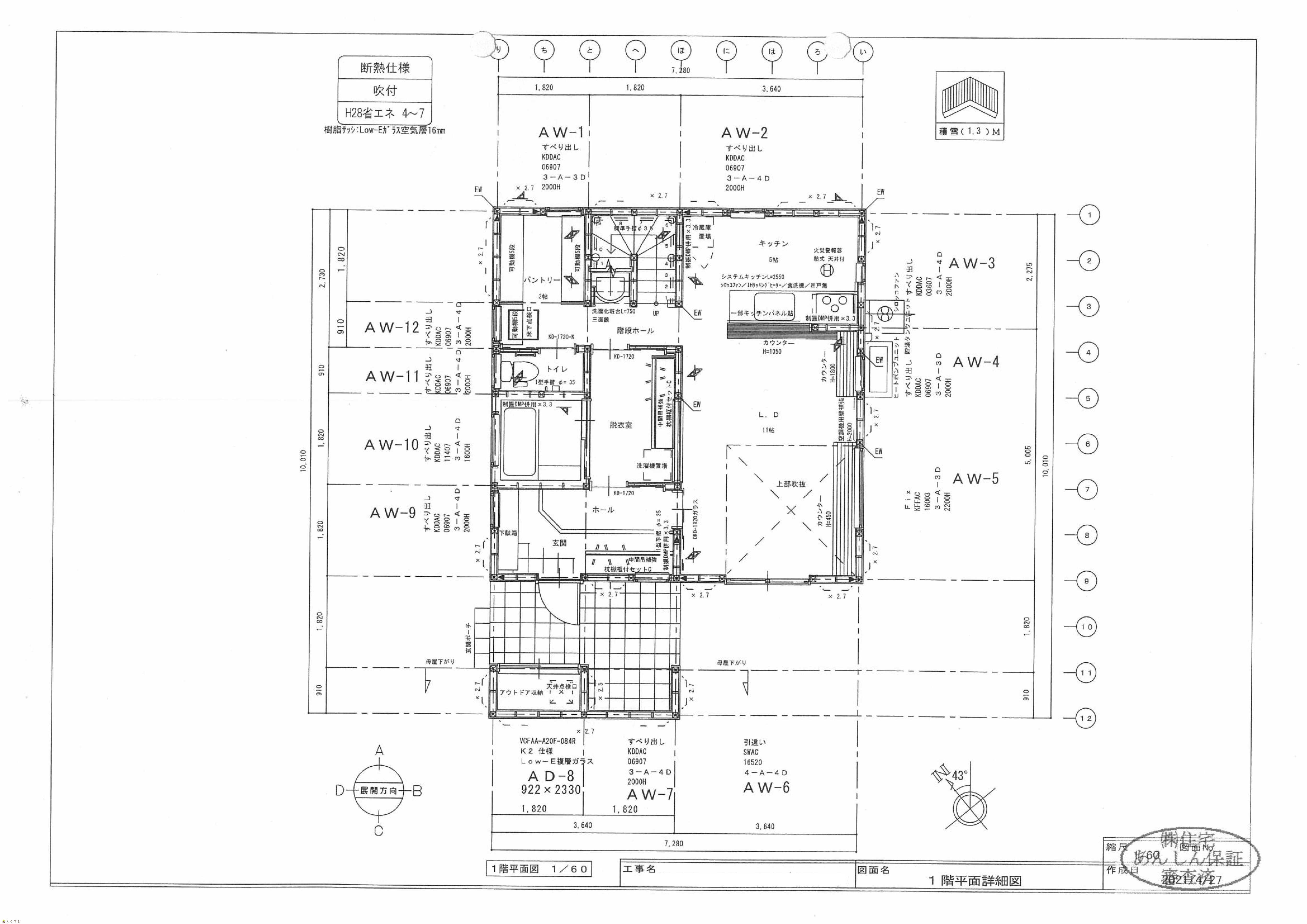
1F 間取り
詳細画像


物件概要

2021年10月新築!オール電化の住宅です。
物件コード 00082-200111
物件名 柏崎市半田2丁目中古住宅
交通 駅:信越線 茨目駅から徒歩12分、バス:半田西から徒歩3分
物件所在地 新潟県柏崎市半田2丁目27番17号
物件種別 中古一戸建て
構造 木造 階建 地上2階建
建ぺい率/容積率 70%/200%
建物面積 1階 54.65㎡/ 2階 45.54㎡/ 計 100.19㎡ /30.3坪
土地面積 217.22㎡ /65.7坪
築年月 2021年10月(築4年)
入居(引き渡し)時期 相談
用途地域 用途の指定のない地域 地目 宅地  (現状:宅地)
都市計画 非線引き都市計画区域 学校区 半田小学校(511m)・鏡が沖中学校(1,677m)
形状 間口 13.11m × 奥行 16.45m 道路 柏崎9-171号線
私道 - その他の制限 -
  • 柏崎市半田2丁目中古住宅
    植木不動産株式会社
  • この物件を問い合わせる/無料
  • TEL: 0257-24-5506

物件詳細情報

所在階/階数 - 号室 -
販売価格 28,000,000円 方位 南東
間取り 2LDK
専有面積 - バルコニー面積 -
その他面積 - 駐車場 -
管理費 - 修繕積立金 -
現況 居住中
仲介手数料 990,000円
利用制限 -
設備 閑静な住宅街、長期優良住宅、新築時図面あり、全室フローリング、築10年以内、駐車3台以上可能、南向き、TVインターホン、複層ガラス、システムキッチン、カウンターキッチン、IHクッキングヒーター、追いだき機能付き、バス1坪以上、温水洗浄便座、エアコンあり、オール電化、上水道、下水道、ウォークインクローゼット
取引態様 一般
備考 ・内見ご希望の際は事前にご連絡ください。
・公簿面積売買、契約不適合責任免責
取り扱い会社

植木不動産株式会社

新潟県柏崎市新橋3番9号

情報登録日 2023/08/03 次回更新予定日 2026/05/14
取引条件有効期限 2024/08/03
  • 柏崎市半田2丁目中古住宅
    植木不動産株式会社
  • この物件を問い合わせる/無料
  • TEL: 0257-24-5506

この物件の地図・周辺情報・行政情報

この物件の周辺情報・行政情報を詳しく見る
【周辺情報】
物件の近くにあるコンビニや銀行・学校など、アイコン付のマップで詳しく表示できます!
【行政情報】
水道料や下水道料・ガス料金など、暮らしに関係のある情報を表示しています。

担当取扱い店舗情報

取扱い店舗画像
植木不動産株式会社
TEL: 0257-24-5506
所在地: 新潟県柏崎市新橋3番9号
交通: 柏崎駅 徒歩約9分(700m)
営業時間: 8:30~17:30/定休日:土日祝日(3月は土曜も営業中!)
免許番号: 国土交通大臣(12)第2870号 この会社の情報を詳しく見る
所属団体名: 新潟県宅地建物取引協会 柏崎支部
取引態様: 一般
ホームページ: https://www.uekifudousan.co.jp/