物件掲載企業数:298|賃貸物件:2,835件|売買物件:3,239件|今週の登録物件:339
閲覧中のブラウザ(インターネットエクスプローラー)は非推奨ブラウザです。
物件が正しく表示されなかったり、正しく検索されない場合があります。最新のブラウザ(Google Chrome・Edgeなど)にてご利用お願いいたします。
  

新潟県長岡市陽光台4丁目 新築一戸建て 4LDK 39,900,000円の物件情報

≪事前の見学予約でQUOカード3,000円分プレゼント!≫◎他区画より広めの74坪区画割り ◎高天井&ハイサッシで開放的な18帖LDK ◎木目天井と間接照明が柔らかな雰囲気を演出 ◎家事らくアイテム『かん太くん』も設置済み! ◎おしゃれなワイドカウンター洗面化粧台

物件名/所在地 詳細 価格
≪ミサワホームの分譲住宅≫ 丘陵公園分譲D棟
新潟県長岡市陽光台4丁目
  • 土地面積
    :246.14㎡ /74.45坪
  • 建物面積
    :108.47㎡ /32.81坪
  • 間取り
    :4LDK
  • 築年月
    :2024年10月
39,900,000
  • ≪ミサワホームの分譲住宅≫ 丘陵公園分譲D棟
    ミサワホーム北越 株式会社
  • この物件を問い合わせる/無料
  • TEL: 0120-486-330

物件画像

外観 間取り
物件画像
※画像クリックで拡大表示
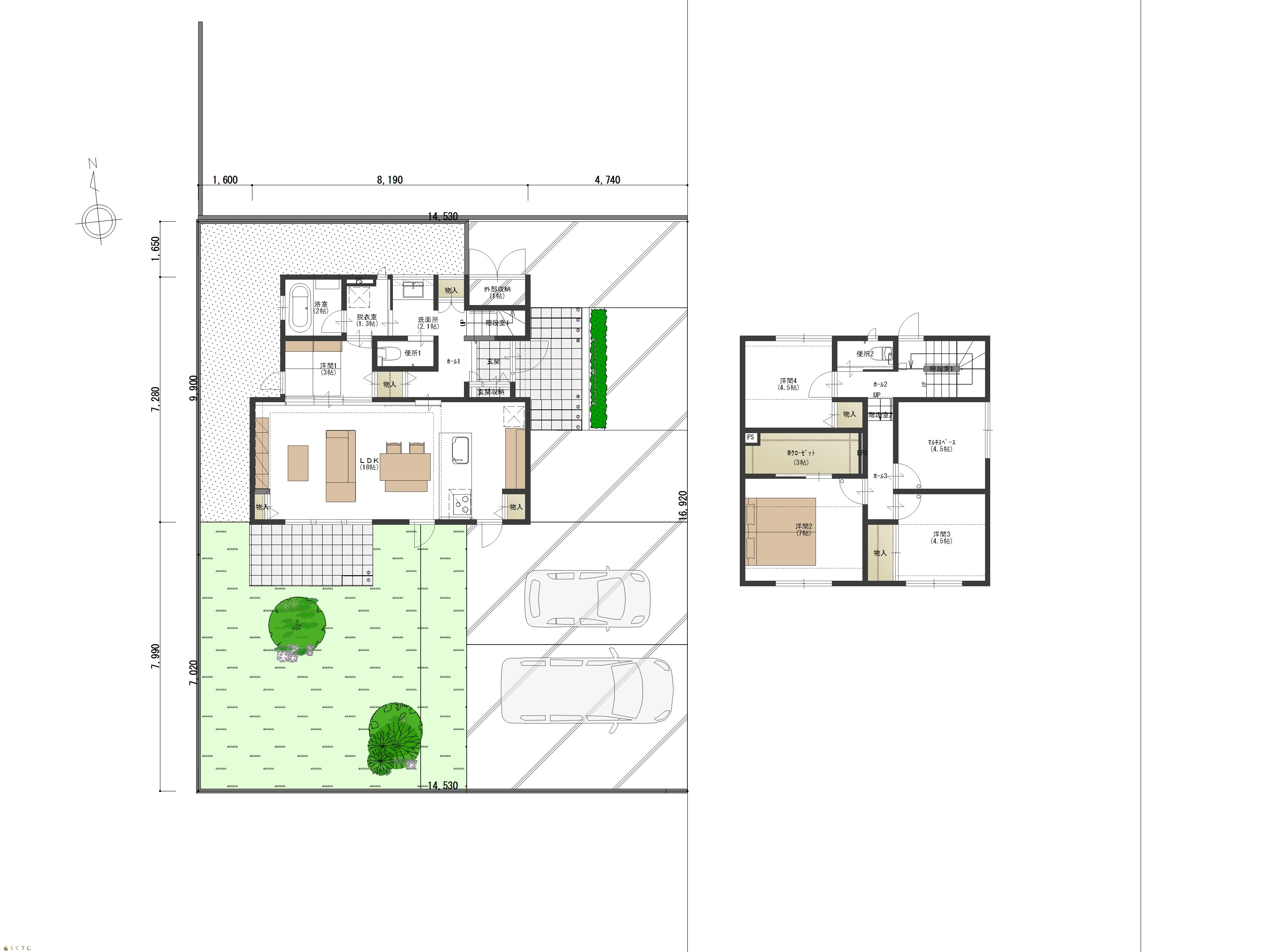
ゆったり敷地は74.45坪
物件画像
※画像クリックで拡大表示
間取図
詳細画像


物件概要

自社物件につきキャンペーン中!
物件コード 00080-200327
物件名 ≪ミサワホームの分譲住宅≫ 丘陵公園分譲D棟
交通 駅:信越線 来迎寺駅から徒歩101分、バス:陽光台3丁目から徒歩4分
物件所在地 新潟県長岡市陽光台4丁目
物件種別 新築一戸建て
構造 木質パネル接着工法 階建 地上2階建
建ぺい率/容積率 60%/200%
建物面積 1階 55.48㎡/ 2階 52.99㎡/ 計 108.47㎡ /32.81坪
土地面積 246.14㎡ /74.45坪
築年月 2024年10月(築1年)
入居(引き渡し)時期 随時入居(引き渡し)可
用途地域 第1種中高層住居専用地域 地目 宅地
都市計画 市街化区域 学校区 青葉台小学校(1,223m)・青葉台中学校(1,794m)
形状 間口 16.93m × 奥行 14.53m 道路 東側8.0m 消雪設備あり
私道 - その他の制限 -
  • ≪ミサワホームの分譲住宅≫ 丘陵公園分譲D棟
    ミサワホーム北越 株式会社
  • この物件を問い合わせる/無料
  • TEL: 0120-486-330

物件詳細情報

所在階/階数 - 号室 -
販売価格 39,900,000円 方位
間取り 4LDK (和室:3畳) (洋室:4.5、4.5、5、7.5)
LDK18
専有面積 - バルコニー面積 -
その他面積 - 駐車場 -
管理費 - 修繕積立金 -
現況 -
仲介手数料 なし
消雪設備負担金 250,000円
年会費20,000/年
利用制限 -
設備 整形地、前面道路6m以上、日当り良好、閑静な住宅街、長期優良住宅、設計住宅性能評価付き、耐震構造、BELS/省エネ基準適合認定建物、瑕疵担保保険付き、建物確認・完了検査済証あり、LDK15畳以上、全室フローリング、天井高2.5m以上、駐車場2台以上、駐車場3台以上、南向き、庭あり、TVインターホン、複層ガラス、ディンプルキー、システムキッチン、カウンターキッチン、IHクッキングヒーター、浄水器、食器洗浄乾燥機、3口コンロ、追いだき機能付き、バス1坪以上、温水洗浄便座、シャワー付き洗面台、エアコン、床暖房、24時間換気システム、高気密高断熱住宅、ウッドデッキ・テラス、都市ガス、上水道、下水道、電気、ウォークインクローゼット、全居室収納あり、床下収納、シューズBOX、BS端子、LAN端子、照明器具付き、即引き渡し可能、バリアフリー
取引態様 売主
備考 <QUOカードプレゼントに関しまして>
※1家族1回限り
※将来的に住まいづくりを検討の方限定で、未成年・学生の方は除きます
※特典のみの目当てで来場された方には特典をお渡しできない場合がござます
取り扱い会社

ミサワホーム北越 株式会社

新潟県長岡市古正寺2丁目71番地

情報登録日 2026/03/08 次回更新予定日 2026/04/02
取引条件有効期限 2026/03/31
  • ≪ミサワホームの分譲住宅≫ 丘陵公園分譲D棟
    ミサワホーム北越 株式会社
  • この物件を問い合わせる/無料
  • TEL: 0120-486-330

この物件の地図・周辺情報・行政情報

この物件の周辺情報・行政情報を詳しく見る
【周辺情報】
物件の近くにあるコンビニや銀行・学校など、アイコン付のマップで詳しく表示できます!
【行政情報】
水道料や下水道料・ガス料金など、暮らしに関係のある情報を表示しています。

担当取扱い店舗情報

取扱い店舗画像
ミサワホーム北越 株式会社
TEL: 0120-486-330
所在地: 新潟県長岡市古正寺2丁目71番地
交通: 長岡駅
営業時間: 9:00~18:00/定休日:火・水
免許番号: 国土交通大臣(3)8557号 この会社の情報を詳しく見る
所属団体名: 新潟県宅地建物取引協会 長岡支部
取引態様: 売主
ホームページ: http://hokuetsu.misawa.co.jp