物件掲載企業数:301|賃貸物件:3,172件|売買物件:3,243件|今週の登録物件:159
閲覧中のブラウザ(インターネットエクスプローラー)は非推奨ブラウザです。
物件が正しく表示されなかったり、正しく検索されない場合があります。最新のブラウザ(Google Chrome・Edgeなど)にてご利用お願いいたします。
  

新潟県見附市学校町1丁目477-6 中古一戸建て 2K 3,800,000円の物件情報

※商談中

物件名/所在地 詳細 価格
見附市学校町 店舗
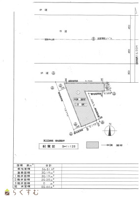
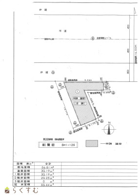
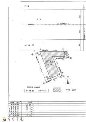
新潟県見附市学校町1丁目477-6
  • 土地面積
    :131.51㎡ /39.78坪
  • 建物面積
    :50.44㎡ /15.25坪
  • 間取り
    :2K
  • 築年月
    :1998年1月
3,800,000
  • 見附市学校町 店舗
    株式会社 山六木材
  • この物件を問い合わせる/無料
  • TEL: 0258-78-4413

物件画像

外観 間取り
物件画像
※画像クリックで拡大表示
外観
物件画像
※画像クリックで拡大表示
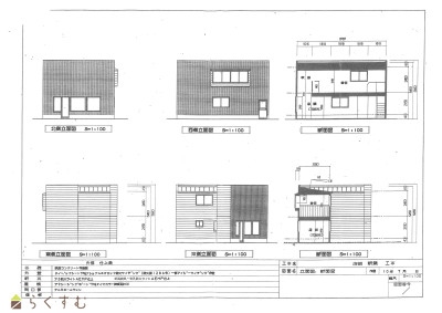
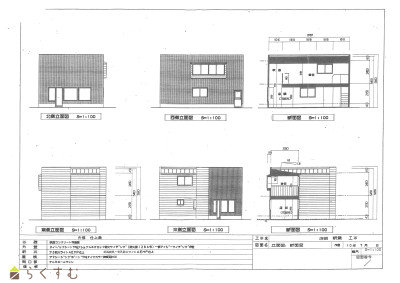
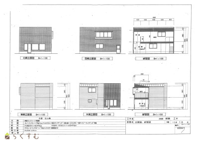
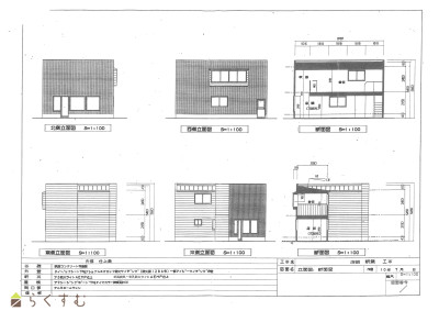
建物平面図
詳細画像


物件概要

物件コード 00063-200096
物件名 見附市学校町 店舗
交通 駅:信越線 見附駅から徒歩20分、バス:見附保育園前から徒歩2分
物件所在地 新潟県見附市学校町1丁目477-6
物件種別 中古一戸建て
構造 木造 階建 地上2階建
建ぺい率/容積率 60%/200%
建物面積 1階 30.19㎡/ 2階 20.25㎡/ 計 50.44㎡ /15.25坪
土地面積 131.51㎡ /39.78坪
築年月 1998年1月(築28年)
入居(引き渡し)時期 相談
用途地域 準工業地域 地目 宅地
都市計画 市街化区域 学校区 見附小学校(395m)・見附中学校(1,277m)
形状 間口 10m 道路 北側:市道
私道 - その他の制限 -
  • 見附市学校町 店舗
    株式会社 山六木材
  • この物件を問い合わせる/無料
  • TEL: 0258-78-4413

物件詳細情報

所在階/階数 - 号室 -
販売価格 3,800,000円 方位 -
間取り 2K
専有面積 - バルコニー面積 -
その他面積 - 駐車場 -
管理費 - 修繕積立金 -
現況 空家
仲介手数料 330,000円
利用制限 -
設備 日当り良好、駐車3台以上可能、都市ガス、上水道、下水道、田舎暮らし、事業向け
取引態様 一般
備考 駐車場3台可(カーポート)
未登記建物
現況有姿取引
土地は4筆
取り扱い会社

株式会社 山六木材

新潟県三島郡出雲崎町松本99-1

情報登録日 2026/04/07 次回更新予定日 2026/05/18
取引条件有効期限 2026/06/08
  • 見附市学校町 店舗
    株式会社 山六木材
  • この物件を問い合わせる/無料
  • TEL: 0258-78-4413

この物件の地図・周辺情報・行政情報

この物件の周辺情報・行政情報を詳しく見る
【周辺情報】
物件の近くにあるコンビニや銀行・学校など、アイコン付のマップで詳しく表示できます!
【行政情報】
水道料や下水道料・ガス料金など、暮らしに関係のある情報を表示しています。
ローソン 見附学校町店(コンビニ)まで190m
マルイ 見附店(スーパー)まで810m
クスリのアオキ 本所店(ドラッグストア)まで600m
見附市立病院(病院)まで360m
JAえちご中越 見附東支店(銀行)まで760m
見附郵便局(郵便局)まで280m

※カメラのアイコンがある場合は、マウスをポイントするとその施設の画像がご覧いただけます。


担当取扱い店舗情報

取扱い店舗画像
株式会社 山六木材
TEL: 0258-78-4413
所在地: 新潟県三島郡出雲崎町松本99-1
交通: JR 出雲崎駅
営業時間: 8:15~17:30/定休日:水曜・年末年始休暇、GW、夏季休暇
免許番号: 新潟県知事(3)第5114号 この会社の情報を詳しく見る
所属団体名: 新潟県宅地建物取引協会 長岡支部
取引態様: 一般
ホームページ: https://yama-roku-moku.com/