物件掲載企業数:301|賃貸物件:3,194件|売買物件:3,237件|今週の登録物件:240
閲覧中のブラウザ(インターネットエクスプローラー)は非推奨ブラウザです。
物件が正しく表示されなかったり、正しく検索されない場合があります。最新のブラウザ(Google Chrome・Edgeなど)にてご利用お願いいたします。
  

新潟県長岡市古正寺3丁目127番 投資物件・その他 14,000,000円の物件情報

希少な分譲タイプの事務所です。駐車場1台確保済み!

物件名/所在地 詳細 価格
表面利回り
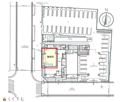
サーパス古正寺中央公園 事務所区画
102号室
新潟県長岡市古正寺3丁目127番
  • 土地面積
    :1,550.47㎡ /469.01坪
  • 建ぺい率
    :70%
  • 容積率
    :200%
14,000,000
-
  • サーパス古正寺中央公園 事務所区画
    株式会社 高野不動産販売
  • この物件を問い合わせる/無料
  • TEL: 0258-33-7711

物件画像

外観 間取り
物件画像
※画像クリックで拡大表示
外観
物件画像
※画像クリックで拡大表示
間取り
詳細画像


物件概要

恵まれた住環境の中の事務所です。士業の方におすすめ☆
物件コード 00041-200978
物件名 サーパス古正寺中央公園 事務所区画
交通 駅:上越新幹線 長岡駅から徒歩45分、バス:寺島から徒歩4分
物件所在地 新潟県長岡市古正寺3丁目127番
物件種別 投資物件・その他
物件区分 マンション(区分所有)
構造 鉄筋コン 階建 地上9階建
建ぺい率/容積率 70%/200%
建物面積 -
土地面積 1,550.47㎡ /469.01坪
築年月 2025年1月(築1年)
入居(引き渡し)時期 相談
用途地域 第2種住居地域 地目 宅地  (現状:宅地)
都市計画 市街化区域 学校区 大島小学校(1,187m)・大島中学校(900m)
形状 - 道路 -
私道 - その他の制限 -
  • サーパス古正寺中央公園 事務所区画
    株式会社 高野不動産販売
  • この物件を問い合わせる/無料
  • TEL: 0258-33-7711

物件詳細情報

所在階/階数 1階/9階 号室 102号室
販売価格 14,000,000円 方位 -
表面利回り(満室想定時) - 満室想定年収 - (想定月収: - )
現行利回り - 現行年間年収 -
住戸数 1
間取り -
専有面積 63.02㎡ /19.06坪 ~ 63.02㎡ /19.06坪 バルコニー面積 -
その他面積 - 駐車場 6,000円/月
管理費 13,700円 修繕積立金 6,600円
現況 空家
仲介手数料 491,436円
利用制限 ペット:不可、楽器:不可
設備 角地、エレベーター、駐車場(近隣含む)、公営水道、都市ガス、下水道、事業向け
取引態様 一般
備考 飲食店や物販等の店舗利用不可。
修繕積立基金660,000円(購入時一括支払い)
古正寺町内会運営負担金年額5,000円の支払いが必要です。 
取り扱い会社

株式会社 高野不動産販売

新潟県長岡市柏町1丁目4-33

情報登録日 2026/03/07 次回更新予定日 2026/05/13
取引条件有効期限 2026/04/28
  • サーパス古正寺中央公園 事務所区画
    株式会社 高野不動産販売
  • この物件を問い合わせる/無料
  • TEL: 0258-33-7711

この物件の地図・周辺情報・行政情報

この物件の周辺情報・行政情報を詳しく見る
【周辺情報】
物件の近くにあるコンビニや銀行・学校など、アイコン付のマップで詳しく表示できます!
【行政情報】
水道料や下水道料・ガス料金など、暮らしに関係のある情報を表示しています。
セブン-イレブン 長岡寺島町店(コンビニ)まで380m
原信 寺島店(スーパー)まで430m
ウエルシア長岡古正寺店 (調剤薬局)(ドラッグストア)まで230m

※カメラのアイコンがある場合は、マウスをポイントするとその施設の画像がご覧いただけます。


担当取扱い店舗情報

取扱い店舗画像
株式会社 高野不動産販売
TEL: 0258-33-7711
所在地: 新潟県長岡市柏町1丁目4-33
交通: 長岡駅
営業時間: 9:00~17:30/定休日:土曜日・日曜日・祝日・お盆・年末年始
免許番号: 新潟県知事(1)第5568号 この会社の情報を詳しく見る
所属団体名: (公社)新潟県宅地建物取引業協会,(公社)首都圏不動産公正取引協議会,(公財)日本賃貸住宅管理協会
取引態様: 一般
ホームページ: https://www.tknf.co.jp