物件掲載企業数:301|賃貸物件:3,194件|売買物件:3,238件|今週の登録物件:241
閲覧中のブラウザ(インターネットエクスプローラー)は非推奨ブラウザです。
物件が正しく表示されなかったり、正しく検索されない場合があります。最新のブラウザ(Google Chrome・Edgeなど)にてご利用お願いいたします。
  

新潟県長岡市旭町2-3-7チサンマンション旭町 401 中古マンション 2DK 2,000,000円の物件情報

長岡市駅から徒歩約10分の利便性のよい立地です。

物件名/所在地 詳細 価格
チサンマンション旭町
401号室
新潟県長岡市旭町2-3-7チサンマンション旭町 401
  • 専有面積
    :45.73㎡ /13.83坪
  • 間取り
    :2DK
  • 築年月
    :1980年12月
2,000,000
  • チサンマンション旭町
    髙頭不動産 株式会社
  • この物件を問い合わせる/無料
  • TEL: 0120-1818-27

物件画像

外観 間取り
物件画像
※画像クリックで拡大表示
外観
物件画像
※画像クリックで拡大表示
間取り
詳細画像


物件概要

物件コード 00040-201188
物件名 チサンマンション旭町
交通 駅:信越線 長岡駅から徒歩10分
物件所在地 新潟県長岡市旭町2-3-7チサンマンション旭町 401
物件種別 中古マンション
構造 鉄筋コン 階建 地上6階建
建ぺい率/容積率 80%/400%
建物面積 計 1,819.72㎡ /550.46坪
土地面積 463.5㎡ /140.2坪
築年月 1980年12月(築45年)
入居(引き渡し)時期 随時入居(引き渡し)可
用途地域 商業地域 地目 宅地  (現状:宅地)
都市計画 市街化区域 学校区 阪之上小学校(733m)・南中学校(473m)
形状 - 道路 公道
私道 - その他の制限 -
  • チサンマンション旭町
    髙頭不動産 株式会社
  • この物件を問い合わせる/無料
  • TEL: 0120-1818-27

物件詳細情報

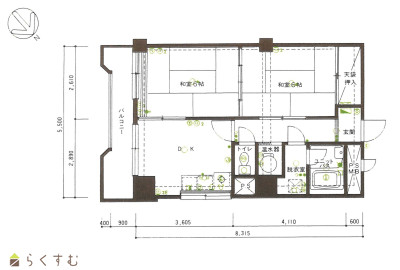
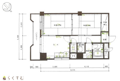
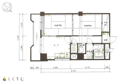
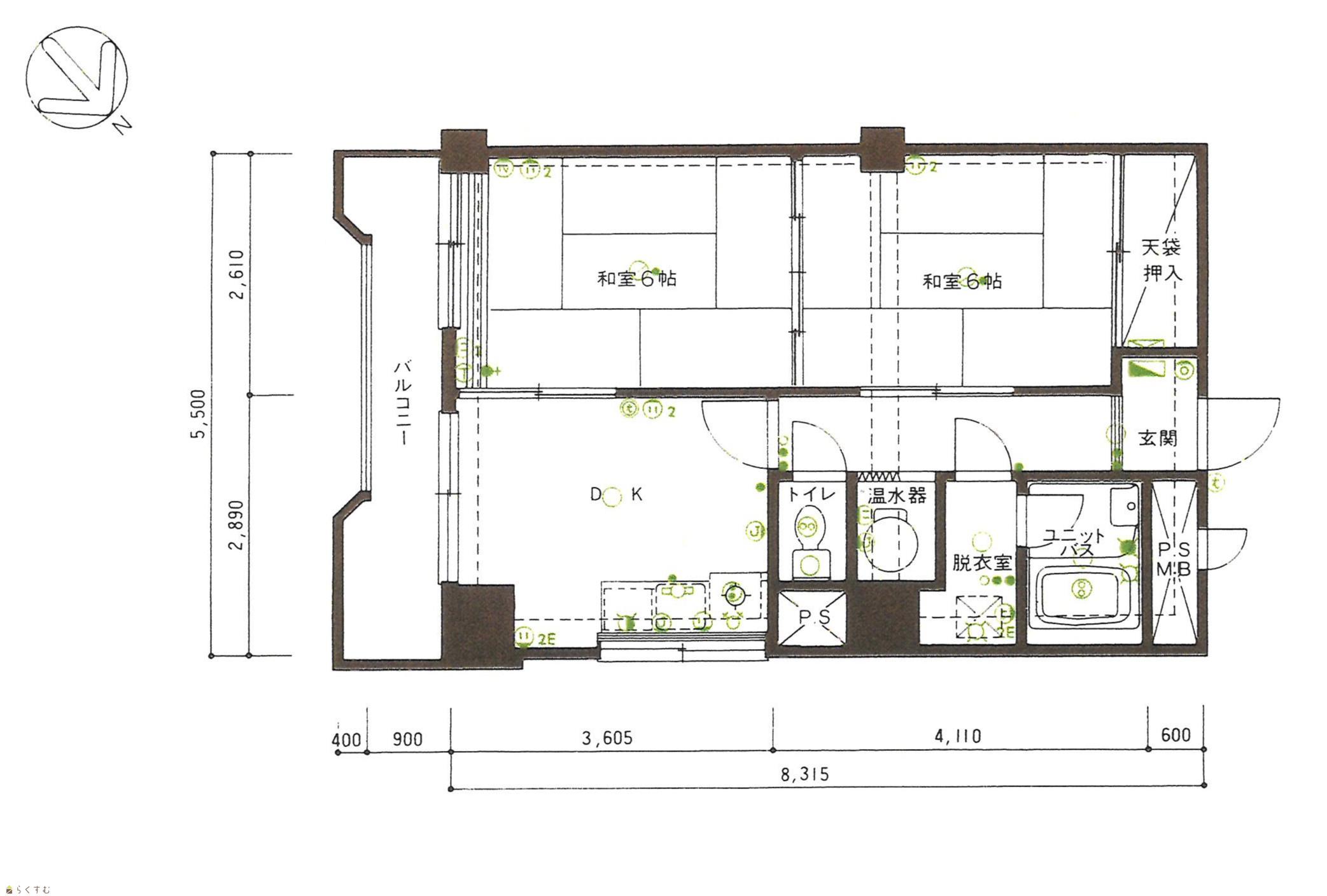
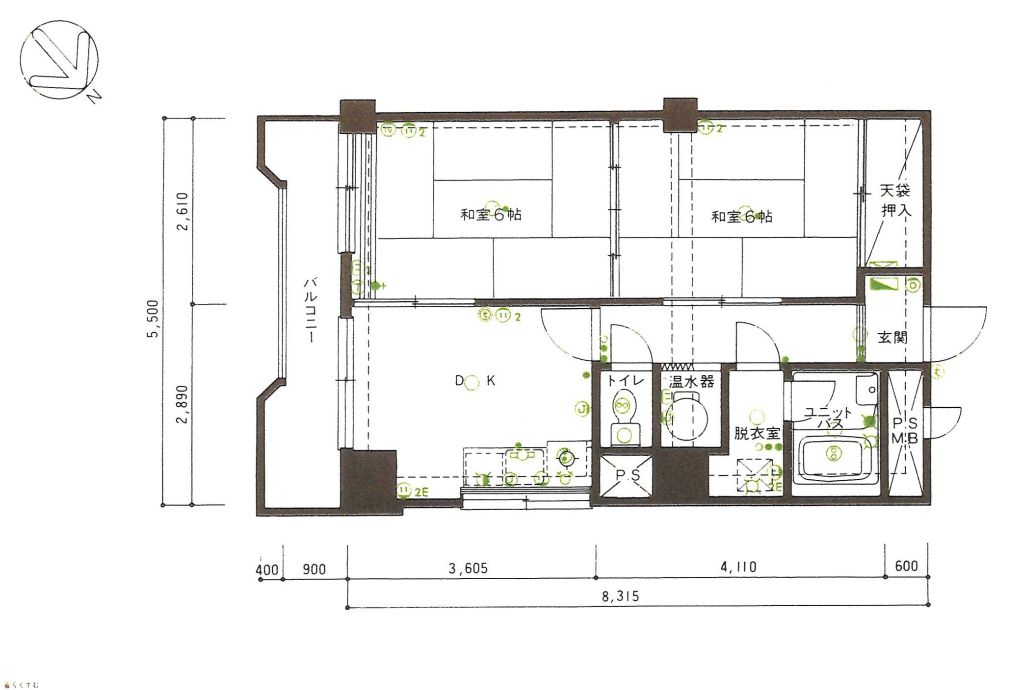
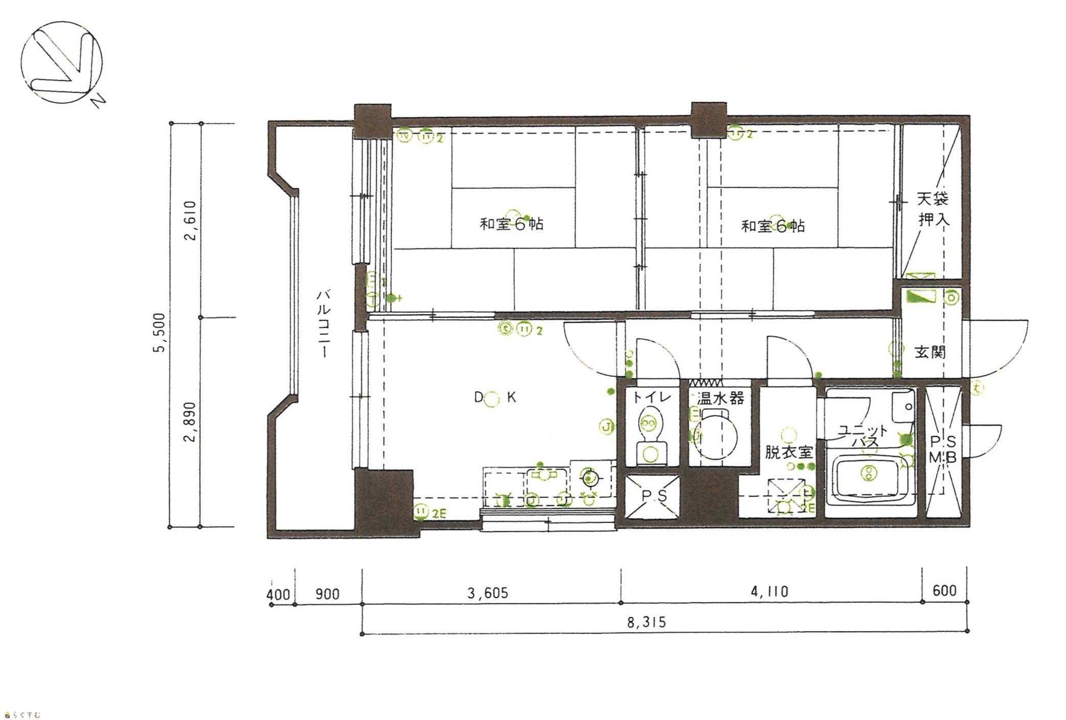
所在階/階数 4階/6階 号室 401号室
販売価格 2,000,000円 方位 南東
間取り 2DK (和室:6畳、6畳)
5.5
専有面積 45.73㎡ /13.83坪 バルコニー面積 5.41㎡ /1.63坪
その他面積 - 駐車場 -
管理費 9,400円 修繕積立金 11,300円
現況 空家
仲介手数料 330,000円
利用制限 ペット:不可、楽器:不可
設備 角部屋、2階以上、日当り良好、閑静な住宅街、最寄駅近く、エレベーター、和室あり、南向き、都市ガス、公営水道、下水道、即入居可能
取引態様 一般
備考 -
取り扱い会社

髙頭不動産 株式会社

新潟県長岡市千歳1-3-25

情報登録日 2026/01/07 次回更新予定日 2026/05/13
取引条件有効期限 2026/04/06
  • チサンマンション旭町
    髙頭不動産 株式会社
  • この物件を問い合わせる/無料
  • TEL: 0120-1818-27

この物件の地図・周辺情報・行政情報

この物件の周辺情報・行政情報を詳しく見る
【周辺情報】
物件の近くにあるコンビニや銀行・学校など、アイコン付のマップで詳しく表示できます!
【行政情報】
水道料や下水道料・ガス料金など、暮らしに関係のある情報を表示しています。

担当取扱い店舗情報

取扱い店舗画像
髙頭不動産 株式会社
TEL: 0120-1818-27
所在地: 新潟県長岡市千歳1-3-25
交通: 長岡駅
営業時間: 8時30分~17時30分(大手支店は9時~18時)/定休日:本社:土日祝日(事前予約での対応可能)、支店:日曜祝日第5土曜(毎年2月下旬から3月は休みなし)
免許番号: 新潟県知事(17)第191号 この会社の情報を詳しく見る
所属団体名: 新潟県宅地建物取引協会 長岡支部
取引態様: 一般
ホームページ: http://www.takato-f.com