物件掲載企業数:301|賃貸物件:3,191件|売買物件:3,236件|今週の登録物件:238
閲覧中のブラウザ(インターネットエクスプローラー)は非推奨ブラウザです。
物件が正しく表示されなかったり、正しく検索されない場合があります。最新のブラウザ(Google Chrome・Edgeなど)にてご利用お願いいたします。
  

新潟県長岡市石動町463-1 中古一戸建て 6LDK 19,800,000円の物件情報

広い敷地・庭付き住宅です♪ 状態の良い住宅です。

物件名/所在地 詳細 価格
石動町住宅
新潟県長岡市石動町463-1
  • 土地面積
    :776.08㎡ /234.76坪
  • 建物面積
    :166.75㎡ /50.44坪
  • 間取り
    :6LDK
  • 築年月
    :2006年8月
19,800,000
  • 石動町住宅
    髙頭不動産 株式会社
  • この物件を問い合わせる/無料
  • TEL: 0120-1818-27

物件画像

外観 間取り
物件画像
※画像クリックで拡大表示
外観
物件画像
※画像クリックで拡大表示
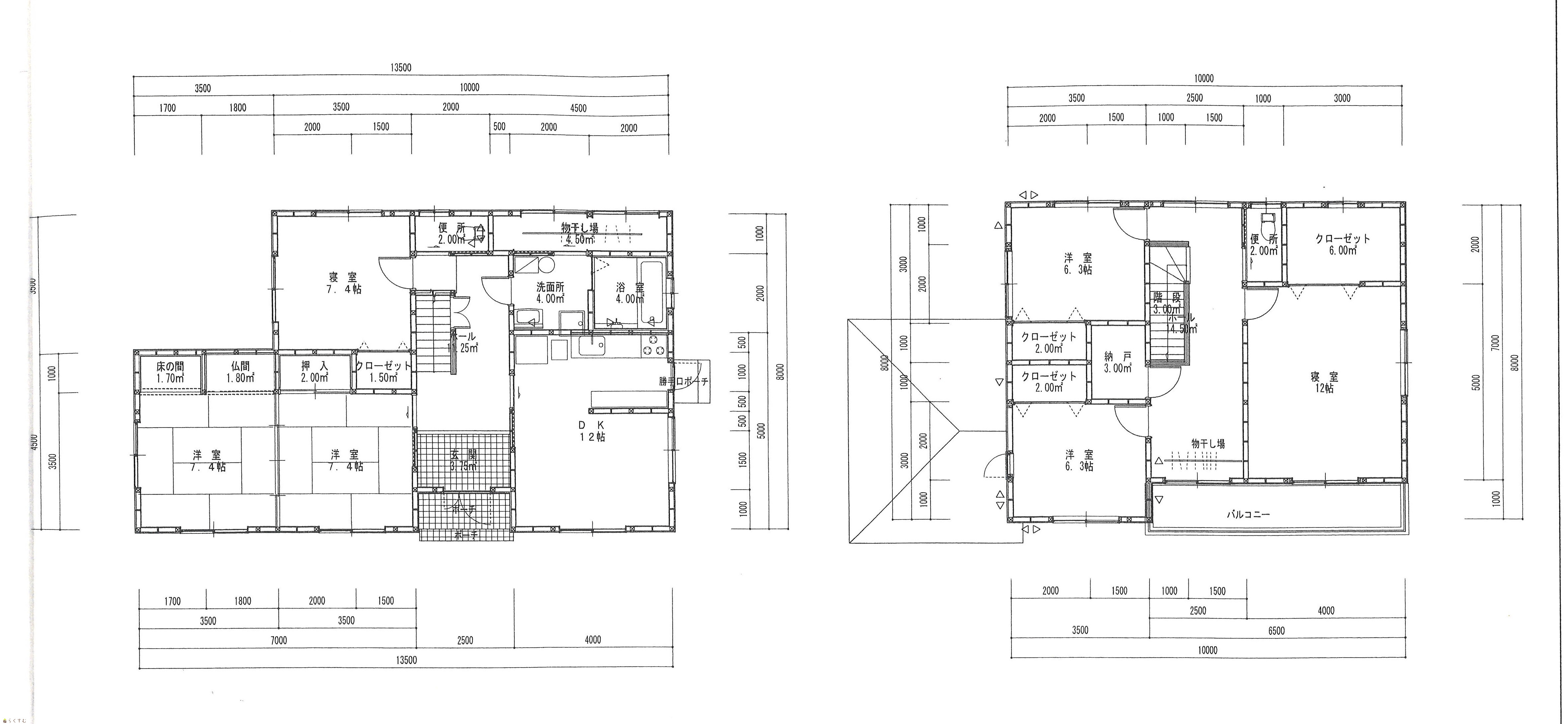
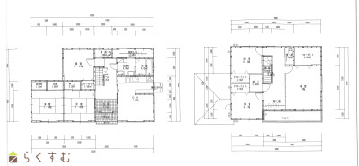
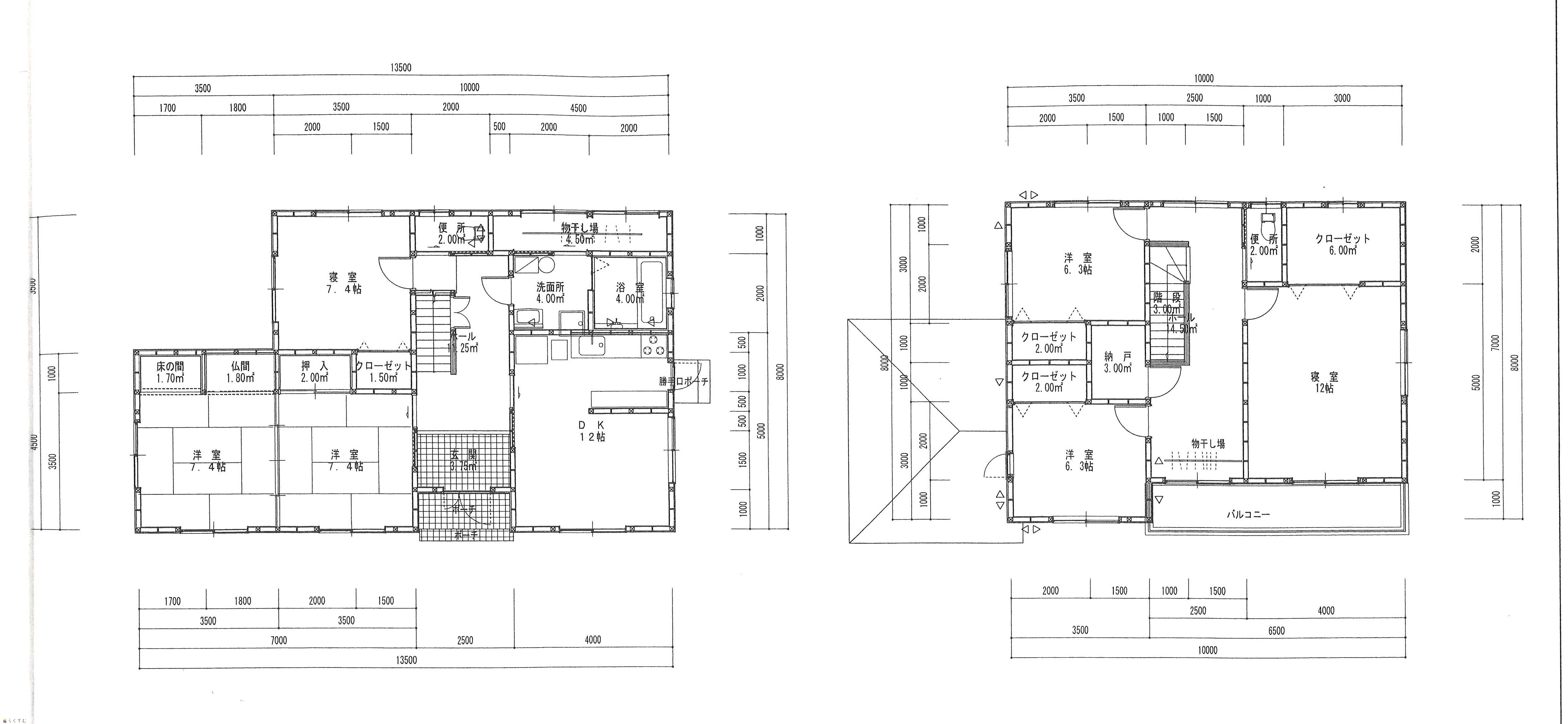
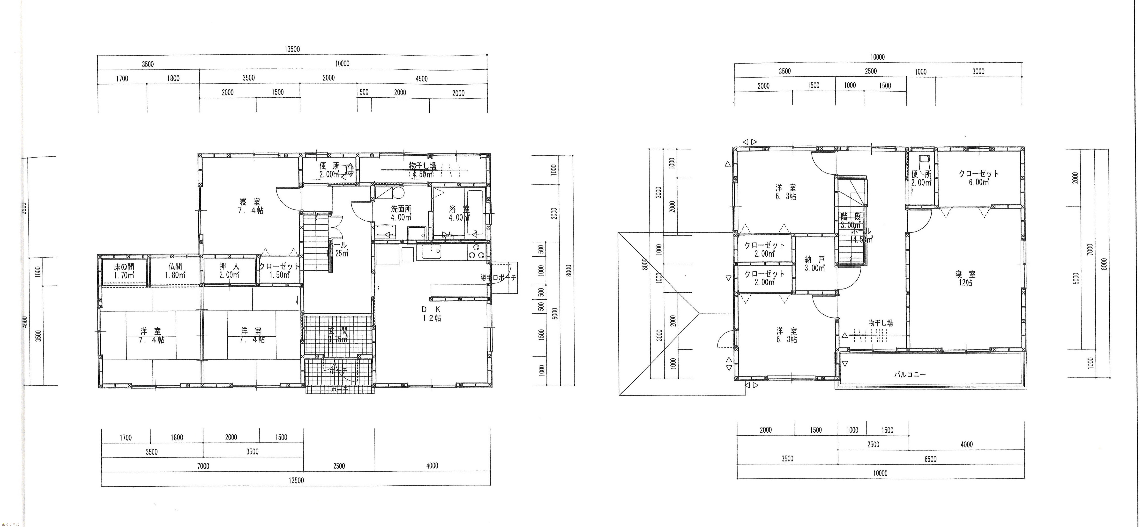
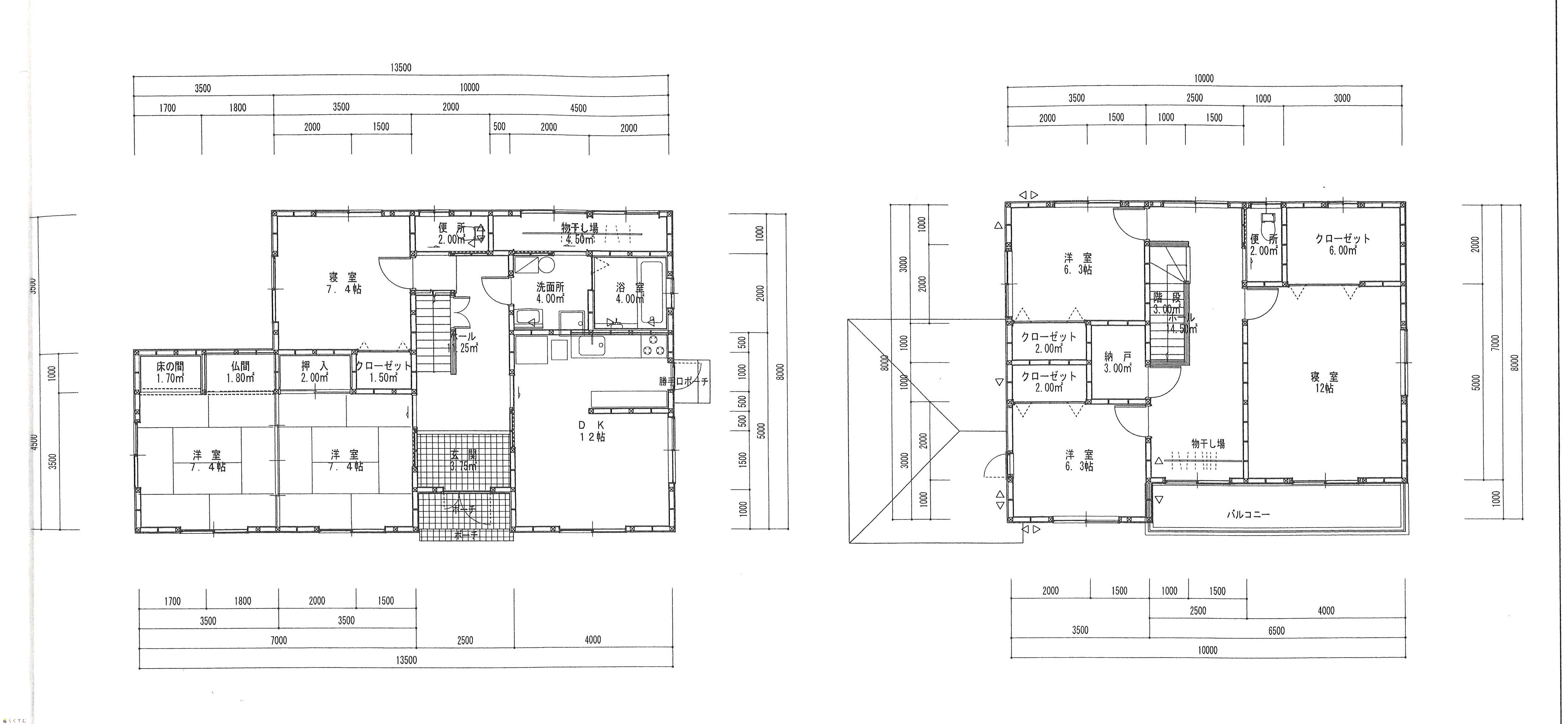
間取り
詳細画像


物件概要

物件コード 00040-201160
物件名 石動町住宅
交通 駅:上越新幹線 長岡駅から徒歩78分、バス:日越団地から徒歩6分
物件所在地 新潟県長岡市石動町463-1
物件種別 中古一戸建て
構造 木造 階建 地上2階建
建ぺい率/容積率 70%/200%
建物面積 1階 93.25㎡/ 2階 73.5㎡/ 計 166.75㎡ /50.44坪
土地面積 776.08㎡ /234.76坪
築年月 2006年8月(築19年)
入居(引き渡し)時期 測量分筆後
用途地域 無指定 地目 宅地  (現状:宅地)
都市計画 市街化調整区域 学校区 日越小学校(830m)・西中学校(1,813m)
形状 間口 27.4m × 奥行 27.3m 道路 公道
私道 - その他の制限 -
  • 石動町住宅
    髙頭不動産 株式会社
  • この物件を問い合わせる/無料
  • TEL: 0120-1818-27

物件詳細情報

所在階/階数 - 号室 -
販売価格 19,800,000円 方位
間取り 6LDK (和室:7.4畳、7.4畳) (洋室:7.4、6.3、6.3、12)
LDk12
専有面積 - バルコニー面積 -
その他面積 6㎡ /1.81坪  クローゼット 駐車場 -
管理費 - 修繕積立金 -
現況 居住中
仲介手数料 719,400円
利用制限 -
設備 日当り良好、閑静な住宅街、駐車2台可能、複層ガラス、IHクッキングヒーター、追いだき機能付き、バス1坪以上、トイレ2か所以上、オール電化、上水道、下水道、全居室収納あり、シューズBOX
取引態様 専任
備考 ・土地測量分筆後の引渡しとなります。
・敷地内に別棟の住宅があり、借家として契約しています。賃貸収入があります。
取り扱い会社

髙頭不動産 株式会社

新潟県長岡市千歳1-3-25

情報登録日 2026/03/05 次回更新予定日 2026/05/14
取引条件有効期限 2025/12/07
  • 石動町住宅
    髙頭不動産 株式会社
  • この物件を問い合わせる/無料
  • TEL: 0120-1818-27

この物件の地図・周辺情報・行政情報

この物件の周辺情報・行政情報を詳しく見る
【周辺情報】
物件の近くにあるコンビニや銀行・学校など、アイコン付のマップで詳しく表示できます!
【行政情報】
水道料や下水道料・ガス料金など、暮らしに関係のある情報を表示しています。

担当取扱い店舗情報

取扱い店舗画像
髙頭不動産 株式会社
TEL: 0120-1818-27
所在地: 新潟県長岡市千歳1-3-25
交通: 長岡駅
営業時間: 8時30分~17時30分(大手支店は9時~18時)/定休日:本社:土日祝日(事前予約での対応可能)、支店:日曜祝日第5土曜(毎年2月下旬から3月は休みなし)
免許番号: 新潟県知事(17)第191号 この会社の情報を詳しく見る
所属団体名: 新潟県宅地建物取引協会 長岡支部
取引態様: 専任
ホームページ: http://www.takato-f.com