物件掲載企業数:299|賃貸物件:2,842件|売買物件:3,239件|今週の登録物件:355
閲覧中のブラウザ(インターネットエクスプローラー)は非推奨ブラウザです。
物件が正しく表示されなかったり、正しく検索されない場合があります。最新のブラウザ(Google Chrome・Edgeなど)にてご利用お願いいたします。
  

新潟県長岡市大手通2丁目4番地1 中古マンション 2LDK 27,300,000円の物件情報

【R8.3.16価格改定2,980万円→2,730万円】長岡駅徒歩5分圏内の好立地マンション。駅から物件までアーケードがあるので、雨の日も濡れずに帰宅できます。

物件名/所在地 詳細 価格
アルファステイツ大手通
401号室
新潟県長岡市大手通2丁目4番地1
  • 専有面積
    :71.94㎡ /21.76坪
  • 間取り
    :2LDK
  • 築年月
    :2022年9月
27,300,000
  • アルファステイツ大手通
    髙頭不動産 株式会社
  • この物件を問い合わせる/無料
  • TEL: 0120-1818-27

物件画像

外観 間取り
物件画像
※画像クリックで拡大表示
外観
物件画像
※画像クリックで拡大表示
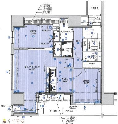
間取り
詳細画像
動画


物件概要

南西角地・ペット可・インターネット無料
物件コード 00040-201151
物件名 アルファステイツ大手通
交通 駅:信越線 長岡駅から徒歩10分、バス:大手通2丁目から徒歩1分
物件所在地 新潟県長岡市大手通2丁目4番地1
物件種別 中古マンション
構造 鉄筋コン 階建 地上15階建
建ぺい率/容積率 90%/600%
建物面積 計 4,284.29㎡ /1,295.99坪
土地面積 699.01㎡ /211.45坪
築年月 2022年9月(築3年)
入居(引き渡し)時期 随時入居(引き渡し)可
用途地域 商業地域 地目 宅地  (現状:宅地)
都市計画 市街化区域 学校区 阪之上小学校(777m)・東中学校(1,340m)
形状 - 道路 北側 国道 東側 市道
私道 - その他の制限 防火地域
  • アルファステイツ大手通
    髙頭不動産 株式会社
  • この物件を問い合わせる/無料
  • TEL: 0120-1818-27

物件詳細情報

所在階/階数 4階/15階 号室 401号室
販売価格 27,300,000円 方位 南西
間取り 2LDK
専有面積 71.94㎡ /21.76坪 バルコニー面積 9.56㎡ /2.89坪
その他面積 - 駐車場 17,000円~
管理費 9,800円 修繕積立金 4,700円
現況 空家
仲介手数料 1,049,400円
災害積立金 300円
利用制限 ペット:可、楽器:可
設備 10階建て以上、角部屋、2階以上、日当り良好、スーパー近く、洗濯機置き場、エレベーター、全室フローリング、築5年以内、駐輪場、南向き、管理人常駐(日中)、セキュリティー良し、TV付きインターホン、エントランスオートロック、システムキッチン、対面式キッチン、3口コンロ、ガスコンロ設置済み、浴室乾燥機、温水洗浄便座、シャワー付き洗面台、エアコン、都市ガス、公営水道、下水道、シューズBOX、シューズインクローゼット、即入居可能、ペット相談
取引態様 一般
備考 -
取り扱い会社

髙頭不動産 株式会社

新潟県長岡市千歳1-3-25

情報登録日 2026/03/16 次回更新予定日 2026/04/02
取引条件有効期限 2026/05/18
  • アルファステイツ大手通
    髙頭不動産 株式会社
  • この物件を問い合わせる/無料
  • TEL: 0120-1818-27

この物件の地図・周辺情報・行政情報

この物件の周辺情報・行政情報を詳しく見る
【周辺情報】
物件の近くにあるコンビニや銀行・学校など、アイコン付のマップで詳しく表示できます!
【行政情報】
水道料や下水道料・ガス料金など、暮らしに関係のある情報を表示しています。
セブン-イレブン アオーレ長岡店(コンビニ)まで310m
共栄堂薬局ながおか店(ドラッグストア)まで290m
みつまクリニック(病院)までm
長岡信用金庫 営業推進部(銀行)までm
長岡郵便局(郵便局)までm

※カメラのアイコンがある場合は、マウスをポイントするとその施設の画像がご覧いただけます。


担当取扱い店舗情報

取扱い店舗画像
髙頭不動産 株式会社
TEL: 0120-1818-27
所在地: 新潟県長岡市千歳1-3-25
交通: 長岡駅
営業時間: 8時30分~17時30分(大手支店は9時~18時)/定休日:本社:土日祝日(事前予約での対応可能)、支店:日曜祝日第5土曜(毎年2月下旬から3月は休みなし)
免許番号: 新潟県知事(17)第191号 この会社の情報を詳しく見る
所属団体名: 新潟県宅地建物取引協会 長岡支部
取引態様: 一般
ホームページ: http://www.takato-f.com